|
|
|
| Larry Stein Oklahoma County Assessor (405) 713-1200 - Public Access System |
|
|
|
|
|
|
| Real Property Display - Screen Produced 3/14/2026 3:35:20 AM | ||||
|---|---|---|---|---|
| Account: R210391200 | Type: Residential | Location: |
20669 FRONTIER PL |
|
| Building Name/Occupant: |
|
HARRAH |
||
| Owner Name 1: | WELCHEL JURL |
Parcel PIN#: |
1005-21-039-1200 |
|
| Owner Name 2: | WELCHEL TABITHA | 1/4 section #: |
1005 |
|
| Owner Name 3: | Parent Acct: |
1005-26-702-1000 |
||
| Billing Address: | 20669 FRONTIER PL | Tax District: |
|
|
| City, State, Zip | HARRAH, OK 73045 | School System: |
Harrah #7 |
|
|
Country: (If noted) |
Land Size: |
0.1653 Acres |
||
|
Land Value: 35,280 |
|
|||
|
Sect 2-T11N-R1E Qtr NE |
FALL CREEK SEC II PH I
Block
014
Lot
006
|
|||
| Full Legal Description: FALL CREEK SEC II PH I BLK 014 LOT 006 |
| Photo & Sketch (if available) | Comp Sales (ordered by relevancy) |
|
||||||||||||||||||
|
||||||||||||||||||||
| Value History (*The County Treasurer 405-713-1300 posts & collects actual tax amounts. Contact information HERE) | |||||||||||||
|---|---|---|---|---|---|---|---|---|---|---|---|---|---|
| Year | Market Value | Taxable Mkt Value | Gross Assessed | Exemption | Net Assessed | Millage | Est. Tax | Tax Savings | |||||
|
2025 |
227,500 |
208,372 |
22,920 |
0 |
22,920 |
107.54 |
$2,465 |
$226 |
|||||
|
2024 |
223,000 |
198,450 |
21,829 |
0 |
21,829 |
110.62 |
$2,415 |
$299 |
|||||
|
2023 |
205,000 |
189,000 |
20,790 |
0 |
20,790 |
97.88 |
$2,035 |
$172 |
|||||
|
2022 |
180,000 |
180,000 |
19,800 |
0 |
19,800 |
99.50 |
$1,970 |
$0 |
|||||
|
2021 |
161,000 |
154,350 |
16,978 |
0 |
16,978 |
99.52 |
$1,690 |
$73 |
|||||
| Property Account Status/Adjustments/Exemptions | ||
|---|---|---|
| Account # | Exemption Description | Amount |
|
R210391200 |
Homestead |
1,000 |
|
R210391200 |
3% Cap Homestead |
0 |
| Property Deed Transaction History (Recorded in the County Clerk's Office) | |||||||
|---|---|---|---|---|---|---|---|
| Date | Type | Book | Page | Price | Grantor | Grantee | |
|
7/27/2021 |
|
Deeds |
$178,000 |
DAWS BAILEY & RYAN |
WELCHEL JURL |
||
|
2/15/2019 |
|
Deeds |
$147,000 |
LISBY WILLIAM C III |
DAWS BAILEY & RYAN |
||
|
8/31/2012 |
|
Deeds |
$129,000 |
HOME SWEET HOMES LLC |
LISBY WILLIAM C III |
||
|
3/2/2012 |
|
Deeds |
$20,000 |
FALL CREEK DEVELOPMENT LLC |
HOME SWEET HOMES LLC |
||
| Last Mailed Notice of Value (N.O.V.) Information/History | ||||||||
|---|---|---|---|---|---|---|---|---|
| Year | Date | Market Value | Taxable Market Value | Gross Assessed | Exemption | Net Assessed | ||
|
2026 |
02/06/2026 |
229,500 |
214,623 |
23,607 |
1,000 |
22,607 |
||
|
2025 |
01/31/2025 |
227,500 |
208,372 |
22,920 |
0 |
22,920 |
||
|
2024 |
01/22/2024 |
223,000 |
198,450 |
21,829 |
0 |
21,829 |
||
|
2023 |
01/23/2023 |
205,000 |
189,000 |
20,790 |
0 |
20,790 |
||
|
2022 |
02/22/2022 |
180,000 |
180,000 |
19,800 |
0 |
19,800 |
||
| Property Building Permit History | |||||||||||
|---|---|---|---|---|---|---|---|---|---|---|---|
| Issued | Permit # | Provided by | Bldg # | Description | Est Construction Cost | Status | |||||
| No Building Permit records returned. | |||||||||||
| Click button on building number to access detailed information: | ||||||
|---|---|---|---|---|---|---|
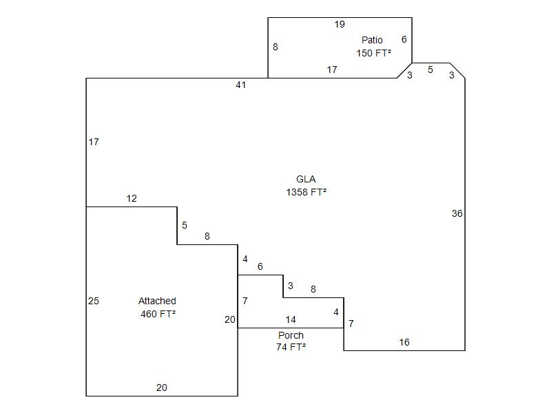
| Bldg # | Vacant/Improved Land | Bldg Description | Year Built | SqFt | # Stories | |
|
1 |
Improved |
Ranch 1 Story |
2012 |
1,358 |
1 Stories |
|