|
|
|
| Larry Stein Oklahoma County Assessor (405) 713-1200 - Public Access System |
|
|
|
|
|
|
| Real Property Display - Screen Produced 3/12/2026 2:28:33 AM | ||||
|---|---|---|---|---|
| Account: R210391640 | Type: Residential | Location: |
20665 AUTUMN TRL |
|
| Building Name/Occupant: |
|
HARRAH |
||
| Owner Name 1: | BROWN RAEGAN |
Parcel PIN#: |
1005-21-039-1640 |
|
| Owner Name 2: | 1/4 section #: |
1005 |
||
| Owner Name 3: | Parent Acct: |
1005-26-702-1000 |
||
| Billing Address: | 20665 AUTUMN TRL | Tax District: |
|
|
| City, State, Zip | HARRAH, OK 73045-8140 | School System: |
Harrah #7 |
|
|
Country: (If noted) |
Land Size: |
0.1598 Acres |
||
|
Land Value: 34,104 |
|
|||
|
Sect 2-T11N-R1E Qtr NE |
FALL CREEK SEC II PH I
Block
018
Lot
017
|
|||
| Full Legal Description: FALL CREEK SEC II PH I BLK 018 LOT 017 |
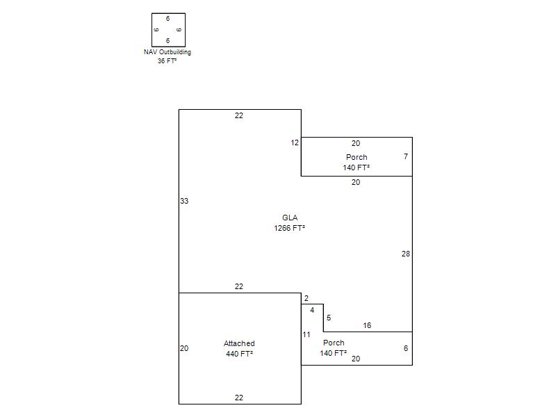
| Photo & Sketch (if available) | Comp Sales (ordered by relevancy) |
|
||||||||||||||||||
|
||||||||||||||||||||
| Value History (*The County Treasurer 405-713-1300 posts & collects actual tax amounts. Contact information HERE) | |||||||||||||
|---|---|---|---|---|---|---|---|---|---|---|---|---|---|
| Year | Market Value | Taxable Mkt Value | Gross Assessed | Exemption | Net Assessed | Millage | Est. Tax | Tax Savings | |||||
|
2025 |
218,000 |
171,070 |
18,817 |
0 |
18,817 |
107.54 |
$2,024 |
$555 |
|||||
|
2024 |
214,000 |
162,924 |
17,921 |
0 |
17,921 |
110.62 |
$1,982 |
$622 |
|||||
|
2023 |
196,500 |
155,166 |
17,068 |
17,068 |
0 |
97.88 |
$0 |
$2,116 |
|||||
|
2022 |
176,500 |
150,647 |
16,570 |
16,570 |
0 |
99.50 |
$0 |
$1,932 |
|||||
|
2021 |
157,000 |
146,260 |
16,088 |
16,088 |
0 |
99.52 |
$0 |
$1,719 |
|||||
| Property Account Status/Adjustments/Exemptions | ||||||
|---|---|---|---|---|---|---|
| Account # | Exemption Description | Amount | ||||
| No adjustment/exemption records returned. | ||||||
| Property Deed Transaction History (Recorded in the County Clerk's Office) | |||||||
|---|---|---|---|---|---|---|---|
| Date | Type | Book | Page | Price | Grantor | Grantee | |
|
7/24/2025 |
|
Deeds |
$219,000 |
SIMMONS WARREN R |
BROWN RAEGAN |
||
|
7/2/2022 |
|
Deeds |
$0 |
SIMMONS WARREN R |
SIMMONS WARREN R |
||
|
10/15/2015 |
|
Deeds |
$0 |
SIMMONS WARREN RAY & TERRI |
SIMMONS WARREN R |
||
|
12/18/2014 |
|
Deeds |
$135,000 |
HARRAH LAND FC LLC |
SIMMONS WARREN RAY & TERRI |
||
|
5/11/2012 |
|
Mult Parcel |
$990,000 |
FALL CREEK DEVELOPMENT LLC |
HARRAH LAND FC LLC |
||
| Last Mailed Notice of Value (N.O.V.) Information/History | ||||||||
|---|---|---|---|---|---|---|---|---|
| Year | Date | Market Value | Taxable Market Value | Gross Assessed | Exemption | Net Assessed | ||
|
2026 |
02/06/2026 |
222,000 |
222,000 |
24,420 |
0 |
24,420 |
||
|
2025 |
01/31/2025 |
218,000 |
171,070 |
18,817 |
0 |
18,817 |
||
|
2024 |
01/22/2024 |
214,000 |
162,924 |
17,921 |
0 |
17,921 |
||
|
2023 |
01/23/2023 |
196,500 |
155,166 |
17,068 |
17,068 |
0 |
||
|
2022 |
02/22/2022 |
176,500 |
150,647 |
16,570 |
16,570 |
0 |
||
| Property Building Permit History | ||||||
|---|---|---|---|---|---|---|
| Issued | Permit # | Provided by | Bldg # | Description | Est Construction Cost | Status |
|
1/1/1900 |
10467663 |
HARRAH |
1 |
Main Dwellin |
0 |
Inactive |
| Click button on building number to access detailed information: | ||||||
|---|---|---|---|---|---|---|
| Bldg # | Vacant/Improved Land | Bldg Description | Year Built | SqFt | # Stories | |
|
1 |
Improved |
Ranch 1 Story |
2014 |
1,266 |
1 Stories |
|