Larry Stein Oklahoma County Assessor (405) 713-1200 - Public Access System
Home Contact Us Guest Book Map Search New Search
Real Property Display - Screen Produced   4/27/2026 2:54:21 PM 
Account: R204451260  Type: Residential

  

Location:

2405 GRAND CT

Building Name/Occupant:

 

NICHOLS HILLS

Owner Name 1:  ROSS MARY LILLIAN REV TRUST

Parcel PIN#:

2621-20-445-1260

Owner Name 2:    1/4 section #:

2621

Owner Name 3:    Parent Acct:

2621-16-971-7000

Billing Address:  2405 GRAND CT Tax District:

City, State, Zip  NICHOLS HILLS, OK  73116 School System:

Oklahoma City #89

Country: (If noted)

  

Land Size:

0.3953  Acres

Personal Property

Land Value: 344,400 

Treasurer:

Sect 6-T12N-R3W Qtr NE

 2400 GRAND BOULEVARD   Block 002  Lot 027   Subdivision Sales
 Full Legal Description:  2400 GRAND BOULEVARD 002 027

NOTE:  The following sales may or may not be used to determine Fair Market Value

Photo & Sketch (if available) Sales  Sales Report

 1913 HUNTINGTON AVE NICHOLS HILLS, OK

11/12/2025

 $2,000,000 

 1401 GLENBROOK TER NICHOLS HILLS, OK

07/01/2025

 $1,250,000 

 1711 HUNTINGTON AVE NICHOLS HILLS, OK

10/16/2024

 $1,625,000 

 2436 GRAND CIR NICHOLS HILLS, OK

12/03/2024

 $1,539,000 

 1720 HUNTINGTON AVE NICHOLS HILLS, OK

03/24/2025

 $945,000 

 1204 BELFORD AVE NICHOLS HILLS, OK

07/23/2025

 $1,200,000 

Value History  (*The County Treasurer 405-713-1300 posts & collects actual tax amounts.  Contact information  HERE)
Year Market Value Taxable Mkt Value Gross Assessed Exemption Net Assessed Millage Est. Tax Tax Savings

2026

1,546,500 

1,256,139 

138,174 

1,000 

137,174 

140.78 

$19,312 

$4,637 

2025

1,270,500 

1,219,553 

134,150 

1,000 

133,150 

140.78 

$18,745 

$930 

2024

1,370,000 

1,184,033 

130,243 

1,000 

129,243 

141.11 

$18,238 

$3,028 

[1/8]
Property Account Status/Adjustments/Exemptions
Account # Exemption Description Amount

R204451260

3% Cap Homestead

R204451260

Homestead

1,000 

Property Deed Transaction History   (Recorded in the County Clerk's Office)
Date Type Book Page Price Grantor Grantee

6/19/2019

Deeds

14056

1034

 $1,025,000 

HARRIS MARK SUC TRS ETAL

ROSS MARY LILLIAN REV TRUST

11/6/2017

Hmstd Off &

13592

1141

 $0 

HARRIS M MARGARET TRS

HARRIS MARK SUC TRS ETAL

8/1/2017

Deeds

13586

1560

 $0 

HARRIS C JACK TRS

HARRIS M MARGARET TRS

[1/2]
Last Mailed Notice of Value (N.O.V.) Information/History
Year Date Market Value Taxable Market Value Gross Assessed Exemption Net Assessed

2026

02/23/2026

1,546,500 

1,256,139 

138,174 

1,000 

137,174 

2025

02/14/2025

1,270,500 

1,219,553 

134,150 

1,000 

133,150 

2024

02/13/2024

1,370,000 

1,184,033 

130,243 

1,000 

129,243 

[1/5]
Property Building Permit History
Issued Permit # Provided by Bldg # Description Est Construction Cost Status

3/30/2009

10381161

NICHOLS HILLS

1

Remodeled

15,000 

Inactive

7/30/2004

10294260

NICHOLS HILLS

1

Main Dwellin

750,000 

Inactive

Click button below to access detailed information and additional property photos:
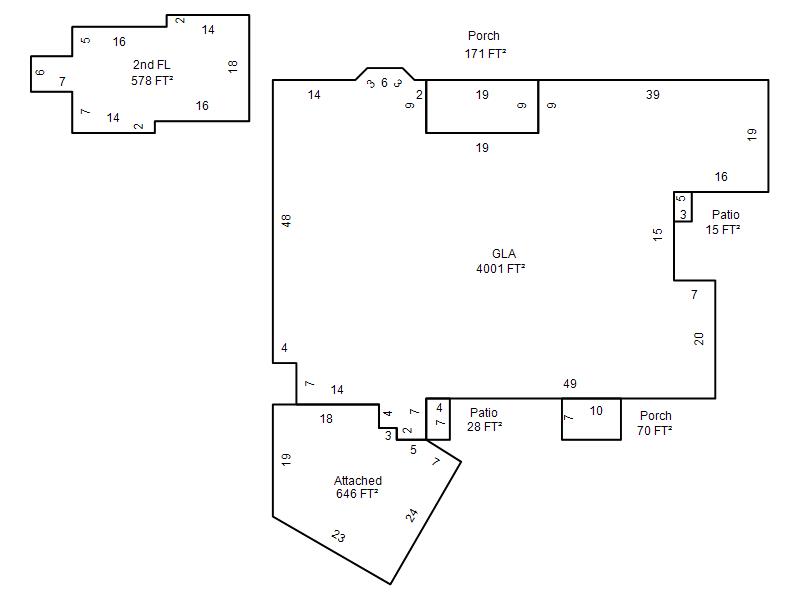
  Bldg # Vacant/Improved Land Bldg Description Year Built SqFt # Stories

Click

1

Improved

1½ Story Fin

2004

4,579 

1.5 Stories