|
|
|
| Larry Stein Oklahoma County Assessor (405) 713-1200 - Public Access System |
|
|
|
|
|
|
| Real Property Display - Screen Produced 3/26/2026 11:03:22 AM | ||||
|---|---|---|---|---|
| Account: R055561345 | Type: Residential | Location: |
2109 NW 60TH ST |
|
| Building Name/Occupant: |
|
OKLAHOMA CITY |
||
| Owner Name 1: | HORNBEEK RICHARD E & AMY L |
Parcel PIN#: |
2625-05-556-1345 |
|
| Owner Name 2: | 1/4 section #: |
2625 |
||
| Owner Name 3: | Parent Acct: |
|
||
| Billing Address: | 2109 NW 60TH ST | Tax District: |
|
|
| City, State, Zip | OKLAHOMA CITY, OK 73112-7314 | School System: |
Oklahoma City #89 |
|
|
Country: (If noted) |
Land Size: |
0.2296 Acres |
||
|
Land Value: 73,000 |
|
|||
|
Sect 7-T12N-R3W Qtr NE |
WILEMAN 7TH ADD
Block
003
Lot
008
|
|||
| Full Legal Description: WILEMAN 7TH ADD 003 008 |
| Photo & Sketch (if available) | Comp Sales (ordered by relevancy) |
|
||||||||||||||||||
|
||||||||||||||||||||
| Value History (*The County Treasurer 405-713-1300 posts & collects actual tax amounts. Contact information HERE) | |||||||||||||
|---|---|---|---|---|---|---|---|---|---|---|---|---|---|
| Year | Market Value | Taxable Mkt Value | Gross Assessed | Exemption | Net Assessed | Millage | Est. Tax | Tax Savings | |||||
|
2026 |
320,000 |
262,851 |
28,913 |
1,000 |
27,913 |
122.90 |
$3,431 |
$895 |
|||||
|
2025 |
313,500 |
255,196 |
28,071 |
1,000 |
27,071 |
122.90 |
$3,327 |
$911 |
|||||
|
2024 |
292,500 |
247,764 |
27,253 |
1,000 |
26,253 |
123.89 |
$3,253 |
$734 |
|||||
|
2023 |
290,500 |
240,548 |
26,459 |
1,000 |
25,459 |
122.82 |
$3,127 |
$798 |
|||||
|
2022 |
260,000 |
233,542 |
25,688 |
1,000 |
24,688 |
117.63 |
$2,904 |
$460 |
|||||
| Property Account Status/Adjustments/Exemptions | ||
|---|---|---|
| Account # | Exemption Description | Amount |
|
R055561345 |
3% Cap Homestead |
0 |
|
R055561345 |
Homestead |
1,000 |
| Property Deed Transaction History (Recorded in the County Clerk's Office) | |||||||
|---|---|---|---|---|---|---|---|
| Date | Type | Book | Page | Price | Grantor | Grantee | |
|
9/14/1992 |
|
Historical |
$95,000 |
MANCILLAS J MICHAEL |
HORNBEEK RICHARD E & AMY L |
||
|
10/11/1988 |
|
Historical |
$0 |
ALLETAG GREGG S & GWEN Z |
MANCILLAS J MICHAEL |
||
|
6/1/1985 |
|
Historical |
$117,000 |
|
ALLETAG GREGG S & GWEN Z |
||
| Last Mailed Notice of Value (N.O.V.) Information/History | ||||||||
|---|---|---|---|---|---|---|---|---|
| Year | Date | Market Value | Taxable Market Value | Gross Assessed | Exemption | Net Assessed | ||
|
2026 |
02/23/2026 |
320,000 |
262,851 |
28,913 |
1,000 |
27,913 |
||
|
2025 |
02/14/2025 |
313,500 |
255,196 |
28,071 |
1,000 |
27,071 |
||
|
2024 |
02/13/2024 |
292,500 |
247,764 |
27,253 |
1,000 |
26,253 |
||
|
2023 |
02/14/2023 |
290,500 |
240,548 |
26,459 |
1,000 |
25,459 |
||
|
2022 |
03/15/2022 |
260,000 |
233,542 |
25,688 |
1,000 |
24,688 |
||
| Property Building Permit History | |||||||||||
|---|---|---|---|---|---|---|---|---|---|---|---|
| Issued | Permit # | Provided by | Bldg # | Description | Est Construction Cost | Status | |||||
| No Building Permit records returned. | |||||||||||
| Click button on building number to access detailed information: | ||||||
|---|---|---|---|---|---|---|
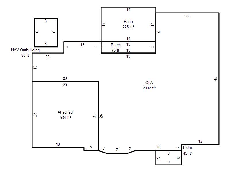
| Bldg # | Vacant/Improved Land | Bldg Description | Year Built | SqFt | # Stories | |
|
1 |
Improved |
Ranch 1 Story |
1958 |
2,002 |
1 Stories |
|