|
|
|
| Larry Stein Oklahoma County Assessor (405) 713-1200 - Public Access System |
|
|
|
|
|
|
| Real Property Display - Screen Produced 3/26/2026 11:00:42 AM | ||||
|---|---|---|---|---|
| Account: R055561995 | Type: Residential | Location: |
5813 N BARNES AVE |
|
| Building Name/Occupant: |
|
OKLAHOMA CITY |
||
| Owner Name 1: | GREER JOHN H & NANCY R |
Parcel PIN#: |
2625-05-556-1995 |
|
| Owner Name 2: | 1/4 section #: |
2625 |
||
| Owner Name 3: | Parent Acct: |
|
||
| Billing Address: | 5813 N BARNES AVE | Tax District: |
|
|
| City, State, Zip | OKLAHOMA CITY, OK 73112-7320 | School System: |
Oklahoma City #89 |
|
|
Country: (If noted) |
Land Size: |
0.2961 Acres |
||
|
Land Value: 94,170 |
|
|||
|
Sect 7-T12N-R3W Qtr NE |
WILEMAN 7TH ADD
Block
009
Lot
004
|
|||
| Full Legal Description: WILEMAN 7TH ADD 009 004 |
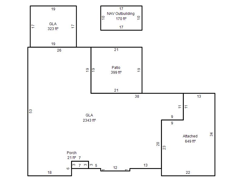
| Photo & Sketch (if available) | Comp Sales (ordered by relevancy) |
|
||||||||||||||||||
|
||||||||||||||||||||
| Value History (*The County Treasurer 405-713-1300 posts & collects actual tax amounts. Contact information HERE) | |||||||||||||
|---|---|---|---|---|---|---|---|---|---|---|---|---|---|
| Year | Market Value | Taxable Mkt Value | Gross Assessed | Exemption | Net Assessed | Millage | Est. Tax | Tax Savings | |||||
|
2026 |
457,000 |
384,482 |
42,292 |
1,000 |
41,292 |
122.90 |
$5,075 |
$1,103 |
|||||
|
2025 |
442,500 |
373,284 |
41,060 |
1,000 |
40,060 |
122.90 |
$4,924 |
$1,059 |
|||||
|
2024 |
401,000 |
362,412 |
39,865 |
1,000 |
38,865 |
123.89 |
$4,815 |
$650 |
|||||
|
2023 |
409,000 |
351,857 |
38,703 |
1,000 |
37,703 |
122.82 |
$4,631 |
$895 |
|||||
|
2022 |
373,000 |
341,609 |
37,576 |
1,000 |
36,576 |
117.63 |
$4,303 |
$524 |
|||||
| Property Account Status/Adjustments/Exemptions | ||
|---|---|---|
| Account # | Exemption Description | Amount |
|
R055561995 |
3% Cap Homestead |
0 |
|
R055561995 |
Homestead |
1,000 |
| Property Deed Transaction History (Recorded in the County Clerk's Office) | ||||||||||
|---|---|---|---|---|---|---|---|---|---|---|
| Date | Type | Book | Page | Price | Grantor | Grantee | ||||
|
3/19/2004 |
|
Deeds |
$237,000 |
MCCAIN BARBARA G |
GREER JOHN H & NANCY R |
|||||
|
5/31/2001 |
|
Deeds |
$0 |
MCCAIN BARBARA G & WILLIAM T |
MCCAIN BARBARA G |
|||||
|
6/14/1996 |
|
Historical |
$0 |
MCCAIN BARBARA G |
MCCAIN BARBARA G & WILLIAM T |
|||||
|
9/29/1995 |
|
Historical |
$142,500 |
CHAIN CHRISTA L ETAL |
MCCAIN BARBARA G |
|||||
|
7/19/1989 |
|
Historical |
$0 |
SCHWAB CHRIS G JR |
CHAIN CHRISTA L ETAL |
|||||
| Last Mailed Notice of Value (N.O.V.) Information/History | ||||||||
|---|---|---|---|---|---|---|---|---|
| Year | Date | Market Value | Taxable Market Value | Gross Assessed | Exemption | Net Assessed | ||
|
2026 |
02/23/2026 |
457,000 |
384,482 |
42,292 |
1,000 |
41,292 |
||
|
2025 |
02/14/2025 |
442,500 |
373,284 |
41,060 |
1,000 |
40,060 |
||
|
2024 |
02/13/2024 |
401,000 |
362,412 |
39,865 |
1,000 |
38,865 |
||
|
2023 |
02/14/2023 |
409,000 |
351,857 |
38,703 |
1,000 |
37,703 |
||
|
2022 |
03/15/2022 |
373,000 |
341,609 |
37,576 |
1,000 |
36,576 |
||
| Property Building Permit History | ||||||
|---|---|---|---|---|---|---|
| Issued | Permit # | Provided by | Bldg # | Description | Est Construction Cost | Status |
|
11/29/2006 |
10331244 |
OKLAHOMA CITY |
1 |
Add On |
16,000 |
Inactive |
| Click button on building number to access detailed information: | ||||||
|---|---|---|---|---|---|---|
| Bldg # | Vacant/Improved Land | Bldg Description | Year Built | SqFt | # Stories | |
|
1 |
Improved |
Ranch 1 Story |
1958 |
2,666 |
1 Stories |
|