|
|
|
| Larry Stein Oklahoma County Assessor (405) 713-1200 - Public Access System |
|
|
|
|
|
|
| Real Property Display - Screen Produced 3/26/2026 11:00:42 AM | ||||
|---|---|---|---|---|
| Account: R055562085 | Type: Residential | Location: |
2229 NW 57TH ST |
|
| Building Name/Occupant: |
|
OKLAHOMA CITY |
||
| Owner Name 1: | 2229 LLC |
Parcel PIN#: |
2625-05-556-2085 |
|
| Owner Name 2: | 1/4 section #: |
2625 |
||
| Owner Name 3: | Parent Acct: |
|
||
| Billing Address: | PO BOX 18608 | Tax District: |
|
|
| City, State, Zip | OKLAHOMA CITY, OK 73154-0608 | School System: |
Oklahoma City #89 |
|
|
Country: (If noted) |
Land Size: |
0.2238 Acres |
||
|
Land Value: 71,175 |
|
|||
|
Sect 7-T12N-R3W Qtr NE |
WILEMAN 7TH ADD
Block
009
Lot
013
|
|||
| Full Legal Description: WILEMAN 7TH ADD 009 013 |
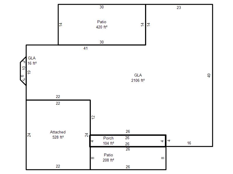
| Photo & Sketch (if available) | Comp Sales (ordered by relevancy) |
|
||||||||||||||||||
|
||||||||||||||||||||
| Value History (*The County Treasurer 405-713-1300 posts & collects actual tax amounts. Contact information HERE) | |||||||||||||
|---|---|---|---|---|---|---|---|---|---|---|---|---|---|
| Year | Market Value | Taxable Mkt Value | Gross Assessed | Exemption | Net Assessed | Millage | Est. Tax | Tax Savings | |||||
|
2026 |
375,000 |
350,432 |
38,546 |
0 |
38,546 |
122.90 |
$4,737 |
$332 |
|||||
|
2025 |
365,000 |
333,745 |
36,711 |
0 |
36,711 |
122.90 |
$4,512 |
$423 |
|||||
|
2024 |
328,000 |
317,853 |
34,962 |
0 |
34,962 |
123.89 |
$4,332 |
$138 |
|||||
|
2023 |
334,500 |
302,718 |
33,298 |
0 |
33,298 |
122.82 |
$4,090 |
$429 |
|||||
|
2022 |
302,500 |
288,303 |
31,713 |
0 |
31,713 |
117.63 |
$3,730 |
$184 |
|||||
| Property Account Status/Adjustments/Exemptions | ||
|---|---|---|
| Account # | Exemption Description | Amount |
|
R055562085 |
5% Capped Account |
0 |
| Property Deed Transaction History (Recorded in the County Clerk's Office) | |||||||
|---|---|---|---|---|---|---|---|
| Date | Type | Book | Page | Price | Grantor | Grantee | |
|
12/20/2013 |
|
Deeds |
$220,000 |
CHASTAIN SARAH |
2229 LLC |
||
|
11/13/2001 |
|
Deeds |
$0 |
CHASTAIN CHARLES E & SARAH E |
CHASTAIN SARAH |
||
|
10/25/1988 |
|
Historical |
$0 |
CROWE KATHERINE L |
CHASTAIN CHARLES E & SARAH E |
||
|
11/11/1911 |
|
Historical |
$0 |
|
CROWE KATHERINE L |
||
| Last Mailed Notice of Value (N.O.V.) Information/History | ||||||||
|---|---|---|---|---|---|---|---|---|
| Year | Date | Market Value | Taxable Market Value | Gross Assessed | Exemption | Net Assessed | ||
|
2026 |
02/23/2026 |
375,000 |
350,432 |
38,546 |
0 |
38,546 |
||
|
2025 |
02/14/2025 |
365,000 |
333,745 |
36,711 |
0 |
36,711 |
||
|
2024 |
02/13/2024 |
328,000 |
317,853 |
34,962 |
0 |
34,962 |
||
|
2023 |
02/14/2023 |
334,500 |
302,718 |
33,298 |
0 |
33,298 |
||
|
2022 |
03/15/2022 |
302,500 |
288,303 |
31,713 |
0 |
31,713 |
||
| Property Building Permit History | |||||||||||
|---|---|---|---|---|---|---|---|---|---|---|---|
| Issued | Permit # | Provided by | Bldg # | Description | Est Construction Cost | Status | |||||
| No Building Permit records returned. | |||||||||||
| Click button on building number to access detailed information: | ||||||
|---|---|---|---|---|---|---|
| Bldg # | Vacant/Improved Land | Bldg Description | Year Built | SqFt | # Stories | |
|
1 |
Improved |
Ranch 1 Story |
1957 |
2,122 |
1 Stories |
|