|
|
|
| Larry Stein Oklahoma County Assessor (405) 713-1200 - Public Access System |
|
|
|
|
|
|
| Real Property Display - Screen Produced 4/2/2026 10:39:51 PM | ||||
|---|---|---|---|---|
| Account: R116591905 | Type: Residential | Location: |
4600 N TERRY AVE |
|
| Building Name/Occupant: |
|
OKLAHOMA CITY |
||
| Owner Name 1: | STEELE APRIL R Y TRS |
Parcel PIN#: |
2653-11-659-1905 |
|
| Owner Name 2: | STEELE APRIL R Y REV TRUST | 1/4 section #: |
2653 |
|
| Owner Name 3: | Parent Acct: |
|
||
| Billing Address: | 5624 LANCESHIRE LN | Tax District: |
|
|
| City, State, Zip | OKLAHOMA CITY, OK 73135-5411 | School System: |
Oklahoma City #89 |
|
|
Country: (If noted) |
Land Size: |
0.1942 Acres |
||
|
Land Value: 20,727 |
|
|||
|
Sect 14-T12N-R3W Qtr NE |
PARK ESTATES 9TH ADD
Block
006
Lot
020
|
|||
| Full Legal Description: PARK ESTATES 9TH ADD 006 020 |
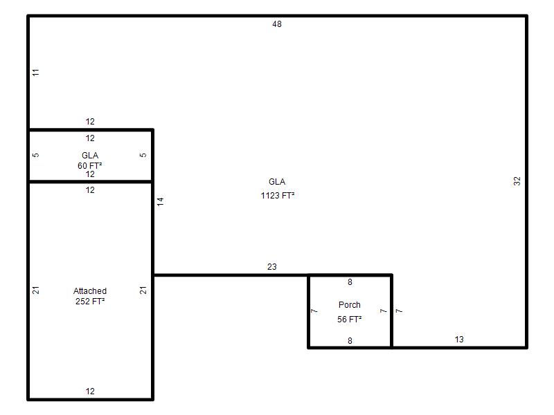
| Photo & Sketch (if available) | Comp Sales (ordered by relevancy) |
|
||||||||||||||||||
|
||||||||||||||||||||
| Value History (*The County Treasurer 405-713-1300 posts & collects actual tax amounts. Contact information HERE) | |||||||||||||
|---|---|---|---|---|---|---|---|---|---|---|---|---|---|
| Year | Market Value | Taxable Mkt Value | Gross Assessed | Exemption | Net Assessed | Millage | Est. Tax | Tax Savings | |||||
|
2026 |
122,000 |
80,627 |
8,868 |
0 |
8,868 |
122.90 |
$1,090 |
$559 |
|||||
|
2025 |
115,500 |
76,788 |
8,446 |
0 |
8,446 |
122.90 |
$1,038 |
$523 |
|||||
|
2024 |
115,000 |
73,132 |
8,044 |
0 |
8,044 |
123.89 |
$997 |
$571 |
|||||
|
2023 |
108,000 |
69,650 |
7,660 |
0 |
7,660 |
122.82 |
$941 |
$518 |
|||||
|
2022 |
81,000 |
66,334 |
7,295 |
0 |
7,295 |
117.63 |
$858 |
$190 |
|||||
| Property Account Status/Adjustments/Exemptions | ||
|---|---|---|
| Account # | Exemption Description | Amount |
|
R116591905 |
5% Capped Account |
0 |
| Property Deed Transaction History (Recorded in the County Clerk's Office) | |||||||
|---|---|---|---|---|---|---|---|
| Date | Type | Book | Page | Price | Grantor | Grantee | |
|
10/21/2010 |
|
Deeds |
$0 |
STEELE APRIL R |
STEELE APRIL R Y TRS |
||
|
1/25/2002 |
|
Deeds |
$53,500 |
MCCORMICK SHIELA JOYCE |
STEELE APRIL R |
||
|
10/1/1983 |
|
Historical |
$0 |
|
MCCORMICK SHIELA JOYCE |
||
| Last Mailed Notice of Value (N.O.V.) Information/History | ||||||||
|---|---|---|---|---|---|---|---|---|
| Year | Date | Market Value | Taxable Market Value | Gross Assessed | Exemption | Net Assessed | ||
|
2026 |
02/23/2026 |
122,000 |
80,627 |
8,868 |
0 |
8,868 |
||
|
2025 |
02/14/2025 |
115,500 |
76,788 |
8,446 |
0 |
8,446 |
||
|
2024 |
02/13/2024 |
115,000 |
73,132 |
8,044 |
0 |
8,044 |
||
|
2023 |
02/14/2023 |
108,000 |
69,650 |
7,660 |
0 |
7,660 |
||
|
2022 |
03/15/2022 |
81,000 |
66,334 |
7,295 |
0 |
7,295 |
||
| Property Building Permit History | |||||||||||
|---|---|---|---|---|---|---|---|---|---|---|---|
| Issued | Permit # | Provided by | Bldg # | Description | Est Construction Cost | Status | |||||
| No Building Permit records returned. | |||||||||||
| Click button on building number to access detailed information: | ||||||
|---|---|---|---|---|---|---|
| Bldg # | Vacant/Improved Land | Bldg Description | Year Built | SqFt | # Stories | |
|
1 |
Improved |
Ranch 1 Story |
1954 |
1,183 |
1 Stories |
|