|
|
|
| Larry Stein Oklahoma County Assessor (405) 713-1200 - Public Access System |
|
|
|
|
|
|
| Real Property Display - Screen Produced 3/12/2026 4:16:34 AM | ||||
|---|---|---|---|---|
| Account: R267091260 | Type: Residential | Location: |
1950 NIXON ST |
|
| Building Name/Occupant: |
|
UNINCORPORATED |
||
| Owner Name 1: | DORSEY DALE JR & RACHAEL |
Parcel PIN#: |
1033-26-709-1260 |
|
| Owner Name 2: | 1/4 section #: |
1033 |
||
| Owner Name 3: | Parent Acct: |
|
||
| Billing Address: | 1950 NIXON ST | Tax District: |
|
|
| City, State, Zip | CHOCTAW, OK 73020-6316 | School System: |
Choctaw #4 |
|
|
Country: (If noted) |
Land Size: |
2.1200 Acres |
||
|
Land Value: 23,320 |
|
|||
|
Sect 9-T11N-R1E Qtr NE |
POTTAWATOMIE TOWNSHIP
Block
000
Lot
000
|
|||
| Full Legal Description: POTTAWATOMIE TOWNSHIP PT NE4 SEC 9 11N 1E BEING N/2 OF NW4 SW4 NE4 OR TR 17 POINTONS HI LAND UNREC EX W50FT EX S/2 DESC BEG 988.88FT N & 50FT E OF SW/C OF NE4 TH N164.81FT E660.05FT S164.85FT W660.11FT TO BEG |
| Photo & Sketch (if available) | Comp Sales (ordered by relevancy) |
|
||||||||||||||||||
|
||||||||||||||||||||
| Value History (*The County Treasurer 405-713-1300 posts & collects actual tax amounts. Contact information HERE) | |||||||||||||
|---|---|---|---|---|---|---|---|---|---|---|---|---|---|
| Year | Market Value | Taxable Mkt Value | Gross Assessed | Exemption | Net Assessed | Millage | Est. Tax | Tax Savings | |||||
|
2025 |
102,500 |
40,362 |
4,439 |
0 |
4,439 |
117.21 |
$520 |
$801 |
|||||
|
2024 |
93,000 |
38,440 |
4,228 |
1,000 |
3,228 |
116.35 |
$376 |
$815 |
|||||
|
2023 |
84,500 |
37,321 |
4,104 |
1,000 |
3,104 |
117.10 |
$364 |
$725 |
|||||
|
2022 |
66,250 |
36,234 |
3,985 |
1,000 |
2,985 |
115.17 |
$344 |
$495 |
|||||
|
2021 |
65,500 |
45,102 |
4,960 |
1,000 |
3,960 |
115.06 |
$456 |
$373 |
|||||
| Property Account Status/Adjustments/Exemptions | ||
|---|---|---|
| Account # | Exemption Description | Amount |
|
R267091260 |
5% Capped Account |
0 |
| Property Deed Transaction History (Recorded in the County Clerk's Office) | ||||||||||
|---|---|---|---|---|---|---|---|---|---|---|
| Date | Type | Book | Page | Price | Grantor | Grantee | ||||
|
9/19/2024 |
|
Hmstd Off & |
$0 |
DORSEY GARY |
DORSEY DALE JR & RACHAEL |
|||||
|
10/4/2022 |
|
Deeds |
$0 |
DORSEY GARY |
DORSEY GARY |
|||||
|
4/15/2021 |
|
Deeds |
$0 |
DORSEY GARY |
DORSEY GARY |
|||||
|
5/1/2019 |
|
Deeds |
$0 |
DORSEY AMOS |
DORSEY GARY |
|||||
|
8/21/2009 |
|
Deeds |
$0 |
DORSEY AMOS DORSEY NORMA STOWERS DANNY |
DORSEY AMOS |
|||||
| Last Mailed Notice of Value (N.O.V.) Information/History | ||||||||
|---|---|---|---|---|---|---|---|---|
| Year | Date | Market Value | Taxable Market Value | Gross Assessed | Exemption | Net Assessed | ||
|
2026 |
02/06/2026 |
96,500 |
42,380 |
4,660 |
0 |
4,660 |
||
|
2025 |
01/31/2025 |
102,500 |
39,593 |
4,354 |
1,000 |
3,354 |
||
|
2025 |
03/28/2025 |
102,500 |
40,362 |
4,439 |
0 |
4,439 |
||
|
2024 |
01/22/2024 |
93,000 |
38,440 |
4,228 |
1,000 |
3,228 |
||
|
2023 |
01/23/2023 |
84,500 |
37,321 |
4,104 |
1,000 |
3,104 |
||
| Property Building Permit History | ||||||
|---|---|---|---|---|---|---|
| Issued | Permit # | Provided by | Bldg # | Description | Est Construction Cost | Status |
|
12/16/2019 |
BP2019-298 |
|
1 |
Remodeled |
|
Inactive |
| Click button on building number to access detailed information: | ||||||
|---|---|---|---|---|---|---|
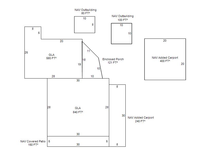
| Bldg # | Vacant/Improved Land | Bldg Description | Year Built | SqFt | # Stories | |
|
1 |
Improved |
Ranch 1 Story |
1945 |
1,420 |
1 Stories |
|