|
|
|
| Larry Stein Oklahoma County Assessor (405) 713-1200 - Public Access System |
|
|
|
|
|
|
| Real Property Display - Screen Produced 3/16/2026 1:12:11 PM | ||||
|---|---|---|---|---|
| Account: R053253225 | Type: Residential | Location: |
2221 NW 34TH ST |
|
| Building Name/Occupant: |
|
OKLAHOMA CITY |
||
| Owner Name 1: | WRIGHT KIERAN MICHAEL |
Parcel PIN#: |
2673-05-325-3225 |
|
| Owner Name 2: | 1/4 section #: |
2673 |
||
| Owner Name 3: | Parent Acct: |
|
||
| Billing Address: | 2221 NW 34TH ST | Tax District: |
|
|
| City, State, Zip | OKLAHOMA CITY, OK 73112 | School System: |
Oklahoma City #89 |
|
|
Country: (If noted) |
Land Size: |
0.1607 Acres |
||
|
Land Value: 16,450 |
|
|||
|
Sect 19-T12N-R3W Qtr NE |
WEST POINT AMD E2
Block
006
Lot
000
|
|||
| Full Legal Description: WEST POINT AMD E2 006 000 LOTS 39 & 40 |
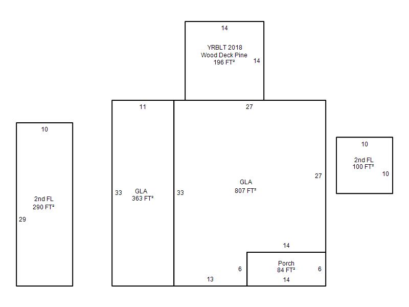
| Photo & Sketch (if available) | Comp Sales (ordered by relevancy) |
|
||||||||||||||||||
|
||||||||||||||||||||
| Value History (*The County Treasurer 405-713-1300 posts & collects actual tax amounts. Contact information HERE) | |||||||||||||
|---|---|---|---|---|---|---|---|---|---|---|---|---|---|
| Year | Market Value | Taxable Mkt Value | Gross Assessed | Exemption | Net Assessed | Millage | Est. Tax | Tax Savings | |||||
|
2025 |
261,500 |
261,500 |
28,765 |
0 |
28,765 |
122.90 |
$3,535 |
$0 |
|||||
|
2024 |
255,000 |
255,000 |
28,050 |
0 |
28,050 |
123.89 |
$3,475 |
$0 |
|||||
|
2023 |
246,500 |
246,500 |
27,115 |
0 |
27,115 |
122.82 |
$3,330 |
$0 |
|||||
|
2022 |
234,500 |
219,948 |
24,194 |
0 |
24,194 |
117.63 |
$2,846 |
$188 |
|||||
|
2021 |
214,500 |
209,475 |
23,042 |
0 |
23,042 |
117.70 |
$2,712 |
$65 |
|||||
| Property Account Status/Adjustments/Exemptions | ||
|---|---|---|
| Account # | Exemption Description | Amount |
|
R053253225 |
5% Capped Account |
0 |
| Property Deed Transaction History (Recorded in the County Clerk's Office) | ||||||||||
|---|---|---|---|---|---|---|---|---|---|---|
| Date | Type | Book | Page | Price | Grantor | Grantee | ||||
|
4/25/2022 |
|
Deeds |
$245,000 |
VERCELES JOSHUA |
WRIGHT KIERAN MICHAEL |
|||||
|
3/5/2019 |
|
Deeds |
$202,000 |
J & L DESIGN LLC |
VERCELES JOSHUA |
|||||
|
5/8/2018 |
|
Hmstd Off & |
$0 |
HARPER FAMILY TRUST |
CLASSEN PENNSYLVANIA EIGHT |
|||||
|
4/27/2018 |
|
Deeds |
$41,500 |
S & L SOLUTIONS LLC |
J & L DESIGN LLC |
|||||
|
4/27/2018 |
|
Deeds |
$30,000 |
CLASSEN PENNSYLVANIA EIGHT |
S & L SOLUTIONS LLC |
|||||
| Last Mailed Notice of Value (N.O.V.) Information/History | ||||||||
|---|---|---|---|---|---|---|---|---|
| Year | Date | Market Value | Taxable Market Value | Gross Assessed | Exemption | Net Assessed | ||
|
2025 |
02/14/2025 |
261,500 |
261,500 |
28,765 |
0 |
28,765 |
||
|
2024 |
02/13/2024 |
255,000 |
255,000 |
28,050 |
0 |
28,050 |
||
|
2023 |
02/14/2023 |
246,500 |
246,500 |
27,115 |
0 |
27,115 |
||
|
2022 |
03/15/2022 |
234,500 |
219,948 |
24,194 |
0 |
24,194 |
||
|
2021 |
03/19/2021 |
214,500 |
209,475 |
23,042 |
0 |
23,042 |
||
| Property Building Permit History | ||||||
|---|---|---|---|---|---|---|
| Issued | Permit # | Provided by | Bldg # | Description | Est Construction Cost | Status |
|
4/18/2004 |
10290909 |
OKLAHOMA CITY |
1 |
Burn - Trip |
3,500 |
Inactive |
| Click button on building number to access detailed information: | ||||||
|---|---|---|---|---|---|---|
| Bldg # | Vacant/Improved Land | Bldg Description | Year Built | SqFt | # Stories | |
|
1 |
Improved |
1½ Story Fin |
1943 |
1,560 |
1.5 Stories |
|