|
|
|
| Larry Stein Oklahoma County Assessor (405) 713-1200 - Public Access System |
|
|
|
|
|
|
| Real Property Display - Screen Produced 3/16/2026 7:41:46 AM | ||||
|---|---|---|---|---|
| Account: R051457700 | Type: Residential | Location: |
2042 NW 31ST ST |
|
| Building Name/Occupant: |
|
OKLAHOMA CITY |
||
| Owner Name 1: | KHALIL SAMIR & NAJAYA TRS |
Parcel PIN#: |
2680-05-145-7700 |
|
| Owner Name 2: | KHALIL FAMILY REV TRUST | 1/4 section #: |
2680 |
|
| Owner Name 3: | Parent Acct: |
|
||
| Billing Address: | 10504 WHITECHAPEL ST | Tax District: |
|
|
| City, State, Zip | OKLAHOMA CITY, OK 73162-6962 | School System: |
Oklahoma City #89 |
|
|
Country: (If noted) |
Land Size: |
0.1942 Acres |
||
|
Land Value: 21,573 |
|
|||
|
Sect 20-T12N-R3W Qtr NW |
OFFUTT ADDITION
Block
002
Lot
000
|
|||
| Full Legal Description: OFFUTT ADDITION 002 000 LOTS 10 & 11 |
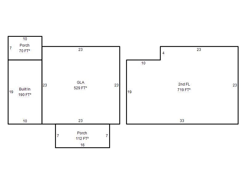
| Photo & Sketch (if available) | Comp Sales (ordered by relevancy) |
|
||||||||||||||||||
|
||||||||||||||||||||
| Value History (*The County Treasurer 405-713-1300 posts & collects actual tax amounts. Contact information HERE) | |||||||||||||
|---|---|---|---|---|---|---|---|---|---|---|---|---|---|
| Year | Market Value | Taxable Mkt Value | Gross Assessed | Exemption | Net Assessed | Millage | Est. Tax | Tax Savings | |||||
|
2025 |
177,500 |
123,034 |
13,533 |
0 |
13,533 |
122.90 |
$1,663 |
$736 |
|||||
|
2024 |
173,500 |
117,176 |
12,888 |
0 |
12,888 |
123.89 |
$1,597 |
$768 |
|||||
|
2023 |
169,500 |
111,597 |
12,275 |
0 |
12,275 |
122.82 |
$1,508 |
$782 |
|||||
|
2022 |
139,000 |
106,283 |
11,690 |
0 |
11,690 |
117.63 |
$1,375 |
$423 |
|||||
|
2021 |
125,500 |
101,222 |
11,134 |
0 |
11,134 |
117.70 |
$1,311 |
$314 |
|||||
| Property Account Status/Adjustments/Exemptions | ||
|---|---|---|
| Account # | Exemption Description | Amount |
|
R051457700 |
5% Capped Account |
0 |
| Property Deed Transaction History (Recorded in the County Clerk's Office) | ||||||||||
|---|---|---|---|---|---|---|---|---|---|---|
| Date | Type | Book | Page | Price | Grantor | Grantee | ||||
|
1/26/2024 |
|
Deeds |
$0 |
KHALIL SAMIR S & NAJAYA D |
KHALIL SAMIR & NAJAYA TRS |
|||||
|
9/5/2013 |
|
Hmstd Off & |
$0 |
KHALIL OMAR J |
KHALIL SAMIR S & NAJAYA D |
|||||
|
4/27/2011 |
|
Deeds |
$16,500 |
PICKENS BRENT |
KHALIL OMAR J |
|||||
|
11/27/2006 |
|
Other |
$0 |
SECRETARY OF HOUSING & URBAN DEV |
PICKENS BRENT |
|||||
|
6/9/2006 |
|
Hmstd Off & |
$0 |
MARCUM BOBBY & DENISE |
SECRETARY OF HOUSING & URBAN DEV |
|||||
| Last Mailed Notice of Value (N.O.V.) Information/History | ||||||||
|---|---|---|---|---|---|---|---|---|
| Year | Date | Market Value | Taxable Market Value | Gross Assessed | Exemption | Net Assessed | ||
|
2026 |
02/23/2026 |
177,500 |
129,185 |
14,209 |
0 |
14,209 |
||
|
2025 |
02/14/2025 |
177,500 |
123,034 |
13,533 |
0 |
13,533 |
||
|
2024 |
02/13/2024 |
173,500 |
117,176 |
12,888 |
0 |
12,888 |
||
|
2024 |
03/01/2024 |
173,500 |
117,176 |
12,888 |
0 |
12,888 |
||
|
2023 |
02/14/2023 |
169,500 |
111,597 |
12,275 |
0 |
12,275 |
||
| Property Building Permit History | ||||||
|---|---|---|---|---|---|---|
| Issued | Permit # | Provided by | Bldg # | Description | Est Construction Cost | Status |
|
3/22/2016 |
10482622 |
OKLAHOMA CITY |
1 |
Burn - Trip |
2,000 |
Inactive |
|
5/3/2011 |
10426859 |
COUNTY |
1 |
Fire Remodel |
0 |
Inactive |
|
1/10/2011 |
10417873 |
OKLAHOMA CITY |
1 |
Burn - Trip |
10,000 |
Inactive |
| Click button on building number to access detailed information: | ||||||
|---|---|---|---|---|---|---|
| Bldg # | Vacant/Improved Land | Bldg Description | Year Built | SqFt | # Stories | |
|
1 |
Improved |
2 Story |
1938 |
1,248 |
2 Stories |
|