|
|
|
| Larry Stein Oklahoma County Assessor (405) 713-1200 - Public Access System |
|
|
|
|
|
|
| Real Property Display - Screen Produced 2/27/2026 8:37:12 AM | ||||
|---|---|---|---|---|
| Account: R038550100 | Type: Residential | Location: |
701 NE 34TH TER |
|
| Building Name/Occupant: |
|
OKLAHOMA CITY |
||
| Owner Name 1: | MANN CAROLYN LOUISE |
Parcel PIN#: |
2685-03-855-0100 |
|
| Owner Name 2: | 1/4 section #: |
2685 |
||
| Owner Name 3: | Parent Acct: |
|
||
| Billing Address: | 1801 NE 25TH ST | Tax District: |
|
|
| City, State, Zip | OKLAHOMA CITY, OK 73111-3341 | School System: |
Oklahoma City #89 |
|
|
Country: (If noted) |
Land Size: |
0.1435 Acres |
||
|
Land Value: 9,063 |
|
|||
|
Sect 22-T12N-R3W Qtr NE |
DOWNING SCHMITT SUB
Block
012
Lot
001
|
|||
| Full Legal Description: DOWNING SCHMITT SUB 012 001 |
| Photo & Sketch (if available) | Comp Sales (ordered by relevancy) |
|
||||||||||||||||||
|
||||||||||||||||||||
| Value History (*The County Treasurer 405-713-1300 posts & collects actual tax amounts. Contact information HERE) | |||||||||||||
|---|---|---|---|---|---|---|---|---|---|---|---|---|---|
| Year | Market Value | Taxable Mkt Value | Gross Assessed | Exemption | Net Assessed | Millage | Est. Tax | Tax Savings | |||||
|
2025 |
81,500 |
44,208 |
4,862 |
0 |
4,862 |
122.90 |
$598 |
$504 |
|||||
|
2024 |
75,500 |
42,103 |
4,630 |
0 |
4,630 |
123.89 |
$574 |
$455 |
|||||
|
2023 |
70,500 |
40,099 |
4,410 |
0 |
4,410 |
122.82 |
$542 |
$411 |
|||||
|
2022 |
51,000 |
38,190 |
4,200 |
0 |
4,200 |
117.63 |
$494 |
$166 |
|||||
|
2021 |
38,500 |
36,372 |
4,000 |
0 |
4,000 |
117.70 |
$471 |
$28 |
|||||
| Property Account Status/Adjustments/Exemptions | ||
|---|---|---|
| Account # | Exemption Description | Amount |
|
R038550100 |
5% Capped Account |
0 |
| Property Deed Transaction History (Recorded in the County Clerk's Office) | |||||||
|---|---|---|---|---|---|---|---|
| Date | Type | Book | Page | Price | Grantor | Grantee | |
|
6/20/2025 |
|
Hmstd Off & |
$0 |
EATMON JAMES RUSSELL |
MANN CAROLYN LOUISE |
||
|
1/16/1990 |
|
Historical |
$10,000 |
KRUGER INVESTMENT COMPANY INC |
EATMON JAMES RUSSELL |
||
|
1/4/1990 |
|
Historical |
$0 |
ALLEN EURETHA |
KRUGER INVESTMENT COMPANY INC |
||
|
1/1/1983 |
|
Historical |
$0 |
|
ALLEN EURETHA |
||
| Last Mailed Notice of Value (N.O.V.) Information/History | ||||||||
|---|---|---|---|---|---|---|---|---|
| Year | Date | Market Value | Taxable Market Value | Gross Assessed | Exemption | Net Assessed | ||
|
2026 |
02/23/2026 |
87,000 |
46,418 |
5,105 |
0 |
5,105 |
||
|
2025 |
02/14/2025 |
81,500 |
44,208 |
4,862 |
0 |
4,862 |
||
|
2024 |
02/13/2024 |
75,500 |
42,103 |
4,630 |
0 |
4,630 |
||
|
2023 |
02/14/2023 |
70,500 |
40,099 |
4,410 |
0 |
4,410 |
||
|
2022 |
03/15/2022 |
51,000 |
38,190 |
4,200 |
0 |
4,200 |
||
| Property Building Permit History | |||||||||||
|---|---|---|---|---|---|---|---|---|---|---|---|
| Issued | Permit # | Provided by | Bldg # | Description | Est Construction Cost | Status | |||||
| No Building Permit records returned. | |||||||||||
| Click button on building number to access detailed information: | ||||||
|---|---|---|---|---|---|---|
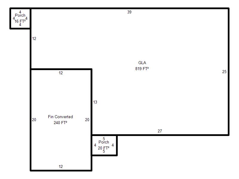
| Bldg # | Vacant/Improved Land | Bldg Description | Year Built | SqFt | # Stories | |
|
1 |
Improved |
Ranch 1 Story |
1949 |
819 |
1 Stories |
|