|
|
|
| Larry Stein Oklahoma County Assessor (405) 713-1200 - Public Access System |
|
|
|
|
|
|
| Real Property Display - Screen Produced 4/26/2026 5:41:08 AM | ||||
|---|---|---|---|---|
| Account: R036696050 | Type: Residential | Location: |
824 NE 29TH ST |
|
| Building Name/Occupant: |
|
OKLAHOMA CITY |
||
| Owner Name 1: | BRUNER ZENOBIA SHAW |
Parcel PIN#: |
2686-03-669-6050 |
|
| Owner Name 2: | 1/4 section #: |
2686 |
||
| Owner Name 3: | Parent Acct: |
|
||
| Billing Address: | 824 NE 29TH ST | Tax District: |
|
|
| City, State, Zip | OKLAHOMA CITY, OK 73105-7923 | School System: |
Oklahoma City #89 |
|
|
Country: (If noted) |
Land Size: |
0.2984 Acres |
||
|
Land Value: 13,813 |
|
|||
|
Sect 22-T12N-R3W Qtr SE |
ALTA LAWN ADDITION
Block
002
Lot
000
|
|||
| Full Legal Description: ALTA LAWN ADDITION 002 000 LOTS 9 THRU 12 |
| Value History (*The County Treasurer 405-713-1300 posts & collects actual tax amounts. Contact information HERE) | |||||||||||||
|---|---|---|---|---|---|---|---|---|---|---|---|---|---|
| Year | Market Value | Taxable Mkt Value | Gross Assessed | Exemption | Net Assessed | Millage | Est. Tax | Tax Savings | |||||
|
2026 |
269,500 |
131,515 |
14,465 |
0 |
14,465 |
122.90 |
$1,778 |
$1,865 |
|||||
|
2025 |
260,000 |
125,253 |
13,777 |
1,000 |
12,777 |
122.90 |
$1,570 |
$1,945 |
|||||
|
2024 |
244,500 |
121,605 |
13,376 |
1,000 |
12,376 |
123.89 |
$1,533 |
$1,799 |
|||||
| Property Account Status/Adjustments/Exemptions | ||
|---|---|---|
| Account # | Exemption Description | Amount |
|
R036696050 |
5% Capped Account |
0 |
| Property Deed Transaction History (Recorded in the County Clerk's Office) | |||||||
|---|---|---|---|---|---|---|---|
| Date | Type | Book | Page | Price | Grantor | Grantee | |
|
3/20/2009 |
|
Deeds |
$0 |
BRUNER CHRISTOPHER & Z S |
BRUNER ZENOBIA SHAW |
||
|
11/11/1911 |
|
Historical |
$0 |
|
BRUNER CHRISTOPHER & Z S |
||
| Last Mailed Notice of Value (N.O.V.) Information/History | ||||||||
|---|---|---|---|---|---|---|---|---|
| Year | Date | Market Value | Taxable Market Value | Gross Assessed | Exemption | Net Assessed | ||
|
2026 |
02/23/2026 |
269,500 |
131,515 |
14,465 |
0 |
14,465 |
||
|
2025 |
02/14/2025 |
260,000 |
125,253 |
13,777 |
1,000 |
12,777 |
||
|
2024 |
02/13/2024 |
244,500 |
121,605 |
13,376 |
1,000 |
12,376 |
||
| Property Building Permit History | |||||||||||
|---|---|---|---|---|---|---|---|---|---|---|---|
| Issued | Permit # | Provided by | Bldg # | Description | Est Construction Cost | Status | |||||
|
1/23/2015 |
10471070 |
OKLAHOMA CITY |
1 |
Fire Remodel |
120,000 |
Inactive |
|||||
|
11/1/2006 |
10329847 |
OKLAHOMA CITY |
1 |
Main Dwellin |
140,000 |
Inactive |
|||||
|
10/10/2006 |
10328956 |
OKLAHOMA CITY |
1 |
Demolish |
4,500 |
Inactive |
|||||
| Click button below to access detailed information and additional property photos: | ||||||
|---|---|---|---|---|---|---|
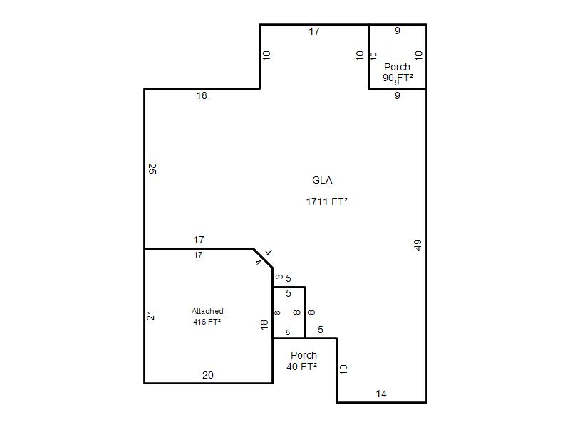
| Bldg # | Vacant/Improved Land | Bldg Description | Year Built | SqFt | # Stories | |
|
1 |
Improved |
Ranch 1 Story |
2007 |
1,711 |
1 Stories |
|