|
|
|
| Larry Stein Oklahoma County Assessor (405) 713-1200 - Public Access System |
|
|
|
|
|
|
| Real Property Display - Screen Produced 2/27/2026 7:04:27 AM | ||||
|---|---|---|---|---|
| Account: R070521315 | Type: Residential | Location: |
1524 NE 33RD ST |
|
| Building Name/Occupant: |
|
OKLAHOMA CITY |
||
| Owner Name 1: | HENDRICKS DAWSON SCOTT & MIRANDA |
Parcel PIN#: |
2689-07-052-1315 |
|
| Owner Name 2: | 1/4 section #: |
2689 |
||
| Owner Name 3: | Parent Acct: |
|
||
| Billing Address: | 529 NW 176TH ST | Tax District: |
|
|
| City, State, Zip | EDMOND, OK 73012-6940 | School System: |
Oklahoma City #89 |
|
|
Country: (If noted) |
Land Size: |
0.2686 Acres |
||
|
Land Value: 13,104 |
|
|||
|
Sect 23-T12N-R3W Qtr NE |
PARK ESTATES 12
Block
002
Lot
016
|
|||
| Full Legal Description: PARK ESTATES 12 002 016 |
| Photo & Sketch (if available) | Comp Sales (ordered by relevancy) |
|
||||||||||||||||||
|
||||||||||||||||||||
| Value History (*The County Treasurer 405-713-1300 posts & collects actual tax amounts. Contact information HERE) | |||||||||||||
|---|---|---|---|---|---|---|---|---|---|---|---|---|---|
| Year | Market Value | Taxable Mkt Value | Gross Assessed | Exemption | Net Assessed | Millage | Est. Tax | Tax Savings | |||||
|
2025 |
177,000 |
164,823 |
18,130 |
0 |
18,130 |
122.90 |
$2,228 |
$165 |
|||||
|
2024 |
167,000 |
156,975 |
17,267 |
0 |
17,267 |
123.89 |
$2,139 |
$137 |
|||||
|
2023 |
149,500 |
149,500 |
16,445 |
0 |
16,445 |
122.82 |
$2,020 |
$0 |
|||||
|
2022 |
143,500 |
143,500 |
15,785 |
0 |
15,785 |
117.63 |
$1,857 |
$0 |
|||||
|
2021 |
59,000 |
53,829 |
5,920 |
0 |
5,920 |
117.70 |
$697 |
$67 |
|||||
| Property Account Status/Adjustments/Exemptions | ||
|---|---|---|
| Account # | Exemption Description | Amount |
|
R070521315 |
5% Capped Account |
0 |
| Property Deed Transaction History (Recorded in the County Clerk's Office) | ||||||||||
|---|---|---|---|---|---|---|---|---|---|---|
| Date | Type | Book | Page | Price | Grantor | Grantee | ||||
|
9/29/2021 |
|
Deeds |
$145,000 |
ESCROW STRATEGY LLC |
HENDRICKS DAWSON SCOTT & MIRANDA |
|||||
|
4/8/2021 |
|
Deeds |
$62,000 |
SELECT SOLUTIONS LLC |
ESCROW STRATEGY LLC |
|||||
|
3/15/2021 |
|
Deeds |
$32,000 |
HOMES OF OKC INC |
SELECT SOLUTIONS LLC |
|||||
|
2/22/2021 |
|
Hmstd Off & |
$0 |
HOMES OF OKC INC |
HOMES OF OKC INC |
|||||
|
12/8/2020 |
|
Hmstd Off & |
$0 |
BROWN STEPHANIE |
HOMES OF OKC INC |
|||||
| Last Mailed Notice of Value (N.O.V.) Information/History | ||||||||
|---|---|---|---|---|---|---|---|---|
| Year | Date | Market Value | Taxable Market Value | Gross Assessed | Exemption | Net Assessed | ||
|
2025 |
02/14/2025 |
177,000 |
164,823 |
18,130 |
0 |
18,130 |
||
|
2024 |
02/13/2024 |
167,000 |
156,975 |
17,267 |
0 |
17,267 |
||
|
2023 |
02/14/2023 |
149,500 |
149,500 |
16,445 |
0 |
16,445 |
||
|
2022 |
03/15/2022 |
143,500 |
143,500 |
15,785 |
0 |
15,785 |
||
|
2021 |
03/19/2021 |
59,000 |
53,829 |
5,921 |
0 |
5,921 |
||
| Property Building Permit History | |||||||||||
|---|---|---|---|---|---|---|---|---|---|---|---|
| Issued | Permit # | Provided by | Bldg # | Description | Est Construction Cost | Status | |||||
| No Building Permit records returned. | |||||||||||
| Click button on building number to access detailed information: | ||||||
|---|---|---|---|---|---|---|
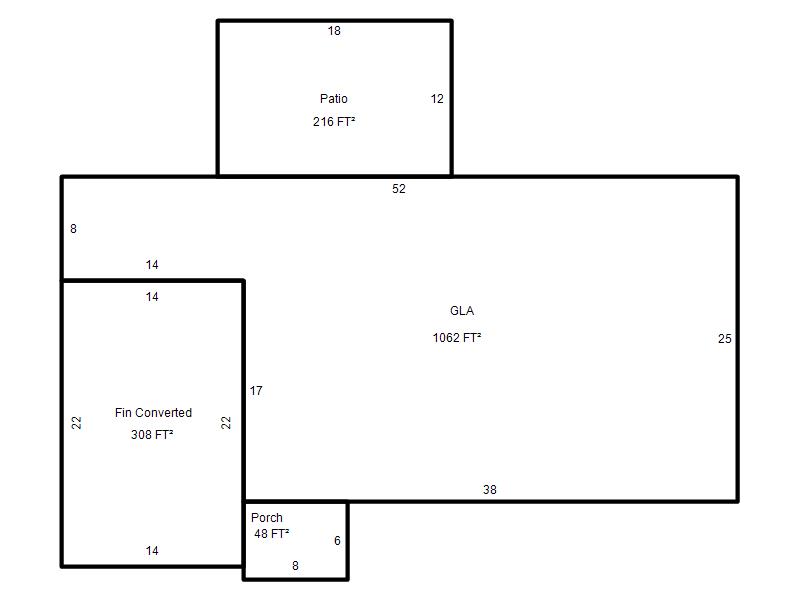
| Bldg # | Vacant/Improved Land | Bldg Description | Year Built | SqFt | # Stories | |
|
1 |
Improved |
Ranch 1 Story |
1956 |
1,062 |
1 Stories |
|