|
|
|
| Larry Stein Oklahoma County Assessor (405) 713-1200 - Public Access System |
|
|
|
|
|
|
| Real Property Display - Screen Produced 4/23/2026 11:18:53 PM | ||||
|---|---|---|---|---|
| Account: R070656000 | Type: Residential | Location: |
1621 NE 33RD ST |
|
| Building Name/Occupant: |
|
OKLAHOMA CITY |
||
| Owner Name 1: | FLURRY MELINDA & CHARLES |
Parcel PIN#: |
2689-07-065-6000 |
|
| Owner Name 2: | 1/4 section #: |
2689 |
||
| Owner Name 3: | Parent Acct: |
|
||
| Billing Address: | 4111 FRONTIER LN | Tax District: |
|
|
| City, State, Zip | TUTTLE , OK 73089 | School System: |
Oklahoma City #89 |
|
|
Country: (If noted) |
UNITED STATES |
Land Size: |
0.1550 Acres |
|
|
Land Value: 1,080 |
|
|||
|
Sect 23-T12N-R3W Qtr NE |
PATRICK MOORE SECOND
Block
002
Lot
000
|
|||
| Full Legal Description: PATRICK MOORE SECOND 002 000 LOTS 35 & 36 |
| Value History (*The County Treasurer 405-713-1300 posts & collects actual tax amounts. Contact information HERE) | |||||||||||||
|---|---|---|---|---|---|---|---|---|---|---|---|---|---|
| Year | Market Value | Taxable Mkt Value | Gross Assessed | Exemption | Net Assessed | Millage | Est. Tax | Tax Savings | |||||
|
2026 |
103,000 |
103,000 |
11,330 |
0 |
11,330 |
122.90 |
$1,392 |
$0 |
|||||
|
2025 |
108,500 |
108,500 |
11,935 |
0 |
11,935 |
122.90 |
$1,467 |
$0 |
|||||
|
2024 |
60,000 |
26,232 |
2,885 |
0 |
2,885 |
123.89 |
$357 |
$460 |
|||||
| Property Account Status/Adjustments/Exemptions | ||
|---|---|---|
| Account # | Exemption Description | Amount |
|
R070656000 |
5% Capped Account |
0 |
| Property Deed Transaction History (Recorded in the County Clerk's Office) | ||||||||||
|---|---|---|---|---|---|---|---|---|---|---|
| Date | Type | Book | Page | Price | Grantor | Grantee | ||||
|
7/2/2024 |
|
Deeds |
$98,000 |
RAK PROPERTIES INC |
FLURRY MELINDA & CHARLES |
|||||
|
2/10/2004 |
|
Other |
$0 |
METRO OKC LLC |
RAK PROPERTIES INC |
|||||
|
10/13/1998 |
|
Historical |
$0 |
MORRISON JACK & S |
METRO OKC LLC |
|||||
| Last Mailed Notice of Value (N.O.V.) Information/History | ||||||||
|---|---|---|---|---|---|---|---|---|
| Year | Date | Market Value | Taxable Market Value | Gross Assessed | Exemption | Net Assessed | ||
|
2025 |
02/14/2025 |
108,500 |
108,500 |
11,935 |
0 |
11,935 |
||
|
2024 |
02/13/2024 |
60,000 |
26,232 |
2,885 |
0 |
2,885 |
||
|
2023 |
02/14/2023 |
54,000 |
24,983 |
2,747 |
0 |
2,747 |
||
| Property Building Permit History | |||||||||||
|---|---|---|---|---|---|---|---|---|---|---|---|
| Issued | Permit # | Provided by | Bldg # | Description | Est Construction Cost | Status | |||||
| No Building Permit records returned. | |||||||||||
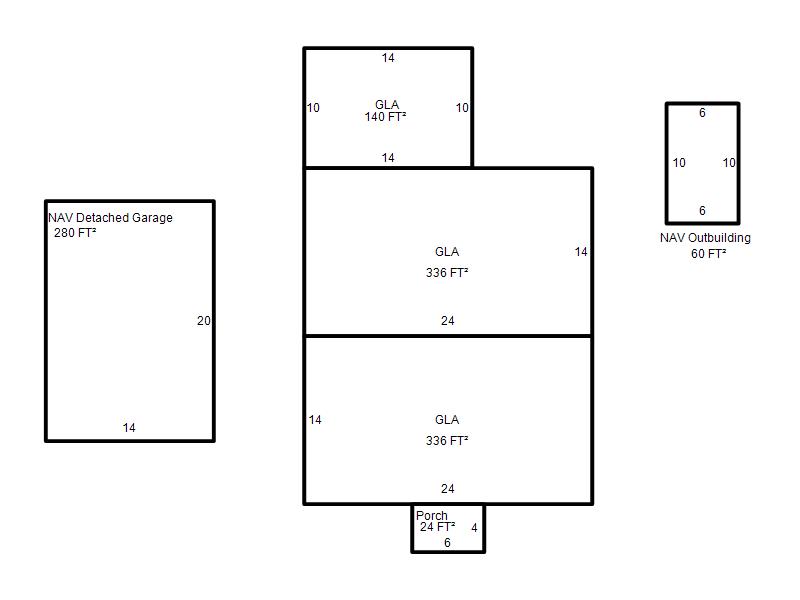
| Click button below to access detailed information and additional property photos: | ||||||
|---|---|---|---|---|---|---|
| Bldg # | Vacant/Improved Land | Bldg Description | Year Built | SqFt | # Stories | |
|
1 |
Improved |
Ranch 1 Story |
1916 |
812 |
1 Stories |
|