Larry Stein Oklahoma County Assessor (405) 713-1200 - Public Access System
Home Contact Us Guest Book Map Search New Search
Real Property Display - Screen Produced   4/24/2026 12:58:49 AM 
Account: R035241055  Type: Residential

  

Location:

1409 GARLAND AVE

Building Name/Occupant:

 

OKLAHOMA CITY

Owner Name 1:  SOUTHWEST VISIONARY INVESTMENTS LLC

Parcel PIN#:

2692-03-524-1055

Owner Name 2:    1/4 section #:

2692

Owner Name 3:    Parent Acct:

 

Billing Address:  7809 SUNSET BLVD Tax District:

City, State, Zip  ROWLETT, TX  75088 School System:

Oklahoma City #89

Country: (If noted)

  

Land Size:

0.1671  Acres

Personal Property

Land Value: 17,836 

Treasurer:

Sect 23-T12N-R3W Qtr NW

 PARK ESTATE RANCHETT   Block 001  Lot 006   Subdivision Sales
 Full Legal Description:  PARK ESTATE RANCHETT 001 006

NOTE:  The following sales may or may not be used to determine Fair Market Value

Photo & Sketch (if available) Sales  Sales Report

 1513 NE 33RD ST OKLAHOMA CITY, OK

04/12/2024

 $92,500 

 1437 NE 34TH ST OKLAHOMA CITY, OK

11/14/2025

 $94,500 

 1513 NE 34TH ST OKLAHOMA CITY, OK

01/17/2025

 $108,000 

 3409 SPRINGLAKE DR OKLAHOMA CITY, OK

05/16/2025

 $220,000 

 3601 N TERRY AVE OKLAHOMA CITY, OK

11/21/2025

 $180,000 

 321 NE 26TH ST OKLAHOMA CITY, OK

03/29/2024

 $130,000 

Value History  (*The County Treasurer 405-713-1300 posts & collects actual tax amounts.  Contact information  HERE)
Year Market Value Taxable Mkt Value Gross Assessed Exemption Net Assessed Millage Est. Tax Tax Savings

2026

124,000 

104,186 

11,459 

11,459 

122.90 

$1,408 

$268 

2025

139,500 

99,225 

10,914 

10,914 

122.90 

$1,341 

$544 

2024

99,500 

94,500 

10,395 

10,395 

123.89 

$1,288 

$68 

[1/10]
Property Account Status/Adjustments/Exemptions
Account # Exemption Description Amount

R035241055

5% Capped Account

Property Deed Transaction History   (Recorded in the County Clerk's Office)
Date Type Book Page Price Grantor Grantee

8/31/2022

Deeds

15267

1384

 $78,500 

GARFIELD AVIAL

LEGACY INVESTMENT HOLDINGS LLC

8/31/2022

Deeds

15274

620

 $91,000 

LEGACY INVESTMENT HOLDINGS LLC

SOUTHWEST VISIONARY INVESTMENTS LLC

10/21/2020

Hmstd Off &

14518

1294

 $0 

ARMSTEAD BETTY J

GARFIELD AVIAL

[1/2]
Last Mailed Notice of Value (N.O.V.) Information/History
Year Date Market Value Taxable Market Value Gross Assessed Exemption Net Assessed

2026

02/23/2026

128,000 

104,186 

11,459 

11,459 

2025

02/14/2025

139,500 

99,225 

10,914 

10,914 

2024

02/13/2024

99,500 

94,500 

10,395 

10,395 

[1/5]
Property Building Permit History
Issued Permit # Provided by Bldg # Description Est Construction Cost Status

1/2/1997

10189341

OKLAHOMA CITY

1

Fire Remodel

16,000 

Inactive

12/7/1996

10189340

OKLAHOMA CITY

1

Burn - Trip

20,000 

Inactive

Click button below to access detailed information and additional property photos:
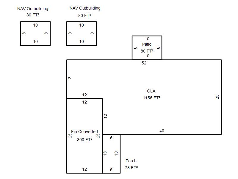
  Bldg # Vacant/Improved Land Bldg Description Year Built SqFt # Stories

Click

1

Improved

Ranch 1 Story

1956

1,156 

1 Stories