|
|
|
| Larry Stein Oklahoma County Assessor (405) 713-1200 - Public Access System |
|
|
|
|
|
|
| Real Property Display - Screen Produced 4/23/2026 8:19:37 PM | ||||
|---|---|---|---|---|
| Account: R035495000 | Type: Residential | Location: |
3501 N PROSPECT AVE |
|
| Building Name/Occupant: |
|
OKLAHOMA CITY |
||
| Owner Name 1: | ALLISON DAVID ANTHONY |
Parcel PIN#: |
2692-03-549-5000 |
|
| Owner Name 2: | 1/4 section #: |
2692 |
||
| Owner Name 3: | Parent Acct: |
|
||
| Billing Address: | 3501 N PROSPECT AVE | Tax District: |
|
|
| City, State, Zip | OKLAHOMA CITY, OK 73111 | School System: |
Oklahoma City #89 |
|
|
Country: (If noted) |
Land Size: |
0.1108 Acres |
||
|
Land Value: 5,470 |
|
|||
|
Sect 23-T12N-R3W Qtr NW |
SCALES PLACE ADD
Block
001
Lot
000
|
|||
| Full Legal Description: SCALES PLACE ADD 001 000 S71.7FT OF LOTS 24 THRU 26 |
| Value History (*The County Treasurer 405-713-1300 posts & collects actual tax amounts. Contact information HERE) | |||||||||||||
|---|---|---|---|---|---|---|---|---|---|---|---|---|---|
| Year | Market Value | Taxable Mkt Value | Gross Assessed | Exemption | Net Assessed | Millage | Est. Tax | Tax Savings | |||||
|
2026 |
196,000 |
196,000 |
21,560 |
0 |
21,560 |
122.90 |
$2,650 |
$0 |
|||||
|
2025 |
215,500 |
201,757 |
22,192 |
0 |
22,192 |
122.90 |
$2,728 |
$186 |
|||||
|
2024 |
204,000 |
192,150 |
21,136 |
0 |
21,136 |
123.89 |
$2,619 |
$161 |
|||||
| Property Account Status/Adjustments/Exemptions | ||
|---|---|---|
| Account # | Exemption Description | Amount |
|
R035495000 |
5% Capped Account |
0 |
| Property Deed Transaction History (Recorded in the County Clerk's Office) | ||||||||||
|---|---|---|---|---|---|---|---|---|---|---|
| Date | Type | Book | Page | Price | Grantor | Grantee | ||||
|
10/10/2025 |
|
Hmstd Off & |
$0 |
JDD INVESTORS GROUP LLC |
ALLISON DAVID ANTHONY |
|||||
|
12/17/2021 |
|
Hmstd Off & |
$0 |
MACIEL JOHNNY |
JDD INVESTING GROUP LLC |
|||||
|
12/17/2021 |
|
Hmstd Off & |
$0 |
MACIEL JOHNNY |
JDD INVESTORS GROUP LLC |
|||||
| Last Mailed Notice of Value (N.O.V.) Information/History | ||||||||
|---|---|---|---|---|---|---|---|---|
| Year | Date | Market Value | Taxable Market Value | Gross Assessed | Exemption | Net Assessed | ||
|
2025 |
02/14/2025 |
215,500 |
201,757 |
22,192 |
0 |
22,192 |
||
|
2024 |
02/13/2024 |
204,000 |
192,150 |
21,136 |
0 |
21,136 |
||
|
2023 |
03/02/2023 |
183,000 |
183,000 |
20,130 |
0 |
20,130 |
||
| Property Building Permit History | |||||||||||
|---|---|---|---|---|---|---|---|---|---|---|---|
| Issued | Permit # | Provided by | Bldg # | Description | Est Construction Cost | Status | |||||
| No Building Permit records returned. | |||||||||||
| Click button below to access detailed information and additional property photos: | ||||||
|---|---|---|---|---|---|---|
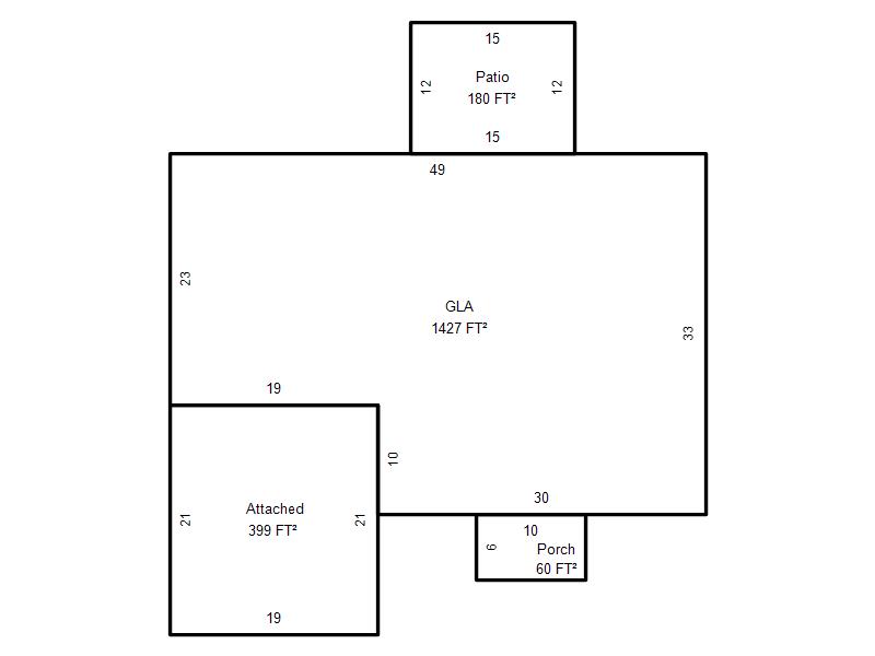
| Bldg # | Vacant/Improved Land | Bldg Description | Year Built | SqFt | # Stories | |
|
1 |
Improved |
Ranch 1 Story |
2022 |
1,427 |
1 Stories |
|