|
|
|
| Larry Stein Oklahoma County Assessor (405) 713-1200 - Public Access System |
|
|
|
|
|
|
| Real Property Display - Screen Produced 3/3/2026 11:24:40 AM | ||||
|---|---|---|---|---|
| Account: R030034303 | Type: Residential | Location: |
2200 HARDIN DR |
|
| Building Name/Occupant: |
|
OKLAHOMA CITY |
||
| Owner Name 1: | CAMELOT CAPITAL LLC |
Parcel PIN#: |
2700-03-003-4303 |
|
| Owner Name 2: | 1/4 section #: |
2700 |
||
| Owner Name 3: | Parent Acct: |
|
||
| Billing Address: | PO BOX 16103 | Tax District: |
|
|
| City, State, Zip | OKLAHOMA CITY, OK 73113 | School System: |
Oklahoma City #89 |
|
|
Country: (If noted) |
Land Size: |
0.1515 Acres |
||
|
Land Value: 6,930 |
|
|||
|
Sect 25-T12N-R3W Qtr NW |
CRESTON HILLS ADD
Block
016
Lot
012
|
|||
| Full Legal Description: CRESTON HILLS ADD 016 012 |
| Photo & Sketch (if available) | Comp Sales (ordered by relevancy) |
|
||||||||||||||||||
|
||||||||||||||||||||
| Value History (*The County Treasurer 405-713-1300 posts & collects actual tax amounts. Contact information HERE) | |||||||||||||
|---|---|---|---|---|---|---|---|---|---|---|---|---|---|
| Year | Market Value | Taxable Mkt Value | Gross Assessed | Exemption | Net Assessed | Millage | Est. Tax | Tax Savings | |||||
|
2025 |
78,000 |
44,029 |
4,842 |
0 |
4,842 |
122.90 |
$595 |
$459 |
|||||
|
2024 |
76,500 |
41,933 |
4,612 |
0 |
4,612 |
123.89 |
$571 |
$471 |
|||||
|
2023 |
64,000 |
39,937 |
4,392 |
0 |
4,392 |
122.82 |
$540 |
$325 |
|||||
|
2022 |
45,500 |
38,036 |
4,183 |
0 |
4,183 |
117.63 |
$492 |
$97 |
|||||
|
2021 |
36,500 |
36,225 |
3,984 |
0 |
3,984 |
117.70 |
$469 |
$4 |
|||||
| Property Account Status/Adjustments/Exemptions | ||
|---|---|---|
| Account # | Exemption Description | Amount |
|
R030034303 |
5% Capped Account |
0 |
| Property Deed Transaction History (Recorded in the County Clerk's Office) | ||||||||||
|---|---|---|---|---|---|---|---|---|---|---|
| Date | Type | Book | Page | Price | Grantor | Grantee | ||||
|
5/31/2019 |
|
Deeds |
$33,000 |
RICHARDSON JOHN M |
CAMELOT CAPITAL LLC |
|||||
|
3/31/2016 |
|
Hmstd Off & |
$0 |
RICHARDSON GEORGE M TRS |
RICHARDSON JOHN M |
|||||
|
3/7/2003 |
|
Deeds |
$0 |
RICHARDSON GEORGE M & OLINE M |
RICHARDSON GEORGE M |
|||||
|
3/7/2003 |
|
Deeds |
$0 |
RICHARDSON GEORGE M |
RICHARDSON GEORGE M TRS |
|||||
|
6/26/1997 |
|
Historical |
$27,000 |
KERNEY MATTIE |
RICHARDSON GEORGE M & OLINE M |
|||||
| Last Mailed Notice of Value (N.O.V.) Information/History | ||||||||
|---|---|---|---|---|---|---|---|---|
| Year | Date | Market Value | Taxable Market Value | Gross Assessed | Exemption | Net Assessed | ||
|
2026 |
02/23/2026 |
96,500 |
46,230 |
5,085 |
0 |
5,085 |
||
|
2025 |
02/14/2025 |
78,000 |
44,029 |
4,842 |
0 |
4,842 |
||
|
2024 |
02/13/2024 |
76,500 |
41,933 |
4,612 |
0 |
4,612 |
||
|
2023 |
02/14/2023 |
64,000 |
39,937 |
4,392 |
0 |
4,392 |
||
|
2022 |
03/15/2022 |
45,500 |
38,036 |
4,183 |
0 |
4,183 |
||
| Property Building Permit History | |||||||||||
|---|---|---|---|---|---|---|---|---|---|---|---|
| Issued | Permit # | Provided by | Bldg # | Description | Est Construction Cost | Status | |||||
| No Building Permit records returned. | |||||||||||
| Click button on building number to access detailed information: | ||||||
|---|---|---|---|---|---|---|
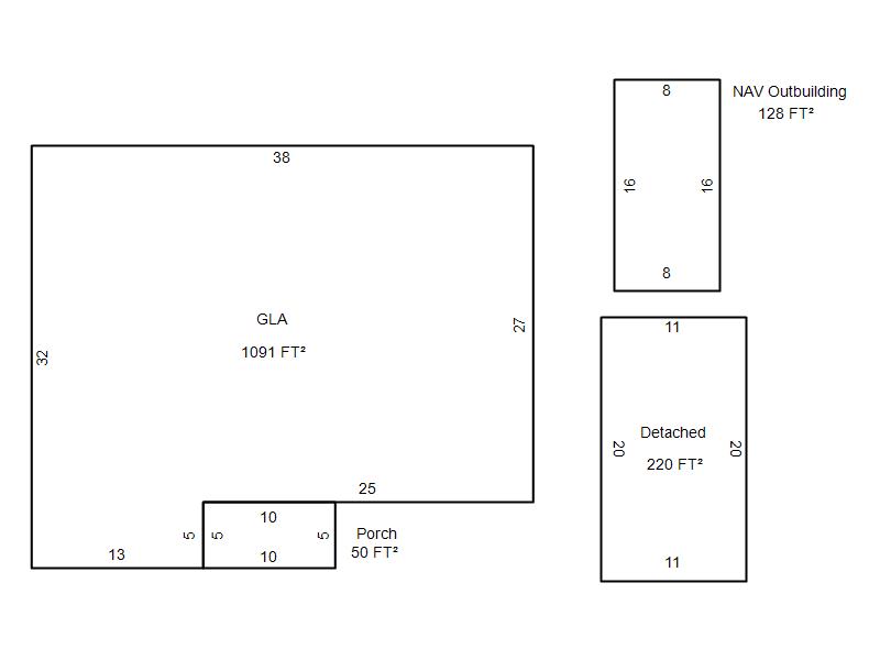
| Bldg # | Vacant/Improved Land | Bldg Description | Year Built | SqFt | # Stories | |
|
1 |
Improved |
Ranch 1 Story |
1940 |
1,091 |
1 Stories |
|