|
|
|
| Larry Stein Oklahoma County Assessor (405) 713-1200 - Public Access System |
|
|
|
|
|
|
| Real Property Display - Screen Produced 3/5/2026 3:32:40 AM | ||||
|---|---|---|---|---|
| Account: R030034745 | Type: Residential | Location: |
2240 NE 20TH ST |
|
| Building Name/Occupant: |
|
OKLAHOMA CITY |
||
| Owner Name 1: | 3225 15TH LLC |
Parcel PIN#: |
2700-03-003-4745 |
|
| Owner Name 2: | 1/4 section #: |
2700 |
||
| Owner Name 3: | Parent Acct: |
|
||
| Billing Address: | 8208 N CLASSEN BLVD | Tax District: |
|
|
| City, State, Zip | OKLAHOMA CITY, OK 73114-2124 | School System: |
Oklahoma City #89 |
|
|
Country: (If noted) |
Land Size: |
0.1515 Acres |
||
|
Land Value: 6,930 |
|
|||
|
Sect 25-T12N-R3W Qtr NW |
CRESTON HILLS ADD
Block
018
Lot
009
|
|||
| Full Legal Description: CRESTON HILLS ADD 018 009 |
| Photo & Sketch (if available) | Comp Sales (ordered by relevancy) |
|
||||||||||||||||||
|
||||||||||||||||||||
| Value History (*The County Treasurer 405-713-1300 posts & collects actual tax amounts. Contact information HERE) | |||||||||||||
|---|---|---|---|---|---|---|---|---|---|---|---|---|---|
| Year | Market Value | Taxable Mkt Value | Gross Assessed | Exemption | Net Assessed | Millage | Est. Tax | Tax Savings | |||||
|
2025 |
78,500 |
78,500 |
8,635 |
0 |
8,635 |
122.90 |
$1,061 |
$0 |
|||||
|
2024 |
78,500 |
36,906 |
4,059 |
0 |
4,059 |
123.89 |
$503 |
$567 |
|||||
|
2023 |
65,000 |
35,149 |
3,866 |
0 |
3,866 |
122.82 |
$475 |
$403 |
|||||
|
2022 |
46,500 |
33,476 |
3,682 |
0 |
3,682 |
117.63 |
$433 |
$169 |
|||||
|
2021 |
40,000 |
31,882 |
3,507 |
0 |
3,507 |
117.70 |
$413 |
$105 |
|||||
| Property Account Status/Adjustments/Exemptions | ||
|---|---|---|
| Account # | Exemption Description | Amount |
|
R030034745 |
5% Capped Account |
0 |
| Property Deed Transaction History (Recorded in the County Clerk's Office) | ||||||||||
|---|---|---|---|---|---|---|---|---|---|---|
| Date | Type | Book | Page | Price | Grantor | Grantee | ||||
|
11/26/2024 |
|
Deeds |
$77,000 |
WARRIOR HOLDINGS LLC |
3225 15TH LLC |
|||||
|
4/19/2007 |
|
Deeds |
$12,000 |
WASHINGTON MUTUAL BANK |
WARRIOR HOLDINGS LLC |
|||||
|
11/20/2006 |
|
Hmstd Off & |
$0 |
FRANKLIN PRISCILLA C |
WASHINGTON MUTUAL BANK |
|||||
|
4/1/2004 |
|
Deeds |
$0 |
FRANKLIN C & OLA E |
FRANKLIN OLA ETTA |
|||||
|
4/1/2004 |
|
Other |
$0 |
FRANKLIN OLA ETTA |
FRANKLIN PRISCILLA C |
|||||
| Last Mailed Notice of Value (N.O.V.) Information/History | ||||||||
|---|---|---|---|---|---|---|---|---|
| Year | Date | Market Value | Taxable Market Value | Gross Assessed | Exemption | Net Assessed | ||
|
2026 |
02/23/2026 |
99,000 |
82,425 |
9,066 |
0 |
9,066 |
||
|
2025 |
02/14/2025 |
78,500 |
78,500 |
8,635 |
0 |
8,635 |
||
|
2024 |
02/13/2024 |
78,500 |
36,906 |
4,059 |
0 |
4,059 |
||
|
2023 |
02/14/2023 |
65,000 |
35,149 |
3,866 |
0 |
3,866 |
||
|
2022 |
03/15/2022 |
46,500 |
33,476 |
3,682 |
0 |
3,682 |
||
| Property Building Permit History | |||||||||||
|---|---|---|---|---|---|---|---|---|---|---|---|
| Issued | Permit # | Provided by | Bldg # | Description | Est Construction Cost | Status | |||||
| No Building Permit records returned. | |||||||||||
| Click button on building number to access detailed information: | ||||||
|---|---|---|---|---|---|---|
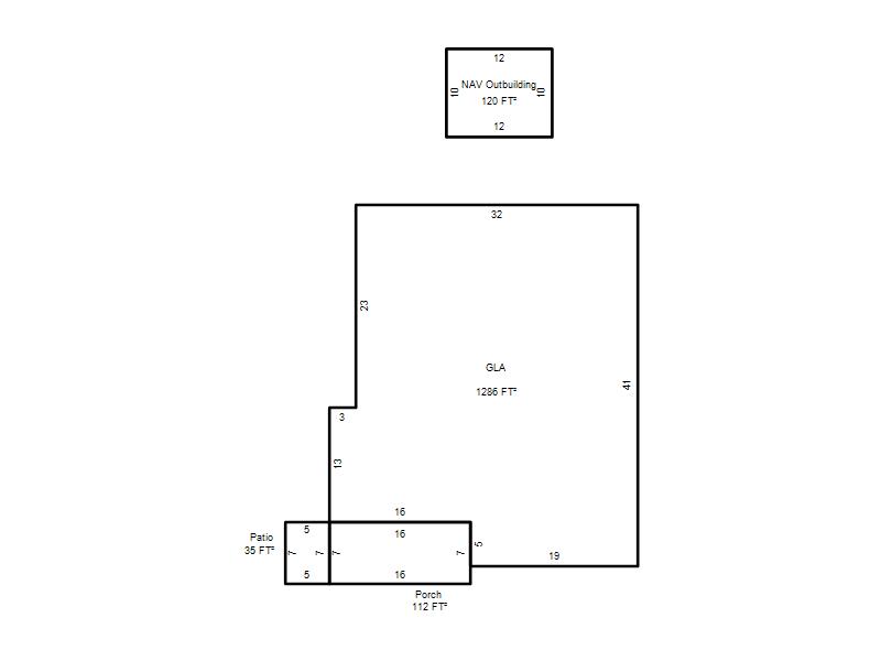
| Bldg # | Vacant/Improved Land | Bldg Description | Year Built | SqFt | # Stories | |
|
1 |
Improved |
Ranch 1 Story |
1930 |
1,286 |
1 Stories |
|