|
|
|
| Larry Stein Oklahoma County Assessor (405) 713-1200 - Public Access System |
|
|
|
|
|
|
| Real Property Display - Screen Produced 3/3/2026 11:27:06 AM | ||||
|---|---|---|---|---|
| Account: R030037650 | Type: Residential | Location: |
1700 ELTON AVE |
|
| Building Name/Occupant: |
|
OKLAHOMA CITY |
||
| Owner Name 1: | WALKER ALFRED L TRUST |
Parcel PIN#: |
2700-03-003-7650 |
|
| Owner Name 2: | CROWNOVER MARY CO TRS | 1/4 section #: |
2700 |
|
| Owner Name 3: | BLAIR JANITA CO TRS | Parent Acct: |
|
|
| Billing Address: | 3909 LAMAR DR | Tax District: |
|
|
| City, State, Zip | DEL CITY, OK 73115 | School System: |
Oklahoma City #89 |
|
|
Country: (If noted) |
Land Size: |
0.1612 Acres |
||
|
Land Value: 7,371 |
|
|||
|
Sect 25-T12N-R3W Qtr NW |
CRESTON HILLS ADD
Block
030
Lot
006
|
|||
| Full Legal Description: CRESTON HILLS ADD 030 006 |
| Photo & Sketch (if available) | Comp Sales (ordered by relevancy) |
|
||||||||||||||||||
|
||||||||||||||||||||
| Value History (*The County Treasurer 405-713-1300 posts & collects actual tax amounts. Contact information HERE) | |||||||||||||
|---|---|---|---|---|---|---|---|---|---|---|---|---|---|
| Year | Market Value | Taxable Mkt Value | Gross Assessed | Exemption | Net Assessed | Millage | Est. Tax | Tax Savings | |||||
|
2025 |
76,500 |
41,365 |
4,549 |
0 |
4,549 |
122.90 |
$559 |
$475 |
|||||
|
2024 |
76,500 |
39,396 |
4,333 |
0 |
4,333 |
123.89 |
$537 |
$506 |
|||||
|
2023 |
65,000 |
37,520 |
4,126 |
0 |
4,126 |
122.82 |
$507 |
$371 |
|||||
|
2022 |
48,000 |
35,734 |
3,930 |
0 |
3,930 |
117.63 |
$462 |
$159 |
|||||
|
2021 |
42,500 |
34,033 |
3,743 |
0 |
3,743 |
117.70 |
$441 |
$110 |
|||||
| Property Account Status/Adjustments/Exemptions | ||||||
|---|---|---|---|---|---|---|
| Account # | Exemption Description | Amount | ||||
| No adjustment/exemption records returned. | ||||||
| Property Deed Transaction History (Recorded in the County Clerk's Office) | ||||||||||
|---|---|---|---|---|---|---|---|---|---|---|
| Date | Type | Book | Page | Price | Grantor | Grantee | ||||
|
8/10/2021 |
|
Hmstd Off & |
$0 |
WALKER ALFRED L |
WALKER ALFRED L TRUST |
|||||
|
8/4/2017 |
|
Deeds |
$0 |
WALKER ALFRED L & ROSELLA |
WALKER ALFRED L |
|||||
|
9/24/2014 |
|
Deeds |
$28,000 |
BOWIE DENISE BACCUS |
WALKER ALFRED L & ROSELLA L |
|||||
|
2/7/2005 |
|
Deeds |
$0 |
BACCUS DENISE |
BOWIE DENISE BACCUS |
|||||
|
12/23/2003 |
|
Deeds |
$3,500 |
NOLAN SHARON D |
BACCUS DENISE |
|||||
| Last Mailed Notice of Value (N.O.V.) Information/History | ||||||||
|---|---|---|---|---|---|---|---|---|
| Year | Date | Market Value | Taxable Market Value | Gross Assessed | Exemption | Net Assessed | ||
|
2026 |
02/23/2026 |
93,500 |
43,433 |
4,777 |
0 |
4,777 |
||
|
2025 |
02/14/2025 |
76,500 |
41,365 |
4,549 |
0 |
4,549 |
||
|
2024 |
02/13/2024 |
76,500 |
39,396 |
4,333 |
0 |
4,333 |
||
|
2023 |
02/14/2023 |
65,000 |
37,520 |
4,126 |
0 |
4,126 |
||
|
2022 |
03/15/2022 |
48,000 |
35,734 |
3,930 |
0 |
3,930 |
||
| Property Building Permit History | ||||||
|---|---|---|---|---|---|---|
| Issued | Permit # | Provided by | Bldg # | Description | Est Construction Cost | Status |
|
4/15/1993 |
10188727 |
OKLAHOMA CITY |
1 |
Demolish |
0 |
Inactive |
|
2/1/1993 |
10188726 |
OKLAHOMA CITY |
1 |
Burn - Trip |
2,600 |
Inactive |
| Click button on building number to access detailed information: | ||||||
|---|---|---|---|---|---|---|
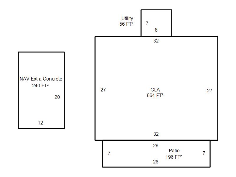
| Bldg # | Vacant/Improved Land | Bldg Description | Year Built | SqFt | # Stories | |
|
1 |
Improved |
Ranch 1 Story |
1944 |
864 |
1 Stories |
|