|
|
|
| Larry Stein Oklahoma County Assessor (405) 713-1200 - Public Access System |
|
|
|
|
|
|
| Real Property Display - Screen Produced 3/5/2026 5:54:27 PM | ||||
|---|---|---|---|---|
| Account: R031799025 | Type: Residential | Location: |
2131 N JORDAN AVE |
|
| Building Name/Occupant: |
|
OKLAHOMA CITY |
||
| Owner Name 1: | LIVE UNITED RENTALS LLC |
Parcel PIN#: |
2701-03-179-9025 |
|
| Owner Name 2: | 1/4 section #: |
2701 |
||
| Owner Name 3: | Parent Acct: |
|
||
| Billing Address: | 13 OAKWOOD DR | Tax District: |
|
|
| City, State, Zip | FOREST PARK, OK 73121-5410 | School System: |
Oklahoma City #89 |
|
|
Country: (If noted) |
Land Size: |
0.1550 Acres |
||
|
Land Value: 8,775 |
|
|||
|
Sect 26-T12N-R3W Qtr NE |
ROSS HT ADD SB BLK 7
Block
007
Lot
000
|
|||
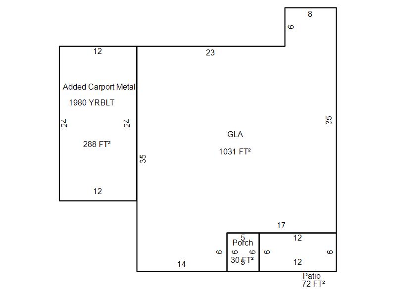
| Full Legal Description: ROSS HT ADD SB BLK 7 007 000 LOTS 41 & 42 |
| Photo & Sketch (if available) | Comp Sales (ordered by relevancy) |
|
||||||||||||||||||
|
||||||||||||||||||||
| Value History (*The County Treasurer 405-713-1300 posts & collects actual tax amounts. Contact information HERE) | |||||||||||||
|---|---|---|---|---|---|---|---|---|---|---|---|---|---|
| Year | Market Value | Taxable Mkt Value | Gross Assessed | Exemption | Net Assessed | Millage | Est. Tax | Tax Savings | |||||
|
2025 |
92,500 |
73,316 |
8,064 |
0 |
8,064 |
122.90 |
$991 |
$259 |
|||||
|
2024 |
80,500 |
69,825 |
7,680 |
0 |
7,680 |
123.89 |
$952 |
$145 |
|||||
|
2023 |
66,500 |
66,500 |
7,315 |
0 |
7,315 |
122.82 |
$898 |
$0 |
|||||
|
2022 |
51,000 |
43,575 |
4,793 |
0 |
4,793 |
117.63 |
$564 |
$96 |
|||||
|
2021 |
41,500 |
41,500 |
4,565 |
0 |
4,565 |
117.70 |
$537 |
$0 |
|||||
| Property Account Status/Adjustments/Exemptions | ||
|---|---|---|
| Account # | Exemption Description | Amount |
|
R031799025 |
5% Capped Account |
0 |
| Property Deed Transaction History (Recorded in the County Clerk's Office) | ||||||||||
|---|---|---|---|---|---|---|---|---|---|---|
| Date | Type | Book | Page | Price | Grantor | Grantee | ||||
|
8/19/2022 |
|
Mult Parcel |
$144,000 |
LIVE UNITED CONSTRUCTION & REAL ESTATE LLC |
LIVE UNITED RENTALS LLC |
|||||
|
9/17/2020 |
|
Deeds |
$40,000 |
KTR HEATING & COOLING LLC |
LIVE UNITED CONSTRUCTION & REAL ESTATE LLC |
|||||
|
9/4/2015 |
|
Hmstd Off & |
$0 |
RALLS LEON & CORNELIOUS TRS & TRUST |
RALLS FAMILY TRUST |
|||||
|
9/4/2015 |
|
Deeds |
$17,500 |
RALLS FAMILY TRUST |
KTR HEATING & COOLING LLC |
|||||
|
5/20/2006 |
|
Deeds |
$0 |
RALLS LEON C |
RALLS FAMILY TRUST |
|||||
| Last Mailed Notice of Value (N.O.V.) Information/History | ||||||||
|---|---|---|---|---|---|---|---|---|
| Year | Date | Market Value | Taxable Market Value | Gross Assessed | Exemption | Net Assessed | ||
|
2026 |
02/23/2026 |
93,000 |
76,981 |
8,467 |
0 |
8,467 |
||
|
2025 |
02/14/2025 |
92,500 |
73,316 |
8,064 |
0 |
8,064 |
||
|
2024 |
02/13/2024 |
80,500 |
69,825 |
7,680 |
0 |
7,680 |
||
|
2023 |
02/14/2023 |
66,500 |
66,500 |
7,315 |
0 |
7,315 |
||
|
2022 |
03/15/2022 |
51,000 |
43,575 |
4,793 |
0 |
4,793 |
||
| Property Building Permit History | |||||||||||
|---|---|---|---|---|---|---|---|---|---|---|---|
| Issued | Permit # | Provided by | Bldg # | Description | Est Construction Cost | Status | |||||
| No Building Permit records returned. | |||||||||||
| Click button on building number to access detailed information: | ||||||
|---|---|---|---|---|---|---|
| Bldg # | Vacant/Improved Land | Bldg Description | Year Built | SqFt | # Stories | |
|
1 |
Improved |
Ranch 1 Story |
1935 |
1,031 |
1 Stories |
|