|
|
|
| Larry Stein Oklahoma County Assessor (405) 713-1200 - Public Access System |
|
|
|
|
|
|
| Real Property Display - Screen Produced 3/5/2026 1:07:09 PM | ||||
|---|---|---|---|---|
| Account: R032350415 | Type: Residential | Location: |
1722 NE 20TH ST |
|
| Building Name/Occupant: |
|
OKLAHOMA CITY |
||
| Owner Name 1: | LEGACY INVESTMENT HOLDINGS LLC |
Parcel PIN#: |
2701-03-235-0415 |
|
| Owner Name 2: | 1/4 section #: |
2701 |
||
| Owner Name 3: | Parent Acct: |
|
||
| Billing Address: | 6011 N ROBINSON AVE | Tax District: |
|
|
| City, State, Zip | OKLAHOMA CITY, OK 73118-7425 | School System: |
Oklahoma City #89 |
|
|
Country: (If noted) |
Land Size: |
0.1607 Acres |
||
|
Land Value: 9,100 |
|
|||
|
Sect 26-T12N-R3W Qtr NE |
ROSS HTS SUB BLK 14
Block
001
Lot
000
|
|||
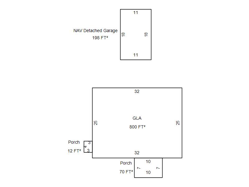
| Full Legal Description: ROSS HTS SUB BLK 14 001 000 LOTS 1 & 2 |
| Photo & Sketch (if available) | Comp Sales (ordered by relevancy) |
|
||||||||||||||||||
|
||||||||||||||||||||
| Value History (*The County Treasurer 405-713-1300 posts & collects actual tax amounts. Contact information HERE) | |||||||||||||
|---|---|---|---|---|---|---|---|---|---|---|---|---|---|
| Year | Market Value | Taxable Mkt Value | Gross Assessed | Exemption | Net Assessed | Millage | Est. Tax | Tax Savings | |||||
|
2025 |
76,500 |
47,462 |
5,220 |
0 |
5,220 |
122.90 |
$642 |
$393 |
|||||
|
2024 |
64,000 |
45,202 |
4,971 |
0 |
4,971 |
123.89 |
$616 |
$256 |
|||||
|
2023 |
61,500 |
43,050 |
4,735 |
0 |
4,735 |
122.82 |
$582 |
$249 |
|||||
|
2022 |
41,000 |
41,000 |
4,510 |
0 |
4,510 |
117.63 |
$531 |
$0 |
|||||
|
2021 |
52,500 |
15,474 |
1,702 |
0 |
1,702 |
117.70 |
$200 |
$479 |
|||||
| Property Account Status/Adjustments/Exemptions | ||||||
|---|---|---|---|---|---|---|
| Account # | Exemption Description | Amount | ||||
| No adjustment/exemption records returned. | ||||||
| Property Deed Transaction History (Recorded in the County Clerk's Office) | ||||||||||
|---|---|---|---|---|---|---|---|---|---|---|
| Date | Type | Book | Page | Price | Grantor | Grantee | ||||
|
2/13/2025 |
|
Deeds |
$71,000 |
SHERDA INC |
LEGACY INVESTMENT HOLDINGS LLC |
|||||
|
8/16/2021 |
|
Deeds |
$40,000 |
ROCKY MTN RESOURCES LLC |
SHERDA INC |
|||||
|
4/2/2019 |
|
Hmstd Off & |
$0 |
METRO OKC LLC |
ROCKY MTN RESOURCES LLC |
|||||
|
9/9/1997 |
|
Historical |
$0 |
SECRETARY OF HOUSING |
METRO OKC LLC |
|||||
|
5/16/1997 |
|
Historical |
$0 |
GADDIS DONALD R & DENISE |
SECRETARY OF HOUSING |
|||||
| Last Mailed Notice of Value (N.O.V.) Information/History | ||||||||
|---|---|---|---|---|---|---|---|---|
| Year | Date | Market Value | Taxable Market Value | Gross Assessed | Exemption | Net Assessed | ||
|
2026 |
02/23/2026 |
77,500 |
77,500 |
8,525 |
0 |
8,525 |
||
|
2025 |
02/14/2025 |
76,500 |
47,462 |
5,220 |
0 |
5,220 |
||
|
2025 |
03/28/2025 |
76,500 |
47,462 |
5,220 |
0 |
5,220 |
||
|
2024 |
02/13/2024 |
64,000 |
45,202 |
4,971 |
0 |
4,971 |
||
|
2023 |
02/14/2023 |
61,500 |
43,050 |
4,735 |
0 |
4,735 |
||
| Property Building Permit History | ||||||
|---|---|---|---|---|---|---|
| Issued | Permit # | Provided by | Bldg # | Description | Est Construction Cost | Status |
|
10/3/1991 |
10188968 |
OKLAHOMA CITY |
1 |
Demolish |
0 |
Inactive |
| Click button on building number to access detailed information: | ||||||
|---|---|---|---|---|---|---|
| Bldg # | Vacant/Improved Land | Bldg Description | Year Built | SqFt | # Stories | |
|
1 |
Improved |
Ranch 1 Story |
1938 |
800 |
1 Stories |
|