|
|
|
| Larry Stein Oklahoma County Assessor (405) 713-1200 - Public Access System |
|
|
|
|
|
|
| Real Property Display - Screen Produced 3/5/2026 7:33:40 AM | ||||
|---|---|---|---|---|
| Account: R032838092 | Type: Residential | Location: |
1726 NE 19TH ST |
|
| Building Name/Occupant: |
|
OKLAHOMA CITY |
||
| Owner Name 1: | BABT LLC |
Parcel PIN#: |
2701-03-283-8092 |
|
| Owner Name 2: | 1/4 section #: |
2701 |
||
| Owner Name 3: | Parent Acct: |
|
||
| Billing Address: | 1232 NE 48TH ST | Tax District: |
|
|
| City, State, Zip | OKLAHOMA CITY , OK 73111 | School System: |
Oklahoma City #89 |
|
|
Country: (If noted) |
Land Size: |
0.1731 Acres |
||
|
Land Value: 9,802 |
|
|||
|
Sect 26-T12N-R3W Qtr NE |
RIGGS SUB ADDITION
Block
002
Lot
000
|
|||
| Full Legal Description: RIGGS SUB ADDITION 002 000 LOTS 11 & 12 |
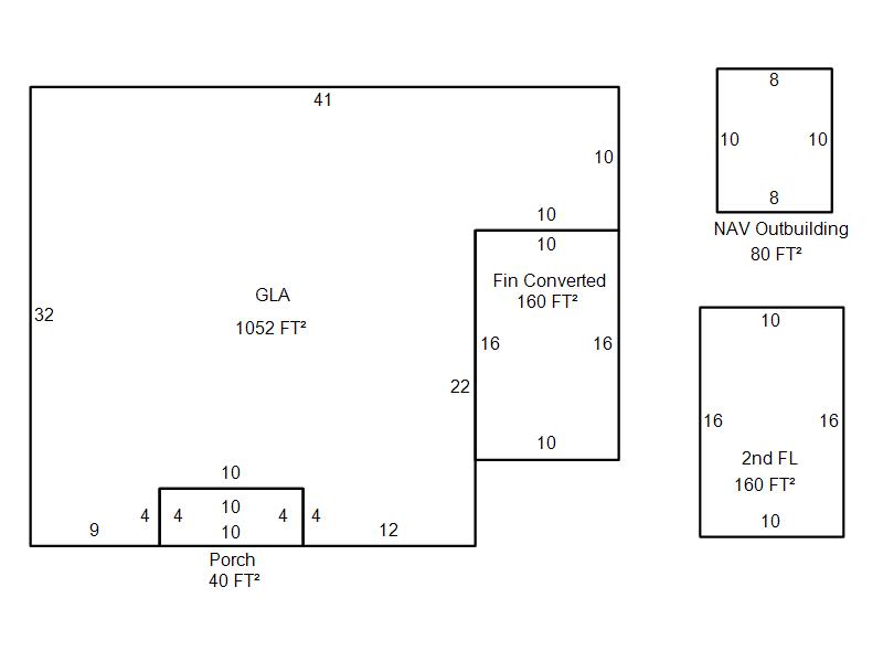
| Photo & Sketch (if available) | Comp Sales (ordered by relevancy) |
|
||||||||||||||||||
|
||||||||||||||||||||
| Value History (*The County Treasurer 405-713-1300 posts & collects actual tax amounts. Contact information HERE) | |||||||||||||
|---|---|---|---|---|---|---|---|---|---|---|---|---|---|
| Year | Market Value | Taxable Mkt Value | Gross Assessed | Exemption | Net Assessed | Millage | Est. Tax | Tax Savings | |||||
|
2025 |
101,500 |
48,241 |
5,305 |
0 |
5,305 |
122.90 |
$652 |
$720 |
|||||
|
2024 |
97,000 |
45,944 |
5,053 |
0 |
5,053 |
123.89 |
$626 |
$696 |
|||||
|
2023 |
77,000 |
43,757 |
4,813 |
0 |
4,813 |
122.82 |
$591 |
$449 |
|||||
|
2022 |
58,500 |
41,674 |
4,583 |
0 |
4,583 |
117.63 |
$539 |
$218 |
|||||
|
2021 |
48,000 |
39,690 |
4,365 |
0 |
4,365 |
117.70 |
$514 |
$108 |
|||||
| Property Account Status/Adjustments/Exemptions | ||
|---|---|---|
| Account # | Exemption Description | Amount |
|
R032838092 |
5% Capped Account |
0 |
| Property Deed Transaction History (Recorded in the County Clerk's Office) | ||||||||||
|---|---|---|---|---|---|---|---|---|---|---|
| Date | Type | Book | Page | Price | Grantor | Grantee | ||||
|
4/16/2019 |
|
Hmstd Off & |
$0 |
WILBURN KARL V |
BABT LLC |
|||||
|
9/14/2018 |
|
Deeds |
$24,000 |
LSF8 MASTER PARTICIPATION TRUST |
WILBURN KARL V |
|||||
|
8/8/2017 |
|
Hmstd Off & |
$0 |
HOOKS RONNY ETAL HOOKS PERCY |
LSF8 MASTER PARTICIPATION TRUST |
|||||
|
10/23/2012 |
|
Deeds |
$0 |
HOOKS RONNY HOOKS PERCY HOOKS GREGORY ETAL |
HOOKS RONNY HOOKS PERCY ETAL |
|||||
|
10/20/2010 |
|
Hmstd Off & |
$0 |
HOOKS MATTHEW O & E |
HOOKS GREGORY ETAL HOOKS RONNY |
|||||
| Last Mailed Notice of Value (N.O.V.) Information/History | ||||||||
|---|---|---|---|---|---|---|---|---|
| Year | Date | Market Value | Taxable Market Value | Gross Assessed | Exemption | Net Assessed | ||
|
2026 |
02/23/2026 |
102,500 |
50,653 |
5,571 |
0 |
5,571 |
||
|
2025 |
02/14/2025 |
101,500 |
48,241 |
5,305 |
0 |
5,305 |
||
|
2024 |
02/13/2024 |
97,000 |
45,944 |
5,053 |
0 |
5,053 |
||
|
2023 |
02/14/2023 |
77,000 |
43,757 |
4,813 |
0 |
4,813 |
||
|
2022 |
03/15/2022 |
58,500 |
41,674 |
4,583 |
0 |
4,583 |
||
| Property Building Permit History | |||||||||||
|---|---|---|---|---|---|---|---|---|---|---|---|
| Issued | Permit # | Provided by | Bldg # | Description | Est Construction Cost | Status | |||||
| No Building Permit records returned. | |||||||||||
| Click button on building number to access detailed information: | ||||||
|---|---|---|---|---|---|---|
| Bldg # | Vacant/Improved Land | Bldg Description | Year Built | SqFt | # Stories | |
|
1 |
Improved |
1½ Story Fin |
1940 |
1,212 |
1.5 Stories |
|