|
|
|
| Larry Stein Oklahoma County Assessor (405) 713-1200 - Public Access System |
|
|
|
|
|
|
| Real Property Display - Screen Produced 3/5/2026 1:48:46 PM | ||||
|---|---|---|---|---|
| Account: R026581450 | Type: Residential | Location: |
1520 NE 16TH TER |
|
| Building Name/Occupant: |
|
OKLAHOMA CITY |
||
| Owner Name 1: | EA4 PROPERTY OKC LLC |
Parcel PIN#: |
2702-02-658-1450 |
|
| Owner Name 2: | 1/4 section #: |
2702 |
||
| Owner Name 3: | Parent Acct: |
|
||
| Billing Address: | 2501 NE 23RD ST, Unit A 7 | Tax District: |
|
|
| City, State, Zip | OKLAHOMA CITY, OK 73111 | School System: |
Oklahoma City #89 |
|
|
Country: (If noted) |
Land Size: |
0.2152 Acres |
||
|
Land Value: 10,969 |
|
|||
|
Sect 26-T12N-R3W Qtr SE |
BATH HIGHLAND ADD
Block
005
Lot
000
|
|||
| Full Legal Description: BATH HIGHLAND ADD 005 000 LOTS 5 6 & 7 |
| Photo & Sketch (if available) | Comp Sales (ordered by relevancy) |
|
||||||||||||||||||
|
||||||||||||||||||||
| Value History (*The County Treasurer 405-713-1300 posts & collects actual tax amounts. Contact information HERE) | |||||||||||||
|---|---|---|---|---|---|---|---|---|---|---|---|---|---|
| Year | Market Value | Taxable Mkt Value | Gross Assessed | Exemption | Net Assessed | Millage | Est. Tax | Tax Savings | |||||
|
2025 |
109,500 |
33,316 |
3,664 |
0 |
3,664 |
122.90 |
$450 |
$1,030 |
|||||
|
2024 |
104,500 |
31,730 |
3,489 |
1,000 |
2,489 |
123.89 |
$309 |
$1,116 |
|||||
|
2023 |
83,500 |
30,806 |
3,387 |
1,000 |
2,387 |
122.82 |
$293 |
$835 |
|||||
|
2022 |
63,000 |
29,909 |
3,289 |
1,000 |
2,289 |
117.63 |
$269 |
$546 |
|||||
|
2021 |
51,500 |
29,038 |
3,194 |
1,000 |
2,194 |
117.70 |
$258 |
$409 |
|||||
| Property Account Status/Adjustments/Exemptions | ||
|---|---|---|
| Account # | Exemption Description | Amount |
|
R026581450 |
5% Capped Account |
0 |
| Property Deed Transaction History (Recorded in the County Clerk's Office) | ||||||||||
|---|---|---|---|---|---|---|---|---|---|---|
| Date | Type | Book | Page | Price | Grantor | Grantee | ||||
|
12/6/2024 |
|
Hmstd Off & |
$0 |
HARDIMON BARBARA L |
EA4 PROPERTY OKC LLC |
|||||
|
10/9/2024 |
|
Hmstd Off & |
$0 |
HARDIMON BARBARA L |
HARDIMON BARBARA L |
|||||
|
10/8/2024 |
|
Hmstd Off & |
$0 |
STEPHENS ANN ETAL |
HARDIMON BARBARA L |
|||||
|
6/27/2011 |
|
Deeds |
$0 |
STEPHENS ED L & ANN L |
STEPHENS ANN L |
|||||
|
6/27/2011 |
|
Deeds |
$0 |
STEPHENS ANN L |
STEPHENS ANN ETAL |
|||||
| Last Mailed Notice of Value (N.O.V.) Information/History | ||||||||
|---|---|---|---|---|---|---|---|---|
| Year | Date | Market Value | Taxable Market Value | Gross Assessed | Exemption | Net Assessed | ||
|
2026 |
02/23/2026 |
110,000 |
34,981 |
3,847 |
0 |
3,847 |
||
|
2025 |
02/14/2025 |
109,500 |
33,316 |
3,664 |
0 |
3,664 |
||
|
2024 |
02/13/2024 |
104,500 |
31,730 |
3,489 |
1,000 |
2,489 |
||
|
2023 |
02/14/2023 |
83,500 |
30,806 |
3,387 |
1,000 |
2,387 |
||
|
2022 |
03/15/2022 |
63,000 |
29,909 |
3,289 |
1,000 |
2,289 |
||
| Property Building Permit History | |||||||||||
|---|---|---|---|---|---|---|---|---|---|---|---|
| Issued | Permit # | Provided by | Bldg # | Description | Est Construction Cost | Status | |||||
| No Building Permit records returned. | |||||||||||
| Click button on building number to access detailed information: | ||||||
|---|---|---|---|---|---|---|
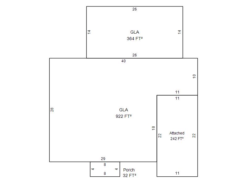
| Bldg # | Vacant/Improved Land | Bldg Description | Year Built | SqFt | # Stories | |
|
1 |
Improved |
Ranch 1 Story |
1950 |
1,286 |
1 Stories |
|