|
|
|
| Larry Stein Oklahoma County Assessor (405) 713-1200 - Public Access System |
|
|
|
|
|
|
| Real Property Display - Screen Produced 3/17/2026 7:00:07 AM | ||||
|---|---|---|---|---|
| Account: R044045060 | Type: Residential | Location: |
226 NW 22ND ST |
|
| Building Name/Occupant: |
|
OKLAHOMA CITY |
||
| Owner Name 1: | RUTLEDGE REBECCA L |
Parcel PIN#: |
2709-04-404-5060 |
|
| Owner Name 2: | 1/4 section #: |
2709 |
||
| Owner Name 3: | Parent Acct: |
|
||
| Billing Address: | 226 NW 22ND ST | Tax District: |
|
|
| City, State, Zip | OKLAHOMA CITY, OK 73103 | School System: |
Oklahoma City #89 |
|
|
Country: (If noted) |
Land Size: |
0.2066 Acres |
||
|
Land Value: 93,600 |
|
|||
|
Sect 28-T12N-R3W Qtr NE |
WINANS SECOND ADD
Block
004
Lot
007
|
|||
| Full Legal Description: WINANS SECOND ADD 004 007 |
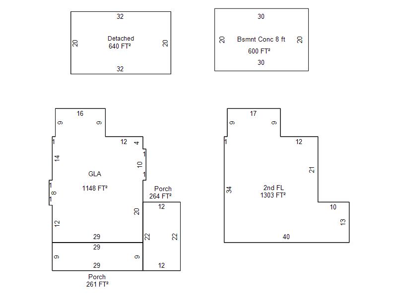
| Photo & Sketch (if available) | Comp Sales (ordered by relevancy) |
|
||||||||||||||||||
|
||||||||||||||||||||
| Value History (*The County Treasurer 405-713-1300 posts & collects actual tax amounts. Contact information HERE) | |||||||||||||
|---|---|---|---|---|---|---|---|---|---|---|---|---|---|
| Year | Market Value | Taxable Mkt Value | Gross Assessed | Exemption | Net Assessed | Millage | Est. Tax | Tax Savings | |||||
|
2025 |
639,000 |
470,290 |
51,731 |
0 |
51,731 |
122.90 |
$6,358 |
$2,281 |
|||||
|
2024 |
631,000 |
447,896 |
49,268 |
0 |
49,268 |
123.89 |
$6,104 |
$2,495 |
|||||
|
2023 |
593,000 |
426,568 |
46,922 |
0 |
46,922 |
122.82 |
$5,763 |
$2,249 |
|||||
|
2022 |
513,000 |
406,256 |
44,688 |
0 |
44,688 |
117.63 |
$5,257 |
$1,381 |
|||||
|
2021 |
471,000 |
386,911 |
42,559 |
0 |
42,559 |
117.70 |
$5,009 |
$1,089 |
|||||
| Property Account Status/Adjustments/Exemptions | ||
|---|---|---|
| Account # | Exemption Description | Amount |
|
R044045060 |
5% Capped Account |
0 |
| Property Deed Transaction History (Recorded in the County Clerk's Office) | ||||||||||
|---|---|---|---|---|---|---|---|---|---|---|
| Date | Type | Book | Page | Price | Grantor | Grantee | ||||
|
1/2/2013 |
|
Deeds |
$129,500 |
ZIMMER J ADRIAN |
RUTLEDGE REBECCA L |
|||||
|
12/27/2012 |
|
Deeds |
$130,000 |
ZIMMER KAREN L & J ADRIAN |
RUTLEDGE REBECCA L |
|||||
|
7/11/2002 |
|
Deeds |
$172,000 |
MATON ANTHEA |
ZIMMER KAREN L & J ADRIAN |
|||||
|
10/25/1999 |
|
Deeds |
$117,500 |
SIMONTON BROOK A & ANGELA M |
MATON ANTHEA |
|||||
|
6/20/1995 |
|
Historical |
$79,000 |
MILLS WILLARD B |
SIMONTON BROOK A & ANGELA M |
|||||
| Last Mailed Notice of Value (N.O.V.) Information/History | ||||||||
|---|---|---|---|---|---|---|---|---|
| Year | Date | Market Value | Taxable Market Value | Gross Assessed | Exemption | Net Assessed | ||
|
2026 |
02/23/2026 |
641,500 |
493,804 |
54,317 |
0 |
54,317 |
||
|
2025 |
02/14/2025 |
639,000 |
470,290 |
51,731 |
0 |
51,731 |
||
|
2024 |
02/13/2024 |
631,000 |
447,896 |
49,268 |
0 |
49,268 |
||
|
2023 |
02/14/2023 |
593,000 |
426,568 |
46,922 |
0 |
46,922 |
||
|
2022 |
03/15/2022 |
513,000 |
406,256 |
44,688 |
0 |
44,688 |
||
| Property Building Permit History | |||||||||||
|---|---|---|---|---|---|---|---|---|---|---|---|
| Issued | Permit # | Provided by | Bldg # | Description | Est Construction Cost | Status | |||||
| No Building Permit records returned. | |||||||||||
| Click button on building number to access detailed information: | ||||||
|---|---|---|---|---|---|---|
| Bldg # | Vacant/Improved Land | Bldg Description | Year Built | SqFt | # Stories | |
|
1 |
Improved |
2 Story |
1909 |
2,451 |
2 Stories |
|