|
|
|
| Larry Stein Oklahoma County Assessor (405) 713-1200 - Public Access System |
|
|
|
|
|
|
| Real Property Display - Screen Produced 3/17/2026 1:35:32 AM | ||||
|---|---|---|---|---|
| Account: R045001197 | Type: Residential | Location: |
1515 NW 22ND ST |
|
| Building Name/Occupant: |
|
OKLAHOMA CITY |
||
| Owner Name 1: | BALE INVESTMENTS LLC |
Parcel PIN#: |
2713-04-500-1197 |
|
| Owner Name 2: | 1/4 section #: |
2713 |
||
| Owner Name 3: | Parent Acct: |
|
||
| Billing Address: | 407 W COVELL RD, Unit 30362 | Tax District: |
|
|
| City, State, Zip | EDMOND, OK 73003 | School System: |
Oklahoma City #89 |
|
|
Country: (If noted) |
Land Size: |
0.1607 Acres |
||
|
Land Value: 38,850 |
|
|||
|
Sect 29-T12N-R3W Qtr NE |
UNIVERSITY ADDITION
Block
011
Lot
000
|
|||
| Full Legal Description: UNIVERSITY ADDITION 011 000 LOTS 19 & 20 |
| Photo & Sketch (if available) | Comp Sales (ordered by relevancy) |
|
||||||||||||||||||
|
||||||||||||||||||||
| Value History (*The County Treasurer 405-713-1300 posts & collects actual tax amounts. Contact information HERE) | |||||||||||||
|---|---|---|---|---|---|---|---|---|---|---|---|---|---|
| Year | Market Value | Taxable Mkt Value | Gross Assessed | Exemption | Net Assessed | Millage | Est. Tax | Tax Savings | |||||
|
2025 |
214,500 |
214,500 |
23,595 |
0 |
23,595 |
122.90 |
$2,900 |
$0 |
|||||
|
2024 |
207,500 |
207,500 |
22,825 |
0 |
22,825 |
123.89 |
$2,828 |
$0 |
|||||
|
2023 |
201,000 |
201,000 |
22,110 |
0 |
22,110 |
122.82 |
$2,716 |
$0 |
|||||
|
2022 |
183,000 |
183,000 |
20,130 |
0 |
20,130 |
117.63 |
$2,368 |
$0 |
|||||
|
2021 |
125,500 |
98,076 |
10,787 |
0 |
10,787 |
117.70 |
$1,270 |
$355 |
|||||
| Property Account Status/Adjustments/Exemptions | ||
|---|---|---|
| Account # | Exemption Description | Amount |
|
R045001197 |
5% Capped Account |
0 |
| Property Deed Transaction History (Recorded in the County Clerk's Office) | ||||||||||
|---|---|---|---|---|---|---|---|---|---|---|
| Date | Type | Book | Page | Price | Grantor | Grantee | ||||
|
3/15/2022 |
|
Deeds |
$190,000 |
SOUP TO NUTS LLC |
BALE INVESTMENTS LLC |
|||||
|
3/14/2022 |
|
Deeds |
$180,000 |
NOMADIC FLIPS LLC |
SOUP TO NUTS LLC |
|||||
|
6/23/2021 |
|
Deeds |
$150,000 |
ARCHES REALTY LLC |
FIXEDPROPERTIES LLC |
|||||
|
6/23/2021 |
|
Deeds |
$170,000 |
FIXEDPROPERTIES LLC |
SOUP TO NUTS LLC |
|||||
|
6/23/2021 |
|
Deeds |
$185,000 |
SOUP TO NUTS LLC |
NOMADIC FLIPS LLC |
|||||
| Last Mailed Notice of Value (N.O.V.) Information/History | ||||||||
|---|---|---|---|---|---|---|---|---|
| Year | Date | Market Value | Taxable Market Value | Gross Assessed | Exemption | Net Assessed | ||
|
2026 |
02/23/2026 |
222,500 |
222,500 |
24,475 |
0 |
24,475 |
||
|
2025 |
02/14/2025 |
214,500 |
214,500 |
23,595 |
0 |
23,595 |
||
|
2024 |
02/13/2024 |
207,500 |
207,500 |
22,825 |
0 |
22,825 |
||
|
2023 |
02/14/2023 |
201,000 |
201,000 |
22,110 |
0 |
22,110 |
||
|
2022 |
03/15/2022 |
183,000 |
183,000 |
20,130 |
0 |
20,130 |
||
| Property Building Permit History | |||||||||||
|---|---|---|---|---|---|---|---|---|---|---|---|
| Issued | Permit # | Provided by | Bldg # | Description | Est Construction Cost | Status | |||||
| No Building Permit records returned. | |||||||||||
| Click button on building number to access detailed information: | ||||||
|---|---|---|---|---|---|---|
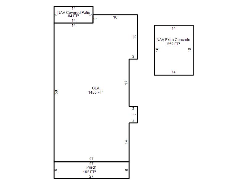
| Bldg # | Vacant/Improved Land | Bldg Description | Year Built | SqFt | # Stories | |
|
1 |
Improved |
Ranch 1 Story |
1915 |
1,455 |
1 Stories |
|