|
|
|
| Larry Stein Oklahoma County Assessor (405) 713-1200 - Public Access System |
|
|
|
|
|
|
| Real Property Display - Screen Produced 2/27/2026 9:35:35 PM | ||||
|---|---|---|---|---|
| Account: R148791250 | Type: Residential | Location: |
6453 N PENIEL AVE |
|
| Building Name/Occupant: |
|
OKLAHOMA CITY |
||
| Owner Name 1: | AMASS FAMILY REV LIV TRUST |
Parcel PIN#: |
2814-14-879-1250 |
|
| Owner Name 2: | 1/4 section #: |
2814 |
||
| Owner Name 3: | Parent Acct: |
|
||
| Billing Address: | 6451 N PENIEL AVE | Tax District: |
|
|
| City, State, Zip | OKLAHOMA CITY, OK 73132-7211 | School System: |
Putnam City #1 |
|
|
Country: (If noted) |
Land Size: |
0.1653 Acres |
||
|
Land Value: 29,520 |
|
|||
|
Sect 4-T12N-R4W Qtr SE |
GALAXIE DEVE 4 SEASONS SEC 1
Block
001
Lot
000
|
|||
| Full Legal Description: GALAXIE DEVE 4 SEASONS SEC 1 001 000 N10FT OF LOT 25 & ALL OF LOT 26 |
| Photo & Sketch (if available) | Comp Sales (ordered by relevancy) |
|
||||||||||||||||||
|
||||||||||||||||||||
| Value History (*The County Treasurer 405-713-1300 posts & collects actual tax amounts. Contact information HERE) | |||||||||||||
|---|---|---|---|---|---|---|---|---|---|---|---|---|---|
| Year | Market Value | Taxable Mkt Value | Gross Assessed | Exemption | Net Assessed | Millage | Est. Tax | Tax Savings | |||||
|
2025 |
248,500 |
214,536 |
23,598 |
0 |
23,598 |
123.17 |
$2,907 |
$460 |
|||||
|
2024 |
249,000 |
204,320 |
22,475 |
0 |
22,475 |
122.30 |
$2,749 |
$601 |
|||||
|
2023 |
225,000 |
194,591 |
21,404 |
0 |
21,404 |
121.91 |
$2,609 |
$408 |
|||||
|
2022 |
189,000 |
185,325 |
20,385 |
0 |
20,385 |
123.41 |
$2,516 |
$50 |
|||||
|
2021 |
176,500 |
176,500 |
19,415 |
0 |
19,415 |
122.23 |
$2,373 |
$0 |
|||||
| Property Account Status/Adjustments/Exemptions | ||
|---|---|---|
| Account # | Exemption Description | Amount |
|
R148791250 |
5% Capped Account |
0 |
| Property Deed Transaction History (Recorded in the County Clerk's Office) | ||||||||||
|---|---|---|---|---|---|---|---|---|---|---|
| Date | Type | Book | Page | Price | Grantor | Grantee | ||||
|
2/4/2025 |
|
Hmstd Off & |
$0 |
MASSONI ANDREW & MEGAN |
AMASS FAMILY REV LIV TRUST |
|||||
|
12/23/2020 |
|
Deeds |
$168,000 |
GIRDNER DAVID S |
MASSONI ANDREW & MEGAN |
|||||
|
3/14/1994 |
|
Historical |
$41,000 |
CROWE W A |
GIRDNER DAVID S |
|||||
|
5/18/1990 |
|
Historical |
$0 |
FEDERAL DEPOSIT |
CROWE W A |
|||||
|
3/21/1990 |
|
Historical |
$0 |
PABCO PROPERTIES INC |
FEDERAL DEPOSIT |
|||||
| Last Mailed Notice of Value (N.O.V.) Information/History | ||||||||
|---|---|---|---|---|---|---|---|---|
| Year | Date | Market Value | Taxable Market Value | Gross Assessed | Exemption | Net Assessed | ||
|
2026 |
02/23/2026 |
268,000 |
225,262 |
24,777 |
0 |
24,777 |
||
|
2025 |
02/14/2025 |
248,500 |
214,536 |
23,598 |
0 |
23,598 |
||
|
2025 |
03/28/2025 |
248,500 |
214,536 |
23,598 |
0 |
23,598 |
||
|
2024 |
02/13/2024 |
249,000 |
204,320 |
22,475 |
0 |
22,475 |
||
|
2023 |
02/14/2023 |
225,000 |
194,591 |
21,404 |
0 |
21,404 |
||
| Property Building Permit History | |||||||||||
|---|---|---|---|---|---|---|---|---|---|---|---|
| Issued | Permit # | Provided by | Bldg # | Description | Est Construction Cost | Status | |||||
| No Building Permit records returned. | |||||||||||
| Click button on building number to access detailed information: | ||||||
|---|---|---|---|---|---|---|
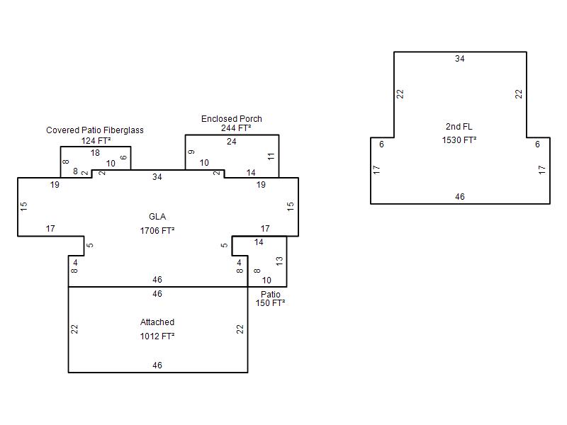
| Bldg # | Vacant/Improved Land | Bldg Description | Year Built | SqFt | # Stories | |
|
1 |
Improved |
Duplex Two Story |
1973 |
3,236 |
2 Stories |
|