|
|
|
| Larry Stein Oklahoma County Assessor (405) 713-1200 - Public Access System |
|
|
|
|
|
|
| Real Property Display - Screen Produced 4/4/2026 11:13:56 PM | ||||
|---|---|---|---|---|
| Account: R188503295 | Type: Residential | Location: |
6021 NW 60TH ST |
|
| Building Name/Occupant: |
|
WARR ACRES |
||
| Owner Name 1: | ALCHEMY INVESTMENTS LLC |
Parcel PIN#: |
2833-18-850-3295 |
|
| Owner Name 2: | 1/4 section #: |
2833 |
||
| Owner Name 3: | Parent Acct: |
|
||
| Billing Address: | 3457 LUPINE BUSH CT | Tax District: |
|
|
| City, State, Zip | LAS VEGAS , NV 89135 | School System: |
Putnam City #1 |
|
|
Country: (If noted) |
UNITED STATES |
Land Size: |
0.2134 Acres |
|
|
Land Value: 30,209 |
|
|||
|
Sect 9-T12N-R4W Qtr NE |
WARR ACRES ADDITION
Block
029
Lot
001
|
|||
| Full Legal Description: WARR ACRES ADDITION 029 001 |
| Photo & Sketch (if available) | Comp Sales (ordered by relevancy) |
|
||||||||||||||||||
|
||||||||||||||||||||
| Value History (*The County Treasurer 405-713-1300 posts & collects actual tax amounts. Contact information HERE) | |||||||||||||
|---|---|---|---|---|---|---|---|---|---|---|---|---|---|
| Year | Market Value | Taxable Mkt Value | Gross Assessed | Exemption | Net Assessed | Millage | Est. Tax | Tax Savings | |||||
|
2026 |
131,000 |
117,903 |
12,968 |
0 |
12,968 |
115.77 |
$1,501 |
$167 |
|||||
|
2025 |
130,500 |
112,289 |
12,351 |
0 |
12,351 |
115.77 |
$1,430 |
$232 |
|||||
|
2024 |
129,500 |
106,942 |
11,763 |
0 |
11,763 |
114.25 |
$1,344 |
$283 |
|||||
|
2023 |
107,000 |
101,850 |
11,203 |
0 |
11,203 |
117.84 |
$1,320 |
$67 |
|||||
|
2022 |
97,000 |
97,000 |
10,670 |
0 |
10,670 |
120.40 |
$1,285 |
$0 |
|||||
| Property Account Status/Adjustments/Exemptions | ||
|---|---|---|
| Account # | Exemption Description | Amount |
|
R188503295 |
5% Capped Account |
0 |
| Property Deed Transaction History (Recorded in the County Clerk's Office) | ||||||||||
|---|---|---|---|---|---|---|---|---|---|---|
| Date | Type | Book | Page | Price | Grantor | Grantee | ||||
|
8/26/2021 |
|
Deeds |
$67,000 |
CROUCH NOAH PERS REP |
LEGACY INVESTMENT HOLDINGS LLC |
|||||
|
8/25/2021 |
|
Deeds |
$93,000 |
LEGACY INVESTMENT HOLDINGS LLC |
ALCHEMY INVESTMENTS LLC |
|||||
|
3/20/2019 |
|
Hmstd Off & |
$0 |
SMITH RONALD C TRS |
SMITH FRANK SUCC TRS |
|||||
|
3/20/2019 |
|
Hmstd Off & |
$0 |
SMITH FRANK SUCC TRS |
CROUCH SARAH |
|||||
|
11/3/2016 |
|
Hmstd Off & |
$0 |
SMITH RONALD C |
SMITH RONALD C TRS |
|||||
| Last Mailed Notice of Value (N.O.V.) Information/History | ||||||||
|---|---|---|---|---|---|---|---|---|
| Year | Date | Market Value | Taxable Market Value | Gross Assessed | Exemption | Net Assessed | ||
|
2026 |
02/23/2026 |
131,000 |
117,903 |
12,968 |
0 |
12,968 |
||
|
2025 |
02/14/2025 |
130,500 |
112,289 |
12,351 |
0 |
12,351 |
||
|
2024 |
02/13/2024 |
129,500 |
106,942 |
11,763 |
0 |
11,763 |
||
|
2023 |
02/14/2023 |
107,000 |
101,850 |
11,203 |
0 |
11,203 |
||
|
2022 |
03/15/2022 |
97,000 |
97,000 |
10,670 |
0 |
10,670 |
||
| Property Building Permit History | |||||||||||
|---|---|---|---|---|---|---|---|---|---|---|---|
| Issued | Permit # | Provided by | Bldg # | Description | Est Construction Cost | Status | |||||
| No Building Permit records returned. | |||||||||||
| Click button on building number to access detailed information: | ||||||
|---|---|---|---|---|---|---|
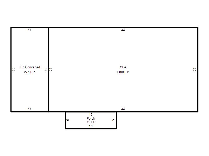
| Bldg # | Vacant/Improved Land | Bldg Description | Year Built | SqFt | # Stories | |
|
1 |
Improved |
Ranch 1 Story |
1955 |
1,100 |
1 Stories |
|