|
|
|
| Larry Stein Oklahoma County Assessor (405) 713-1200 - Public Access System |
|
|
|
|
|
|
| Real Property Display - Screen Produced 2/27/2026 7:32:30 PM | ||||
|---|---|---|---|---|
| Account: R172922000 | Type: Residential | Location: |
6817 NW 53RD ST |
|
| Building Name/Occupant: |
|
BETHANY |
||
| Owner Name 1: | ROCKWELL DUPLEXES LLC |
Parcel PIN#: |
2835-17-292-2000 |
|
| Owner Name 2: | 1/4 section #: |
2835 |
||
| Owner Name 3: | Parent Acct: |
|
||
| Billing Address: | PO BOX 581 | Tax District: |
|
|
| City, State, Zip | BETHANY, OK 73008-0581 | School System: |
Putnam City #1 |
|
|
Country: (If noted) |
Land Size: |
0.1417 Acres |
||
|
Land Value: 18,522 |
|
|||
|
Sect 9-T12N-R4W Qtr SW |
INGRAM HATLEY FAIRVIEW 2ND
Block
005
Lot
009
|
|||
| Full Legal Description: INGRAM HATLEY FAIRVIEW 2ND 005 009 |
| Photo & Sketch (if available) | Comp Sales (ordered by relevancy) |
|
||||||||||||||||||
|
||||||||||||||||||||
| Value History (*The County Treasurer 405-713-1300 posts & collects actual tax amounts. Contact information HERE) | |||||||||||||
|---|---|---|---|---|---|---|---|---|---|---|---|---|---|
| Year | Market Value | Taxable Mkt Value | Gross Assessed | Exemption | Net Assessed | Millage | Est. Tax | Tax Savings | |||||
|
2025 |
101,500 |
77,724 |
8,549 |
0 |
8,549 |
122.14 |
$1,044 |
$319 |
|||||
|
2024 |
96,000 |
74,023 |
8,141 |
0 |
8,141 |
120.52 |
$981 |
$291 |
|||||
|
2023 |
89,000 |
70,499 |
7,754 |
0 |
7,754 |
123.06 |
$954 |
$250 |
|||||
|
2022 |
76,500 |
67,142 |
7,384 |
0 |
7,384 |
112.54 |
$831 |
$116 |
|||||
|
2021 |
64,000 |
63,945 |
7,033 |
0 |
7,033 |
112.07 |
$788 |
$1 |
|||||
| Property Account Status/Adjustments/Exemptions | ||
|---|---|---|
| Account # | Exemption Description | Amount |
|
R172922000 |
5% Capped Account |
0 |
| Property Deed Transaction History (Recorded in the County Clerk's Office) | ||||||||||
|---|---|---|---|---|---|---|---|---|---|---|
| Date | Type | Book | Page | Price | Grantor | Grantee | ||||
|
10/9/2012 |
|
Deeds |
$49,000 |
WILDER PATRICIA TRS WILDER PATRICIA LIV TRUST |
OAKLEY ALLEN |
|||||
|
10/9/2012 |
|
Other |
$0 |
OAKLEY ALLEN |
ROCKWELL DUPLEXES LLC |
|||||
|
10/21/2002 |
|
Deeds |
$0 |
WILDER PATRICIA GODMAN |
WILDER PATRICIA TRS WILDER PATRICIA LIV TRUST |
|||||
|
11/13/1992 |
|
Historical |
$13,659 |
SECRETARY OF HOUSING |
WILDER PATRICIA GODMAN |
|||||
|
8/3/1992 |
|
Historical |
$0 |
BALTHROP CHERYL R |
SECRETARY OF HOUSING |
|||||
| Last Mailed Notice of Value (N.O.V.) Information/History | ||||||||
|---|---|---|---|---|---|---|---|---|
| Year | Date | Market Value | Taxable Market Value | Gross Assessed | Exemption | Net Assessed | ||
|
2026 |
02/23/2026 |
99,000 |
81,610 |
8,976 |
0 |
8,976 |
||
|
2025 |
02/14/2025 |
101,500 |
77,724 |
8,549 |
0 |
8,549 |
||
|
2024 |
02/13/2024 |
96,000 |
74,023 |
8,141 |
0 |
8,141 |
||
|
2023 |
02/14/2023 |
89,000 |
70,499 |
7,754 |
0 |
7,754 |
||
|
2022 |
03/15/2022 |
76,500 |
67,142 |
7,384 |
0 |
7,384 |
||
| Property Building Permit History | |||||||||||
|---|---|---|---|---|---|---|---|---|---|---|---|
| Issued | Permit # | Provided by | Bldg # | Description | Est Construction Cost | Status | |||||
| No Building Permit records returned. | |||||||||||
| Click button on building number to access detailed information: | ||||||
|---|---|---|---|---|---|---|
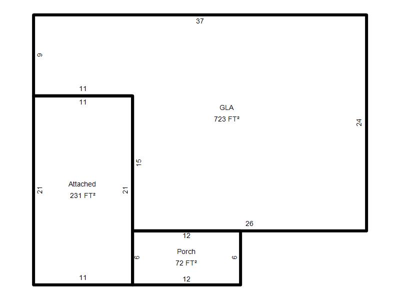
| Bldg # | Vacant/Improved Land | Bldg Description | Year Built | SqFt | # Stories | |
|
1 |
Improved |
Ranch 1 Story |
1951 |
723 |
1 Stories |
|