|
|
|
| Larry Stein Oklahoma County Assessor (405) 713-1200 - Public Access System |
|
|
|
|
|
|
| Real Property Display - Screen Produced 2/27/2026 7:31:26 PM | ||||
|---|---|---|---|---|
| Account: R172920300 | Type: Residential | Location: |
6810 NW 53RD ST |
|
| Building Name/Occupant: |
|
BETHANY |
||
| Owner Name 1: | HALL DUSTIN |
Parcel PIN#: |
2835-17-292-0300 |
|
| Owner Name 2: | 1/4 section #: |
2835 |
||
| Owner Name 3: | Parent Acct: |
|
||
| Billing Address: | 6810 NW 53RD ST | Tax District: |
|
|
| City, State, Zip | BETHANY, OK 73008-2006 | School System: |
Putnam City #1 |
|
|
Country: (If noted) |
Land Size: |
0.1446 Acres |
||
|
Land Value: 18,900 |
|
|||
|
Sect 9-T12N-R4W Qtr SW |
INGRAM HATLEY FAIRVIEW 2ND
Block
004
Lot
003
|
|||
| Full Legal Description: INGRAM HATLEY FAIRVIEW 2ND 004 003 |
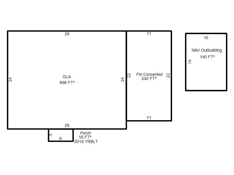
| Photo & Sketch (if available) | Comp Sales (ordered by relevancy) |
|
||||||||||||||||||
|
||||||||||||||||||||
| Value History (*The County Treasurer 405-713-1300 posts & collects actual tax amounts. Contact information HERE) | |||||||||||||
|---|---|---|---|---|---|---|---|---|---|---|---|---|---|
| Year | Market Value | Taxable Mkt Value | Gross Assessed | Exemption | Net Assessed | Millage | Est. Tax | Tax Savings | |||||
|
2025 |
101,000 |
100,275 |
11,030 |
0 |
11,030 |
122.14 |
$1,347 |
$10 |
|||||
|
2024 |
95,500 |
95,500 |
10,505 |
0 |
10,505 |
120.52 |
$1,266 |
$0 |
|||||
|
2023 |
89,500 |
72,320 |
7,954 |
0 |
7,954 |
123.06 |
$979 |
$233 |
|||||
|
2022 |
78,500 |
68,877 |
7,575 |
0 |
7,575 |
112.54 |
$853 |
$119 |
|||||
|
2021 |
66,500 |
65,598 |
7,215 |
0 |
7,215 |
112.07 |
$809 |
$11 |
|||||
| Property Account Status/Adjustments/Exemptions | ||
|---|---|---|
| Account # | Exemption Description | Amount |
|
R172920300 |
5% Capped Account |
0 |
| Property Deed Transaction History (Recorded in the County Clerk's Office) | ||||||||||
|---|---|---|---|---|---|---|---|---|---|---|
| Date | Type | Book | Page | Price | Grantor | Grantee | ||||
|
10/31/2023 |
|
Deeds |
$119,000 |
BROWNEN FAMILY IRREV TRUST |
HALL DUSTIN |
|||||
|
5/3/2017 |
|
Other |
$0 |
BROWNEN CLIFFORD B & JANICE V |
BROWNEN FAMILY IRREV TRUST |
|||||
|
1/9/2007 |
|
Deeds |
$50,000 |
KING MICHAEL S & SARAH E |
BROWNEN CLIFFORD B & JANICE V |
|||||
|
3/31/2004 |
|
Deeds |
$44,000 |
TATYREK ERNEST E & MILDRED TRS E E & M I TATYREK LOVING TRUS |
KING MICHAEL S & SARAH E |
|||||
|
4/11/1991 |
|
Historical |
$0 |
TATYREK E E & M I |
TATYREK ERNEST E & MILDRED TRS |
|||||
| Last Mailed Notice of Value (N.O.V.) Information/History | ||||||||
|---|---|---|---|---|---|---|---|---|
| Year | Date | Market Value | Taxable Market Value | Gross Assessed | Exemption | Net Assessed | ||
|
2025 |
02/14/2025 |
101,000 |
100,275 |
11,030 |
0 |
11,030 |
||
|
2024 |
02/13/2024 |
95,500 |
95,500 |
10,505 |
0 |
10,505 |
||
|
2023 |
02/14/2023 |
89,500 |
72,320 |
7,954 |
0 |
7,954 |
||
|
2022 |
03/15/2022 |
78,500 |
68,877 |
7,575 |
0 |
7,575 |
||
|
2021 |
03/19/2021 |
66,500 |
65,598 |
7,215 |
0 |
7,215 |
||
| Property Building Permit History | |||||||||||
|---|---|---|---|---|---|---|---|---|---|---|---|
| Issued | Permit # | Provided by | Bldg # | Description | Est Construction Cost | Status | |||||
| No Building Permit records returned. | |||||||||||
| Click button on building number to access detailed information: | ||||||
|---|---|---|---|---|---|---|
| Bldg # | Vacant/Improved Land | Bldg Description | Year Built | SqFt | # Stories | |
|
1 |
Improved |
Ranch 1 Story |
1950 |
696 |
1 Stories |
|