|
|
|
| Larry Stein Oklahoma County Assessor (405) 713-1200 - Public Access System |
|
|
|
|
|
|
| Real Property Display - Screen Produced 2/27/2026 9:41:03 PM | ||||
|---|---|---|---|---|
| Account: R181701050 | Type: Residential | Location: |
6316 N COLLEGE ST |
|
| Building Name/Occupant: |
|
WARR ACRES |
||
| Owner Name 1: | NEWMAN VELDA |
Parcel PIN#: |
2836-18-170-1050 |
|
| Owner Name 2: | 1/4 section #: |
2836 |
||
| Owner Name 3: | Parent Acct: |
|
||
| Billing Address: | 8105 NW 82ND ST | Tax District: |
|
|
| City, State, Zip | OKLAHOMA CITY, OK 73132 | School System: |
Putnam City #1 |
|
|
Country: (If noted) |
Land Size: |
0.2290 Acres |
||
|
Land Value: 47,880 |
|
|||
|
Sect 9-T12N-R4W Qtr NW |
W RAY NEWMANS WILLOWRIDGE
Block
002
Lot
001
|
|||
| Full Legal Description: W RAY NEWMANS WILLOWRIDGE 002 001 |
| Photo & Sketch (if available) | Comp Sales (ordered by relevancy) |
|
||||||||||||||||||
|
||||||||||||||||||||
| Value History (*The County Treasurer 405-713-1300 posts & collects actual tax amounts. Contact information HERE) | |||||||||||||
|---|---|---|---|---|---|---|---|---|---|---|---|---|---|
| Year | Market Value | Taxable Mkt Value | Gross Assessed | Exemption | Net Assessed | Millage | Est. Tax | Tax Savings | |||||
|
2025 |
221,500 |
81,350 |
8,948 |
1,000 |
7,948 |
115.77 |
$920 |
$1,901 |
|||||
|
2024 |
225,000 |
81,350 |
8,948 |
1,000 |
7,948 |
114.25 |
$908 |
$1,920 |
|||||
|
2023 |
216,500 |
81,350 |
8,948 |
1,000 |
7,948 |
117.84 |
$937 |
$1,870 |
|||||
|
2022 |
188,000 |
81,350 |
8,948 |
1,000 |
7,948 |
120.40 |
$957 |
$1,533 |
|||||
|
2021 |
154,000 |
81,350 |
8,948 |
1,000 |
7,948 |
119.77 |
$952 |
$1,077 |
|||||
| Property Account Status/Adjustments/Exemptions | ||
|---|---|---|
| Account # | Exemption Description | Amount |
|
R181701050 |
3% Cap Homestead |
0 |
|
R181701050 |
Freeze Senior Valuation |
0 |
|
R181701050 |
Homestead |
1,000 |
| Property Deed Transaction History (Recorded in the County Clerk's Office) | |||||||
|---|---|---|---|---|---|---|---|
| Date | Type | Book | Page | Price | Grantor | Grantee | |
|
7/18/2023 |
|
Deeds |
$0 |
NEWMAN ROBERT C & VELDA |
NEWMAN VELDA |
||
|
8/19/2008 |
|
Deeds |
$0 |
NEWMAN ROBERT C & VELDA |
NEWMAN VELDA |
||
|
8/1/1976 |
|
Historical |
$0 |
|
NEWMAN ROBERT C & VELDA |
||
| Last Mailed Notice of Value (N.O.V.) Information/History | ||||||||
|---|---|---|---|---|---|---|---|---|
| Year | Date | Market Value | Taxable Market Value | Gross Assessed | Exemption | Net Assessed | ||
|
2024 |
02/13/2024 |
225,000 |
81,350 |
8,948 |
1,000 |
7,948 |
||
|
2023 |
02/14/2023 |
216,500 |
81,350 |
8,948 |
1,000 |
7,948 |
||
|
2022 |
03/15/2022 |
188,000 |
81,350 |
8,948 |
1,000 |
7,948 |
||
|
2021 |
03/19/2021 |
154,000 |
81,350 |
8,948 |
1,000 |
7,948 |
||
|
2020 |
03/10/2020 |
143,500 |
81,350 |
8,948 |
1,000 |
7,948 |
||
| Property Building Permit History | |||||||||||
|---|---|---|---|---|---|---|---|---|---|---|---|
| Issued | Permit # | Provided by | Bldg # | Description | Est Construction Cost | Status | |||||
| No Building Permit records returned. | |||||||||||
| Click button on building number to access detailed information: | ||||||
|---|---|---|---|---|---|---|
| Bldg # | Vacant/Improved Land | Bldg Description | Year Built | SqFt | # Stories | |
|
1 |
Improved |
Ranch 1 Story |
1976 |
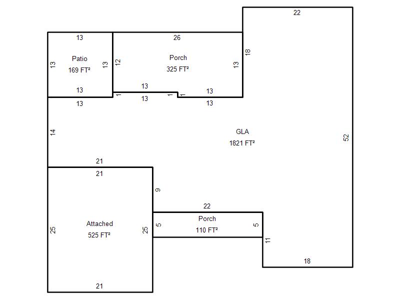
1,821 |
1 Stories |
|