|
|
|
| Larry Stein Oklahoma County Assessor (405) 713-1200 - Public Access System |
|
|
|
|
|
|
| Real Property Display - Screen Produced 2/27/2026 9:40:59 PM | ||||
|---|---|---|---|---|
| Account: R181701320 | Type: Residential | Location: |
6301 WILLOWRIDGE DR |
|
| Building Name/Occupant: |
|
WARR ACRES |
||
| Owner Name 1: | HARP TERESA ANN |
Parcel PIN#: |
2836-18-170-1320 |
|
| Owner Name 2: | HARP PAUL ANTHONY | 1/4 section #: |
2836 |
|
| Owner Name 3: | Parent Acct: |
|
||
| Billing Address: | 6301 WILLOWRIDGE DR | Tax District: |
|
|
| City, State, Zip | OKLAHOMA CITY, OK 73122-7045 | School System: |
Putnam City #1 |
|
|
Country: (If noted) |
Land Size: |
0.1768 Acres |
||
|
Land Value: 36,960 |
|
|||
|
Sect 9-T12N-R4W Qtr NW |
W RAY NEWMANS WILLOWRIDGE
Block
002
Lot
028
|
|||
| Full Legal Description: W RAY NEWMANS WILLOWRIDGE 002 028 |
| Photo & Sketch (if available) | Comp Sales (ordered by relevancy) |
|
||||||||||||||||||
|
||||||||||||||||||||
| Value History (*The County Treasurer 405-713-1300 posts & collects actual tax amounts. Contact information HERE) | |||||||||||||
|---|---|---|---|---|---|---|---|---|---|---|---|---|---|
| Year | Market Value | Taxable Mkt Value | Gross Assessed | Exemption | Net Assessed | Millage | Est. Tax | Tax Savings | |||||
|
2025 |
243,000 |
199,806 |
21,978 |
0 |
21,978 |
115.77 |
$2,544 |
$550 |
|||||
|
2024 |
246,000 |
190,292 |
20,931 |
0 |
20,931 |
114.25 |
$2,391 |
$700 |
|||||
|
2023 |
235,500 |
181,231 |
19,935 |
0 |
19,935 |
117.84 |
$2,349 |
$703 |
|||||
|
2022 |
205,000 |
172,601 |
18,986 |
0 |
18,986 |
120.40 |
$2,286 |
$429 |
|||||
|
2021 |
169,000 |
164,382 |
18,082 |
0 |
18,082 |
119.77 |
$2,166 |
$61 |
|||||
| Property Account Status/Adjustments/Exemptions | ||
|---|---|---|
| Account # | Exemption Description | Amount |
|
R181701320 |
5% Capped Account |
0 |
| Property Deed Transaction History (Recorded in the County Clerk's Office) | |||||||
|---|---|---|---|---|---|---|---|
| Date | Type | Book | Page | Price | Grantor | Grantee | |
|
9/30/2015 |
|
Hmstd Off & |
$0 |
STOVALL MARY JO ETAL HOWELLS LAURA ANN |
HARP TERESA ANN |
||
|
12/10/2013 |
|
Hmstd Off & |
$0 |
CIEMINSKI MARGARET A |
HARP TERESA ANN |
||
|
8/26/1993 |
|
Historical |
$0 |
CIEMINSKI MAX J & MARGARET A |
CIEMINSKI MARGARET A |
||
|
7/1/1975 |
|
Historical |
$0 |
|
CIEMINSKI MAX J & MARGARET A |
||
| Last Mailed Notice of Value (N.O.V.) Information/History | ||||||||
|---|---|---|---|---|---|---|---|---|
| Year | Date | Market Value | Taxable Market Value | Gross Assessed | Exemption | Net Assessed | ||
|
2026 |
02/23/2026 |
238,500 |
209,796 |
23,076 |
0 |
23,076 |
||
|
2025 |
02/14/2025 |
243,000 |
199,806 |
21,978 |
0 |
21,978 |
||
|
2024 |
02/13/2024 |
246,000 |
190,292 |
20,931 |
0 |
20,931 |
||
|
2023 |
02/14/2023 |
235,500 |
181,231 |
19,935 |
0 |
19,935 |
||
|
2022 |
03/15/2022 |
205,000 |
172,601 |
18,986 |
0 |
18,986 |
||
| Property Building Permit History | |||||||||||
|---|---|---|---|---|---|---|---|---|---|---|---|
| Issued | Permit # | Provided by | Bldg # | Description | Est Construction Cost | Status | |||||
| No Building Permit records returned. | |||||||||||
| Click button on building number to access detailed information: | ||||||
|---|---|---|---|---|---|---|
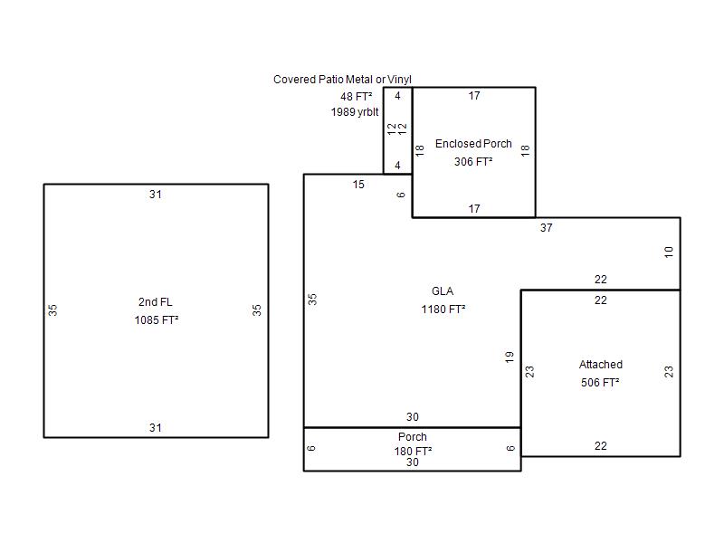
| Bldg # | Vacant/Improved Land | Bldg Description | Year Built | SqFt | # Stories | |
|
1 |
Improved |
2 Story |
1973 |
2,265 |
2 Stories |
|