|
|
|
| Larry Stein Oklahoma County Assessor (405) 713-1200 - Public Access System |
|
|
|
|
|
|
| Real Property Display - Screen Produced 2/27/2026 9:38:57 PM | ||||
|---|---|---|---|---|
| Account: R181701330 | Type: Residential | Location: |
6305 WILLOWRIDGE DR |
|
| Building Name/Occupant: |
|
WARR ACRES |
||
| Owner Name 1: | MOHLER SHERRY |
Parcel PIN#: |
2836-18-170-1330 |
|
| Owner Name 2: | RADKE DONNA L | 1/4 section #: |
2836 |
|
| Owner Name 3: | Parent Acct: |
|
||
| Billing Address: | 6305 WILLOWRIDGE DR | Tax District: |
|
|
| City, State, Zip | OKLAHOMA CITY, OK 73122-7045 | School System: |
Putnam City #1 |
|
|
Country: (If noted) |
Land Size: |
0.1877 Acres |
||
|
Land Value: 39,240 |
|
|||
|
Sect 9-T12N-R4W Qtr NW |
W RAY NEWMANS WILLOWRIDGE
Block
002
Lot
029
|
|||
| Full Legal Description: W RAY NEWMANS WILLOWRIDGE 002 029 |
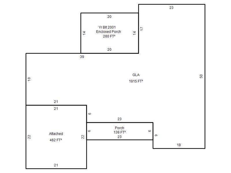
| Photo & Sketch (if available) | Comp Sales (ordered by relevancy) |
|
||||||||||||||||||
|
||||||||||||||||||||
| Value History (*The County Treasurer 405-713-1300 posts & collects actual tax amounts. Contact information HERE) | |||||||||||||
|---|---|---|---|---|---|---|---|---|---|---|---|---|---|
| Year | Market Value | Taxable Mkt Value | Gross Assessed | Exemption | Net Assessed | Millage | Est. Tax | Tax Savings | |||||
|
2025 |
224,500 |
122,237 |
13,446 |
1,000 |
12,446 |
115.77 |
$1,441 |
$1,418 |
|||||
|
2024 |
226,500 |
122,237 |
13,446 |
1,000 |
12,446 |
114.25 |
$1,422 |
$1,425 |
|||||
|
2023 |
217,500 |
122,237 |
13,446 |
1,000 |
12,446 |
117.84 |
$1,467 |
$1,353 |
|||||
|
2022 |
188,000 |
122,237 |
13,446 |
1,000 |
12,446 |
120.40 |
$1,499 |
$991 |
|||||
|
2021 |
155,500 |
122,237 |
13,446 |
1,000 |
12,446 |
119.77 |
$1,491 |
$558 |
|||||
| Property Account Status/Adjustments/Exemptions | ||
|---|---|---|
| Account # | Exemption Description | Amount |
|
R181701330 |
Freeze Senior Valuation |
0 |
|
R181701330 |
Homestead |
1,000 |
|
R181701330 |
3% Cap Homestead |
0 |
| Property Deed Transaction History (Recorded in the County Clerk's Office) | |||||||
|---|---|---|---|---|---|---|---|
| Date | Type | Book | Page | Price | Grantor | Grantee | |
|
3/15/2011 |
|
Deeds |
$0 |
BRASHEAR SHERRY |
MOHLER SHERRY |
||
|
11/1/1983 |
|
Historical |
$0 |
|
BRASHEAR SHERRY |
||
| Last Mailed Notice of Value (N.O.V.) Information/History | ||||||||
|---|---|---|---|---|---|---|---|---|
| Year | Date | Market Value | Taxable Market Value | Gross Assessed | Exemption | Net Assessed | ||
|
2024 |
02/13/2024 |
226,500 |
122,237 |
13,446 |
1,000 |
12,446 |
||
|
2023 |
02/14/2023 |
217,500 |
122,237 |
13,446 |
1,000 |
12,446 |
||
|
2022 |
03/15/2022 |
188,000 |
122,237 |
13,446 |
1,000 |
12,446 |
||
|
2021 |
03/19/2021 |
155,500 |
122,237 |
13,446 |
1,000 |
12,446 |
||
|
2020 |
03/10/2020 |
144,000 |
122,237 |
13,446 |
1,000 |
12,446 |
||
| Property Building Permit History | ||||||
|---|---|---|---|---|---|---|
| Issued | Permit # | Provided by | Bldg # | Description | Est Construction Cost | Status |
|
9/6/2001 |
10257004 |
WARR ACRES |
1 |
Add On |
13,356 |
Inactive |
| Click button on building number to access detailed information: | ||||||
|---|---|---|---|---|---|---|
| Bldg # | Vacant/Improved Land | Bldg Description | Year Built | SqFt | # Stories | |
|
1 |
Improved |
Ranch 1 Story |
1973 |
1,915 |
1 Stories |
|