|
|
|
| Larry Stein Oklahoma County Assessor (405) 713-1200 - Public Access System |
|
|
|
|
|
|
| Real Property Display - Screen Produced 3/12/2026 5:35:55 AM | ||||
|---|---|---|---|---|
| Account: R197201020 | Type: Residential | Location: |
19041 BRIARWOOD RD |
|
| Building Name/Occupant: |
|
UNINCORPORATED |
||
| Owner Name 1: | ROBISON CHRIS & NANCY |
Parcel PIN#: |
1040-19-720-1020 |
|
| Owner Name 2: | 1/4 section #: |
1040 |
||
| Owner Name 3: | Parent Acct: |
|
||
| Billing Address: | 19041 BRIARWOOD RD | Tax District: |
|
|
| City, State, Zip | HARRAH, OK 73045-6374 | School System: |
Choctaw #4 |
|
|
Country: (If noted) |
Land Size: |
1.0009 Acres |
||
|
Land Value: 30,527 |
|
|||
|
Sect 10-T11N-R1E Qtr NW |
BRIARWOOD EST EAST
Block
001
Lot
003
|
|||
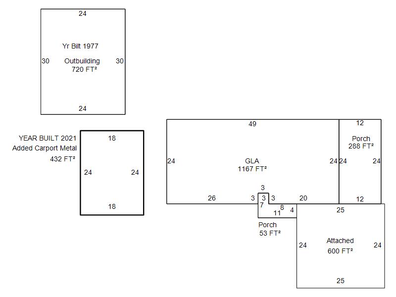
| Full Legal Description: BRIARWOOD EST EAST BLK 001 LOT 003 |
| Photo & Sketch (if available) | Comp Sales (ordered by relevancy) |
|
||||||||||||||||||
|
||||||||||||||||||||
| Value History (*The County Treasurer 405-713-1300 posts & collects actual tax amounts. Contact information HERE) | |||||||||||||
|---|---|---|---|---|---|---|---|---|---|---|---|---|---|
| Year | Market Value | Taxable Mkt Value | Gross Assessed | Exemption | Net Assessed | Millage | Est. Tax | Tax Savings | |||||
|
2025 |
219,500 |
152,531 |
16,777 |
16,777 |
0 |
117.21 |
$0 |
$2,830 |
|||||
|
2024 |
215,500 |
148,089 |
16,289 |
1,000 |
15,289 |
116.35 |
$1,779 |
$979 |
|||||
|
2023 |
200,000 |
143,776 |
15,814 |
1,000 |
14,814 |
117.10 |
$1,735 |
$841 |
|||||
|
2022 |
171,500 |
134,734 |
14,820 |
1,000 |
13,820 |
115.17 |
$1,592 |
$581 |
|||||
|
2021 |
142,000 |
130,810 |
14,389 |
1,000 |
13,389 |
115.06 |
$1,541 |
$257 |
|||||
| Property Account Status/Adjustments/Exemptions | ||
|---|---|---|
| Account # | Exemption Description | Amount |
|
R197201020 |
100% DAV Exemption |
100 |
|
R197201020 |
3% Cap Homestead |
0 |
|
R197201020 |
DAV Homestead |
0 |
| Property Deed Transaction History (Recorded in the County Clerk's Office) | ||||||||||
|---|---|---|---|---|---|---|---|---|---|---|
| Date | Type | Book | Page | Price | Grantor | Grantee | ||||
|
10/14/2011 |
|
Deeds |
$115,000 |
LOUDENSLAGER TERRY S & KETTY C |
ROBISON CHRIS & NANCY |
|||||
|
7/14/2006 |
|
Deeds |
$0 |
LOUDENSLAGER TERRY S |
LOUDENSLAGER TERRY S & KETTY C |
|||||
|
7/29/2002 |
|
Deeds |
$85,000 |
PROTZMAN JOSEPH E & SHELLEY R |
LOUDENSLAGER TERRY S |
|||||
|
12/20/1994 |
|
Historical |
$68,000 |
HOWELL JOE R II & LEA MARIE |
PROTZMAN JOSEPH E & SHELLEY R |
|||||
|
8/29/1991 |
|
Historical |
$62,500 |
HURST TIM F & ANNE |
HOWELL JOE R II & LEA MARIE |
|||||
| Last Mailed Notice of Value (N.O.V.) Information/History | ||||||||
|---|---|---|---|---|---|---|---|---|
| Year | Date | Market Value | Taxable Market Value | Gross Assessed | Exemption | Net Assessed | ||
|
2026 |
02/06/2026 |
208,500 |
157,106 |
17,281 |
17,281 |
0 |
||
|
2025 |
01/31/2025 |
219,500 |
152,531 |
16,777 |
1,000 |
15,777 |
||
|
2024 |
01/22/2024 |
215,500 |
148,089 |
16,289 |
1,000 |
15,289 |
||
|
2023 |
03/02/2023 |
200,000 |
143,776 |
15,814 |
1,000 |
14,814 |
||
|
2022 |
02/22/2022 |
171,500 |
134,734 |
14,820 |
1,000 |
13,820 |
||
| Property Building Permit History | |||||||||||
|---|---|---|---|---|---|---|---|---|---|---|---|
| Issued | Permit # | Provided by | Bldg # | Description | Est Construction Cost | Status | |||||
| No Building Permit records returned. | |||||||||||
| Click button on building number to access detailed information: | ||||||
|---|---|---|---|---|---|---|
| Bldg # | Vacant/Improved Land | Bldg Description | Year Built | SqFt | # Stories | |
|
1 |
Improved |
Ranch 1 Story |
1977 |
1,167 |
1 Stories |
|