|
|
|
| Larry Stein Oklahoma County Assessor (405) 713-1200 - Public Access System |
|
|
|
|
|
|
| Real Property Display - Screen Produced 3/12/2026 1:05:53 AM | ||||
|---|---|---|---|---|
| Account: R199361040 | Type: Residential | Location: |
2950 GREENLEAF DR |
|
| Building Name/Occupant: |
|
UNINCORPORATED |
||
| Owner Name 1: | JONES CHARLES V & SANDY L |
Parcel PIN#: |
1034-19-936-1040 |
|
| Owner Name 2: | 1/4 section #: |
1034 |
||
| Owner Name 3: | Parent Acct: |
|
||
| Billing Address: | 2950 GREENLEAF DR | Tax District: |
|
|
| City, State, Zip | NEWALLA, OK 74857-8866 | School System: |
Choctaw #4 |
|
|
Country: (If noted) |
Land Size: |
0.8170 Acres |
||
|
Land Value: 25,981 |
|
|||
|
Sect 9-T11N-R1E Qtr SE |
THE GREENLEAF ADD
Block
001
Lot
003
|
|||
| Full Legal Description: THE GREENLEAF ADD BLK 001 LOT 003 |
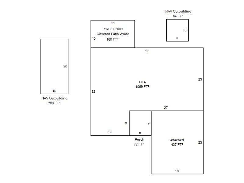
| Photo & Sketch (if available) | Comp Sales (ordered by relevancy) |
|
||||||||||||||||||
|
||||||||||||||||||||
| Value History (*The County Treasurer 405-713-1300 posts & collects actual tax amounts. Contact information HERE) | |||||||||||||
|---|---|---|---|---|---|---|---|---|---|---|---|---|---|
| Year | Market Value | Taxable Mkt Value | Gross Assessed | Exemption | Net Assessed | Millage | Est. Tax | Tax Savings | |||||
|
2025 |
184,500 |
183,855 |
20,224 |
1,000 |
19,224 |
117.21 |
$2,253 |
$126 |
|||||
|
2024 |
178,500 |
178,500 |
19,635 |
1,000 |
18,635 |
116.35 |
$2,168 |
$116 |
|||||
|
2023 |
166,500 |
92,001 |
10,119 |
0 |
10,119 |
117.10 |
$1,185 |
$960 |
|||||
|
2022 |
145,500 |
87,620 |
9,638 |
1,000 |
8,638 |
115.17 |
$995 |
$848 |
|||||
|
2021 |
120,000 |
87,620 |
9,638 |
1,000 |
8,638 |
115.06 |
$994 |
$525 |
|||||
| Property Account Status/Adjustments/Exemptions | ||
|---|---|---|
| Account # | Exemption Description | Amount |
|
R199361040 |
Freeze Senior Valuation |
0 |
|
R199361040 |
3% Cap Homestead |
0 |
|
R199361040 |
Homestead |
1,000 |
| Property Deed Transaction History (Recorded in the County Clerk's Office) | |||||||
|---|---|---|---|---|---|---|---|
| Date | Type | Book | Page | Price | Grantor | Grantee | |
|
8/29/2023 |
|
Deeds |
$174,000 |
REDBUD HOME BUYERS COM LLC |
JONES CHARLES V & SANDY L |
||
|
6/2/2023 |
|
Deeds |
$68,500 |
OSBORNE SHAWN |
REDBUD HOME BUYERS COM LLC |
||
|
3/8/2023 |
|
Hmstd Off & |
$0 |
HOLT LLOYD D & CAROLYN S |
OSBORNE SHAWN |
||
|
2/1/1978 |
|
Historical |
$0 |
|
HOLT LLOYD D & CAROLYN S |
||
| Last Mailed Notice of Value (N.O.V.) Information/History | ||||||||
|---|---|---|---|---|---|---|---|---|
| Year | Date | Market Value | Taxable Market Value | Gross Assessed | Exemption | Net Assessed | ||
|
2025 |
01/31/2025 |
184,500 |
183,855 |
20,224 |
1,000 |
19,224 |
||
|
2024 |
01/22/2024 |
178,500 |
178,500 |
19,635 |
0 |
19,635 |
||
|
2023 |
01/23/2023 |
166,500 |
87,620 |
9,638 |
1,000 |
8,638 |
||
|
2022 |
02/22/2022 |
145,500 |
87,620 |
9,638 |
1,000 |
8,638 |
||
|
2021 |
02/24/2021 |
120,000 |
87,620 |
9,638 |
1,000 |
8,638 |
||
| Property Building Permit History | |||||||||||
|---|---|---|---|---|---|---|---|---|---|---|---|
| Issued | Permit # | Provided by | Bldg # | Description | Est Construction Cost | Status | |||||
| No Building Permit records returned. | |||||||||||
| Click button on building number to access detailed information: | ||||||
|---|---|---|---|---|---|---|
| Bldg # | Vacant/Improved Land | Bldg Description | Year Built | SqFt | # Stories | |
|
1 |
Improved |
Ranch 1 Story |
1976 |
1,069 |
1 Stories |
|