Larry Stein Oklahoma County Assessor (405) 713-1200 - Public Access System
Home Contact Us Guest Book Map Search New Search
Real Property Display - Screen Produced   4/27/2026 11:53:18 AM 
Account: R197201100  Type: Residential

  

Location:

19060 BRIARWOOD RD

Building Name/Occupant:

 

UNINCORPORATED

Owner Name 1:  DAVIS DIANA SUE

Parcel PIN#:

1040-19-720-1100

Owner Name 2:    1/4 section #:

1040

Owner Name 3:    Parent Acct:

 

Billing Address:  19060 BRIARWOOD RD Tax District:

City, State, Zip  HARRAH, OK  73045 School System:

Choctaw #4

Country: (If noted)

  

Land Size:

1.0009  Acres

Personal Property

Land Value: 30,527 

Treasurer:

Sect 10-T11N-R1E Qtr NW

 BRIARWOOD EST EAST   Block 001  Lot 011   Subdivision Sales
 Full Legal Description:  BRIARWOOD EST EAST BLK 001 LOT 011

NOTE:  The following sales may or may not be used to determine Fair Market Value

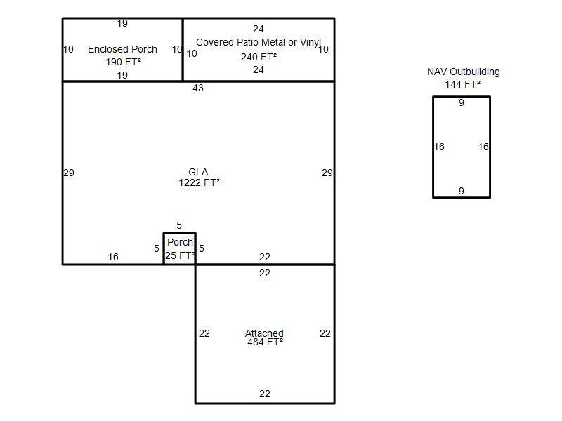
Photo & Sketch (if available) Sales  Sales Report

 2950 GREENLEAF DR UNINCORPORATED, OK

08/29/2023

 $174,000 

 2970 GREENLEAF DR UNINCORPORATED, OK

02/23/2024

 $195,000 

 19111 BRIARWOOD RD UNINCORPORATED, OK

07/26/2024

 $230,000 

 18205 WHISPER CREEK DR UNINCORPORATED, OK

07/08/2025

 $325,000 

 2507 FERGUSON DR UNINCORPORATED, OK

07/18/2025

 $352,500 

 18498 SE 15TH ST UNINCORPORATED, OK

03/14/2025

 $185,000 

Value History  (*The County Treasurer 405-713-1300 posts & collects actual tax amounts.  Contact information  HERE)
Year Market Value Taxable Mkt Value Gross Assessed Exemption Net Assessed Millage Est. Tax Tax Savings

2026

202,500 

127,021 

13,972 

1,000 

12,972 

117.21 

$1,520 

$1,090 

2025

214,000 

127,021 

13,972 

1,000 

12,972 

117.21 

$1,520 

$1,239 

2024

206,500 

127,021 

13,972 

1,000 

12,972 

116.35 

$1,509 

$1,134 

[1/10]
Property Account Status/Adjustments/Exemptions
Account # Exemption Description Amount

R197201100

Freeze Senior Valuation

R197201100

3% Cap Homestead

R197201100

Homestead

1,000 

Property Deed Transaction History   (Recorded in the County Clerk's Office)
Date Type Book Page Price Grantor Grantee

2/27/2020

Deeds

14275

1545

 $0 

DAVIS LAWRENCE B & DIANA S

DAVIS DIANA SUE

12/1/1977

Historical

4427

749

 $0 

 

DAVIS LAWRENCE B & DIANA S

Last Mailed Notice of Value (N.O.V.) Information/History
Year Date Market Value Taxable Market Value Gross Assessed Exemption Net Assessed

2025

01/31/2025

214,000 

127,021 

13,972 

1,000 

12,972 

2024

01/22/2024

206,500 

127,021 

13,972 

1,000 

12,972 

2023

01/23/2023

192,500 

127,021 

13,972 

1,000 

12,972 

[1/6]
Property Building Permit History
Issued Permit # Provided by Bldg # Description Est Construction Cost Status
No Building Permit records returned.
Click button below to access detailed information and additional property photos:
  Bldg # Vacant/Improved Land Bldg Description Year Built SqFt # Stories

Click

1

Improved

Ranch 1 Story

1977

1,222 

1 Stories