|
|
|
| Larry Stein Oklahoma County Assessor (405) 713-1200 - Public Access System |
|
|
|
|
|
|
| Real Property Display - Screen Produced 2/28/2026 2:22:51 AM | ||||
|---|---|---|---|---|
| Account: R143361290 | Type: Residential | Location: |
6208 N WARREN AVE |
|
| Building Name/Occupant: |
|
OKLAHOMA CITY |
||
| Owner Name 1: | SPENCER SHERRI L |
Parcel PIN#: |
2844-14-336-1290 |
|
| Owner Name 2: | 1/4 section #: |
2844 |
||
| Owner Name 3: | Parent Acct: |
|
||
| Billing Address: | 6208 N WARREN AVE | Tax District: |
|
|
| City, State, Zip | OKLAHOMA CITY, OK 73112-1263 | School System: |
Putnam City #1 |
|
|
Country: (If noted) |
Land Size: |
0.2277 Acres |
||
|
Land Value: 42,656 |
|
|||
|
Sect 11-T12N-R4W Qtr NW |
CLARKS LAKERIDGE
Block
002
Lot
007
|
|||
| Full Legal Description: CLARKS LAKERIDGE 002 007 |
| Photo & Sketch (if available) | Comp Sales (ordered by relevancy) |
|
||||||||||||||||||
|
||||||||||||||||||||
| Value History (*The County Treasurer 405-713-1300 posts & collects actual tax amounts. Contact information HERE) | |||||||||||||
|---|---|---|---|---|---|---|---|---|---|---|---|---|---|
| Year | Market Value | Taxable Mkt Value | Gross Assessed | Exemption | Net Assessed | Millage | Est. Tax | Tax Savings | |||||
|
2025 |
200,000 |
144,522 |
15,897 |
1,000 |
14,897 |
123.17 |
$1,835 |
$875 |
|||||
|
2024 |
198,500 |
140,313 |
15,433 |
1,000 |
14,433 |
122.30 |
$1,765 |
$905 |
|||||
|
2023 |
189,500 |
136,227 |
14,984 |
1,000 |
13,984 |
121.91 |
$1,705 |
$836 |
|||||
|
2022 |
167,000 |
132,260 |
14,547 |
1,000 |
13,547 |
123.41 |
$1,672 |
$595 |
|||||
|
2021 |
141,500 |
128,408 |
14,124 |
1,000 |
13,124 |
122.23 |
$1,604 |
$298 |
|||||
| Property Account Status/Adjustments/Exemptions | ||
|---|---|---|
| Account # | Exemption Description | Amount |
|
R143361290 |
3% Cap Homestead |
0 |
|
R143361290 |
Homestead |
1,000 |
| Property Deed Transaction History (Recorded in the County Clerk's Office) | |||||||
|---|---|---|---|---|---|---|---|
| Date | Type | Book | Page | Price | Grantor | Grantee | |
|
5/22/2008 |
|
Deeds |
$0 |
SPENCER SHERRI L & WESLEY O |
SPENCER SHERRI L |
||
|
11/21/2007 |
|
Deeds |
$90,000 |
HAMILTON G DOUGLAS SUC CO TRS SHAW JUDITH C REV TRUST |
SPENCER SHERRI L & WESLEY O |
||
|
4/26/2006 |
|
Deeds |
$0 |
SHAW JUDITH |
SHAW JUDITH C TRS SHAW JUDITH C REV TRUST |
||
|
4/26/2006 |
|
Hmstd Off & |
$0 |
SHAW JUDITH C TRS |
HAMILTON G DOUGLAS SUC CO TRS SHAW JUDITH C REV TRUST |
||
|
4/1/1976 |
|
Historical |
$0 |
|
SHAW JUDITH C |
||
| Last Mailed Notice of Value (N.O.V.) Information/History | ||||||||
|---|---|---|---|---|---|---|---|---|
| Year | Date | Market Value | Taxable Market Value | Gross Assessed | Exemption | Net Assessed | ||
|
2026 |
02/23/2026 |
195,500 |
148,857 |
16,373 |
1,000 |
15,373 |
||
|
2025 |
02/14/2025 |
200,000 |
144,522 |
15,897 |
1,000 |
14,897 |
||
|
2024 |
02/13/2024 |
198,500 |
140,313 |
15,433 |
1,000 |
14,433 |
||
|
2023 |
02/14/2023 |
189,500 |
136,227 |
14,984 |
1,000 |
13,984 |
||
|
2022 |
03/15/2022 |
167,000 |
132,260 |
14,547 |
1,000 |
13,547 |
||
| Property Building Permit History | |||||||||||
|---|---|---|---|---|---|---|---|---|---|---|---|
| Issued | Permit # | Provided by | Bldg # | Description | Est Construction Cost | Status | |||||
| No Building Permit records returned. | |||||||||||
| Click button on building number to access detailed information: | ||||||
|---|---|---|---|---|---|---|
| Bldg # | Vacant/Improved Land | Bldg Description | Year Built | SqFt | # Stories | |
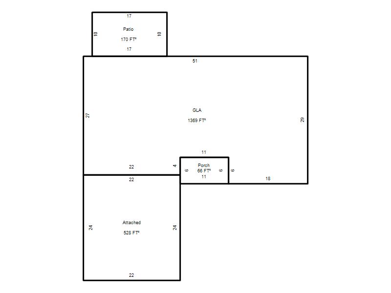
|
1 |
Improved |
Ranch 1 Story |
1963 |
1,369 |
1 Stories |
|