|
|
|
| Larry Stein Oklahoma County Assessor (405) 713-1200 - Public Access System |
|
|
|
|
|
|
| Real Property Display - Screen Produced 2/28/2026 2:22:52 AM | ||||
|---|---|---|---|---|
| Account: R143361610 | Type: Residential | Location: |
4332 NW 61ST TER |
|
| Building Name/Occupant: |
|
OKLAHOMA CITY |
||
| Owner Name 1: | POWELL JAMES L |
Parcel PIN#: |
2844-14-336-1610 |
|
| Owner Name 2: | POWELL CHERYL A | 1/4 section #: |
2844 |
|
| Owner Name 3: | Parent Acct: |
|
||
| Billing Address: | 4332 NW 61ST TER | Tax District: |
|
|
| City, State, Zip | OKLAHOMA CITY, OK 73112-1327 | School System: |
Putnam City #1 |
|
|
Country: (If noted) |
Land Size: |
0.2126 Acres |
||
|
Land Value: 38,500 |
|
|||
|
Sect 11-T12N-R4W Qtr NW |
CLARKS LAKERIDGE
Block
003
Lot
015
|
|||
| Full Legal Description: CLARKS LAKERIDGE 003 015 |
| Photo & Sketch (if available) | Comp Sales (ordered by relevancy) |
|
||||||||||||||||||
|
||||||||||||||||||||
| Value History (*The County Treasurer 405-713-1300 posts & collects actual tax amounts. Contact information HERE) | |||||||||||||
|---|---|---|---|---|---|---|---|---|---|---|---|---|---|
| Year | Market Value | Taxable Mkt Value | Gross Assessed | Exemption | Net Assessed | Millage | Est. Tax | Tax Savings | |||||
|
2025 |
222,000 |
169,552 |
18,650 |
1,000 |
17,650 |
123.17 |
$2,174 |
$834 |
|||||
|
2024 |
219,500 |
164,614 |
18,107 |
1,000 |
17,107 |
122.30 |
$2,092 |
$861 |
|||||
|
2023 |
207,500 |
159,820 |
17,580 |
1,000 |
16,580 |
121.91 |
$2,021 |
$761 |
|||||
|
2022 |
183,500 |
155,166 |
17,067 |
1,000 |
16,067 |
123.41 |
$1,983 |
$508 |
|||||
|
2021 |
156,500 |
150,647 |
16,570 |
1,000 |
15,570 |
122.23 |
$1,903 |
$201 |
|||||
| Property Account Status/Adjustments/Exemptions | ||
|---|---|---|
| Account # | Exemption Description | Amount |
|
R143361610 |
3% Cap Homestead |
0 |
|
R143361610 |
Homestead |
1,000 |
| Property Deed Transaction History (Recorded in the County Clerk's Office) | |||||||
|---|---|---|---|---|---|---|---|
| Date | Type | Book | Page | Price | Grantor | Grantee | |
|
4/24/2015 |
|
Deeds |
$141,500 |
MOSES PATRICIA LYNN |
POWELL JAMES L |
||
|
12/8/1995 |
|
Historical |
$0 |
MOSES W DALE & PATRICIA L |
MOSES PATRICIA LYNN |
||
|
10/25/1995 |
|
Historical |
$0 |
LYNN PATRICIA K |
MOSES W DALE & PATRICIA L |
||
|
11/1/1977 |
|
Historical |
$0 |
|
LYNN PATRICIA K |
||
| Last Mailed Notice of Value (N.O.V.) Information/History | ||||||||
|---|---|---|---|---|---|---|---|---|
| Year | Date | Market Value | Taxable Market Value | Gross Assessed | Exemption | Net Assessed | ||
|
2026 |
02/23/2026 |
220,000 |
174,638 |
19,209 |
1,000 |
18,209 |
||
|
2025 |
02/14/2025 |
222,000 |
169,552 |
18,650 |
1,000 |
17,650 |
||
|
2024 |
02/13/2024 |
219,500 |
164,614 |
18,107 |
1,000 |
17,107 |
||
|
2023 |
02/14/2023 |
207,500 |
159,820 |
17,580 |
1,000 |
16,580 |
||
|
2022 |
03/15/2022 |
183,500 |
155,166 |
17,067 |
1,000 |
16,067 |
||
| Property Building Permit History | |||||||||||
|---|---|---|---|---|---|---|---|---|---|---|---|
| Issued | Permit # | Provided by | Bldg # | Description | Est Construction Cost | Status | |||||
| No Building Permit records returned. | |||||||||||
| Click button on building number to access detailed information: | ||||||
|---|---|---|---|---|---|---|
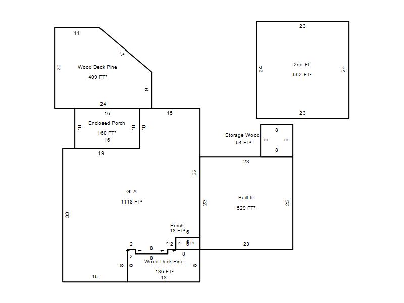
| Bldg # | Vacant/Improved Land | Bldg Description | Year Built | SqFt | # Stories | |
|
1 |
Improved |
1½ Story Fin |
1965 |
1,670 |
1.5 Stories |
|