|
|
|
| Larry Stein Oklahoma County Assessor (405) 713-1200 - Public Access System |
|
|
|
|
|
|
| Real Property Display - Screen Produced 2/27/2026 9:47:46 PM | ||||
|---|---|---|---|---|
| Account: R146661190 | Type: Residential | Location: |
4412 NW 60TH ST |
|
| Building Name/Occupant: |
|
OKLAHOMA CITY |
||
| Owner Name 1: | STAM TARA |
Parcel PIN#: |
2844-14-666-1190 |
|
| Owner Name 2: | 1/4 section #: |
2844 |
||
| Owner Name 3: | Parent Acct: |
|
||
| Billing Address: | 4412 NW 60TH ST | Tax District: |
|
|
| City, State, Zip | OKLAHOMA CITY, OK 73112-1321 | School System: |
Putnam City #1 |
|
|
Country: (If noted) |
Land Size: |
0.3099 Acres |
||
|
Land Value: 38,475 |
|
|||
|
Sect 11-T12N-R4W Qtr NW |
ROYCE BROWN HOLIDAY VILLAGE
Block
002
Lot
008
|
|||
| Full Legal Description: ROYCE BROWN HOLIDAY VILLAGE 002 008 NELY 90FT |
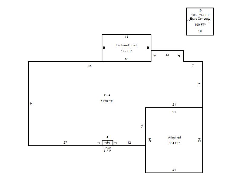
| Photo & Sketch (if available) | Comp Sales (ordered by relevancy) |
|
||||||||||||||||||
|
||||||||||||||||||||
| Value History (*The County Treasurer 405-713-1300 posts & collects actual tax amounts. Contact information HERE) | |||||||||||||
|---|---|---|---|---|---|---|---|---|---|---|---|---|---|
| Year | Market Value | Taxable Mkt Value | Gross Assessed | Exemption | Net Assessed | Millage | Est. Tax | Tax Savings | |||||
|
2025 |
264,500 |
222,454 |
24,469 |
0 |
24,469 |
123.17 |
$3,014 |
$570 |
|||||
|
2024 |
266,000 |
211,861 |
23,304 |
0 |
23,304 |
122.30 |
$2,850 |
$728 |
|||||
|
2023 |
250,000 |
201,773 |
22,194 |
0 |
22,194 |
121.91 |
$2,706 |
$647 |
|||||
|
2022 |
219,000 |
192,165 |
21,137 |
0 |
21,137 |
123.41 |
$2,609 |
$364 |
|||||
|
2021 |
186,500 |
183,015 |
20,131 |
0 |
20,131 |
122.23 |
$2,461 |
$47 |
|||||
| Property Account Status/Adjustments/Exemptions | ||
|---|---|---|
| Account # | Exemption Description | Amount |
|
R146661190 |
5% Capped Account |
0 |
| Property Deed Transaction History (Recorded in the County Clerk's Office) | |||||||
|---|---|---|---|---|---|---|---|
| Date | Type | Book | Page | Price | Grantor | Grantee | |
|
10/21/2014 |
|
Deeds |
$148,000 |
DRYBURGH ALEX T & ELIZABETH R |
STAM TARA |
||
|
8/10/2006 |
|
Deeds |
$120,000 |
SHIMON LESTER & MILDRED CO TRS SHIMON FAMILY TRUST |
DRYBURGH ALEX T & ELIZABETH R |
||
|
2/27/1991 |
|
Historical |
$0 |
SHIMON LESTER F & M |
SHIMON LESTER & MILDRED CO TRS |
||
|
11/11/1911 |
|
Historical |
$0 |
|
SHIMON LESTER F & M |
||
| Last Mailed Notice of Value (N.O.V.) Information/History | ||||||||
|---|---|---|---|---|---|---|---|---|
| Year | Date | Market Value | Taxable Market Value | Gross Assessed | Exemption | Net Assessed | ||
|
2026 |
02/23/2026 |
260,000 |
233,576 |
25,692 |
0 |
25,692 |
||
|
2025 |
02/14/2025 |
264,500 |
222,454 |
24,469 |
0 |
24,469 |
||
|
2024 |
02/13/2024 |
266,000 |
211,861 |
23,304 |
0 |
23,304 |
||
|
2023 |
02/14/2023 |
250,000 |
201,773 |
22,194 |
0 |
22,194 |
||
|
2022 |
03/15/2022 |
219,000 |
192,165 |
21,137 |
0 |
21,137 |
||
| Property Building Permit History | |||||||||||
|---|---|---|---|---|---|---|---|---|---|---|---|
| Issued | Permit # | Provided by | Bldg # | Description | Est Construction Cost | Status | |||||
| No Building Permit records returned. | |||||||||||
| Click button on building number to access detailed information: | ||||||
|---|---|---|---|---|---|---|
| Bldg # | Vacant/Improved Land | Bldg Description | Year Built | SqFt | # Stories | |
|
1 |
Improved |
Ranch 1 Story |
1959 |
1,730 |
1 Stories |
|