|
|
|
| Larry Stein Oklahoma County Assessor (405) 713-1200 - Public Access System |
|
|
|
|
|
|
| Real Property Display - Screen Produced 2/27/2026 10:57:40 PM | ||||
|---|---|---|---|---|
| Account: R143361230 | Type: Residential | Location: |
6308 N WARREN AVE |
|
| Building Name/Occupant: |
|
OKLAHOMA CITY |
||
| Owner Name 1: | SHORT DAVID W |
Parcel PIN#: |
2844-14-336-1230 |
|
| Owner Name 2: | WILLIAMS HELEN ELYSE | 1/4 section #: |
2844 |
|
| Owner Name 3: | Parent Acct: |
|
||
| Billing Address: | 6308 N WARREN AVE | Tax District: |
|
|
| City, State, Zip | OKLAHOMA CITY, OK 73112-1265 | School System: |
Putnam City #1 |
|
|
Country: (If noted) |
Land Size: |
0.2104 Acres |
||
|
Land Value: 39,410 |
|
|||
|
Sect 11-T12N-R4W Qtr NW |
CLARKS LAKERIDGE
Block
002
Lot
001
|
|||
| Full Legal Description: CLARKS LAKERIDGE 002 001 |
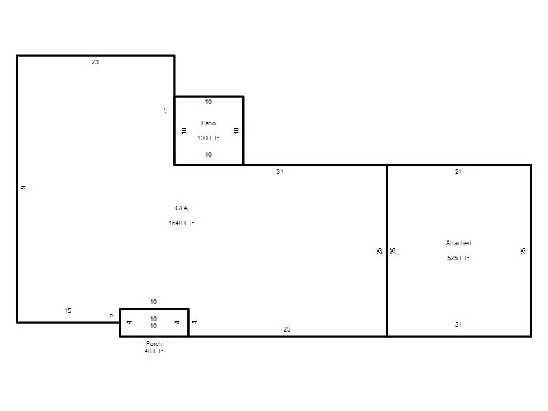
| Photo & Sketch (if available) | Comp Sales (ordered by relevancy) |
|
||||||||||||||||||
|
||||||||||||||||||||
| Value History (*The County Treasurer 405-713-1300 posts & collects actual tax amounts. Contact information HERE) | |||||||||||||
|---|---|---|---|---|---|---|---|---|---|---|---|---|---|
| Year | Market Value | Taxable Mkt Value | Gross Assessed | Exemption | Net Assessed | Millage | Est. Tax | Tax Savings | |||||
|
2025 |
264,000 |
264,000 |
29,040 |
29,040 |
0 |
123.17 |
$0 |
$3,577 |
|||||
|
2024 |
263,500 |
245,857 |
27,043 |
0 |
27,043 |
122.30 |
$3,308 |
$237 |
|||||
|
2023 |
253,500 |
234,150 |
25,756 |
0 |
25,756 |
121.91 |
$3,140 |
$259 |
|||||
|
2022 |
223,000 |
223,000 |
24,530 |
0 |
24,530 |
123.41 |
$3,027 |
$0 |
|||||
|
2021 |
163,000 |
163,000 |
17,930 |
0 |
17,930 |
122.23 |
$2,192 |
$0 |
|||||
| Property Account Status/Adjustments/Exemptions | ||
|---|---|---|
| Account # | Exemption Description | Amount |
|
R143361230 |
3% Cap Homestead |
0 |
|
R143361230 |
100% DAV Exemption |
100 |
|
R143361230 |
DAV Homestead |
0 |
| Property Deed Transaction History (Recorded in the County Clerk's Office) | |||||||
|---|---|---|---|---|---|---|---|
| Date | Type | Book | Page | Price | Grantor | Grantee | |
|
5/6/2024 |
|
Deeds |
$245,000 |
CARTER COLTON NEAL |
SHORT DAVID W |
||
|
4/9/2021 |
|
Deeds |
$215,000 |
WYNN WYNN CAPITAL LLC |
CARTER COLTON NEAL |
||
|
9/24/2020 |
|
Deeds |
$120,000 |
SEALE GARY LEE & DONNA MARIE |
WYNN WYNN CAPITAL LLC |
||
|
5/1/1982 |
|
Historical |
$0 |
|
SEALE GARY LEE & DONNA MARIE |
||
| Last Mailed Notice of Value (N.O.V.) Information/History | ||||||||
|---|---|---|---|---|---|---|---|---|
| Year | Date | Market Value | Taxable Market Value | Gross Assessed | Exemption | Net Assessed | ||
|
2025 |
02/14/2025 |
264,000 |
264,000 |
29,040 |
29,040 |
0 |
||
|
2024 |
02/13/2024 |
263,500 |
245,857 |
27,043 |
0 |
27,043 |
||
|
2023 |
02/14/2023 |
253,500 |
234,150 |
25,756 |
0 |
25,756 |
||
|
2022 |
03/15/2022 |
223,000 |
223,000 |
24,530 |
0 |
24,530 |
||
|
2021 |
03/19/2021 |
163,000 |
163,000 |
17,930 |
0 |
17,930 |
||
| Property Building Permit History | |||||||||||
|---|---|---|---|---|---|---|---|---|---|---|---|
| Issued | Permit # | Provided by | Bldg # | Description | Est Construction Cost | Status | |||||
| No Building Permit records returned. | |||||||||||
| Click button on building number to access detailed information: | ||||||
|---|---|---|---|---|---|---|
| Bldg # | Vacant/Improved Land | Bldg Description | Year Built | SqFt | # Stories | |
|
1 |
Improved |
Ranch 1 Story |
1967 |
1,648 |
1 Stories |
|