|
|
|
| Larry Stein Oklahoma County Assessor (405) 713-1200 - Public Access System |
|
|
|
|
|
|
| Real Property Display - Screen Produced 3/24/2026 8:08:16 AM | ||||
|---|---|---|---|---|
| Account: R073490495 | Type: Residential | Location: |
3308 NW 42ND ST |
|
| Building Name/Occupant: |
|
OKLAHOMA CITY |
||
| Owner Name 1: | CHRISMAN VICTORIA R |
Parcel PIN#: |
2851-07-349-0495 |
|
| Owner Name 2: | 1/4 section #: |
2851 |
||
| Owner Name 3: | Parent Acct: |
|
||
| Billing Address: | 3308 NW 42ND ST | Tax District: |
|
|
| City, State, Zip | OKLAHOMA CITY, OK 73112-6228 | School System: |
Oklahoma City #89 |
|
|
Country: (If noted) |
Land Size: |
0.1639 Acres |
||
|
Land Value: 25,700 |
|
|||
|
Sect 13-T12N-R4W Qtr SW |
TREADWELL FOURTH ADD
Block
003
Lot
003
|
|||
| Full Legal Description: TREADWELL FOURTH ADD 003 003 |
| Photo & Sketch (if available) | Comp Sales (ordered by relevancy) |
|
||||||||||||||||||
|
||||||||||||||||||||
| Value History (*The County Treasurer 405-713-1300 posts & collects actual tax amounts. Contact information HERE) | |||||||||||||
|---|---|---|---|---|---|---|---|---|---|---|---|---|---|
| Year | Market Value | Taxable Mkt Value | Gross Assessed | Exemption | Net Assessed | Millage | Est. Tax | Tax Savings | |||||
|
2025 |
141,500 |
95,969 |
10,556 |
1,000 |
9,556 |
122.90 |
$1,175 |
$738 |
|||||
|
2024 |
136,500 |
93,174 |
10,248 |
1,000 |
9,248 |
123.89 |
$1,146 |
$714 |
|||||
|
2023 |
125,500 |
90,461 |
9,949 |
1,000 |
8,949 |
122.82 |
$1,099 |
$596 |
|||||
|
2022 |
108,500 |
87,827 |
9,660 |
1,000 |
8,660 |
117.63 |
$1,019 |
$385 |
|||||
|
2021 |
92,500 |
85,269 |
9,379 |
1,000 |
8,379 |
117.70 |
$986 |
$211 |
|||||
| Property Account Status/Adjustments/Exemptions | ||
|---|---|---|
| Account # | Exemption Description | Amount |
|
R073490495 |
3% Cap Homestead |
0 |
|
R073490495 |
Homestead |
1,000 |
| Property Deed Transaction History (Recorded in the County Clerk's Office) | ||||||||||
|---|---|---|---|---|---|---|---|---|---|---|
| Date | Type | Book | Page | Price | Grantor | Grantee | ||||
|
4/20/2009 |
|
Deeds |
$83,500 |
FORESTER EDWARD |
CHRISMAN VICTORIA R |
|||||
|
5/2/2003 |
|
Deeds |
$62,500 |
SANDERSON MARK A |
FORESTER EDWARD |
|||||
|
4/6/1998 |
|
Historical |
$45,000 |
PRYOR ENTERPRISES INC |
SANDERSON MARK A |
|||||
|
1/28/1998 |
|
Historical |
$30,000 |
SPIVA SANDRA S |
PRYOR ENTERPRISES INC |
|||||
|
8/28/1996 |
|
Historical |
$0 |
DAVIS LUCILLE H |
SPIVA SANDRA S |
|||||
| Last Mailed Notice of Value (N.O.V.) Information/History | ||||||||
|---|---|---|---|---|---|---|---|---|
| Year | Date | Market Value | Taxable Market Value | Gross Assessed | Exemption | Net Assessed | ||
|
2026 |
02/23/2026 |
140,000 |
98,848 |
10,872 |
1,000 |
9,872 |
||
|
2025 |
02/14/2025 |
141,500 |
95,969 |
10,556 |
1,000 |
9,556 |
||
|
2024 |
02/13/2024 |
136,500 |
93,174 |
10,248 |
1,000 |
9,248 |
||
|
2023 |
02/14/2023 |
125,500 |
90,461 |
9,949 |
1,000 |
8,949 |
||
|
2022 |
03/15/2022 |
108,500 |
87,827 |
9,660 |
1,000 |
8,660 |
||
| Property Building Permit History | |||||||||||
|---|---|---|---|---|---|---|---|---|---|---|---|
| Issued | Permit # | Provided by | Bldg # | Description | Est Construction Cost | Status | |||||
| No Building Permit records returned. | |||||||||||
| Click button on building number to access detailed information: | ||||||
|---|---|---|---|---|---|---|
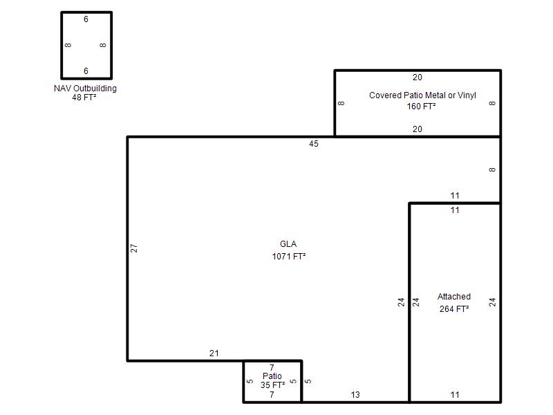
| Bldg # | Vacant/Improved Land | Bldg Description | Year Built | SqFt | # Stories | |
|
1 |
Improved |
Ranch 1 Story |
1951 |
1,071 |
1 Stories |
|