|
|
|
| Larry Stein Oklahoma County Assessor (405) 713-1200 - Public Access System |
|
|
|
|
|
|
| Real Property Display - Screen Produced 4/28/2026 9:52:13 PM | ||||
|---|---|---|---|---|
| Account: R188621555 | Type: Residential | Location: |
4404 N STANLEY AVE |
|
| Building Name/Occupant: |
|
WARR ACRES |
||
| Owner Name 1: | EDMON JAMES RUBEN & HAO NGUYEN |
Parcel PIN#: |
2857-18-862-1555 |
|
| Owner Name 2: | 1/4 section #: |
2857 |
||
| Owner Name 3: | Parent Acct: |
|
||
| Billing Address: | 4404 N STANLEY AVE | Tax District: |
|
|
| City, State, Zip | WARR ACRES, OK 73122 | School System: |
Putnam City #1 |
|
|
Country: (If noted) |
Land Size: |
0.1671 Acres |
||
|
Land Value: 23,296 |
|
|||
|
Sect 15-T12N-R4W Qtr NE |
PUTNAM VILLAGE ADD
Block
003
Lot
014
|
|||
| Full Legal Description: PUTNAM VILLAGE ADD 003 014 |
| Value History (*The County Treasurer 405-713-1300 posts & collects actual tax amounts. Contact information HERE) | |||||||||||||
|---|---|---|---|---|---|---|---|---|---|---|---|---|---|
| Year | Market Value | Taxable Mkt Value | Gross Assessed | Exemption | Net Assessed | Millage | Est. Tax | Tax Savings | |||||
|
2026 |
111,000 |
96,798 |
10,647 |
1,000 |
9,647 |
115.77 |
$1,117 |
$297 |
|||||
|
2025 |
112,000 |
93,979 |
10,337 |
1,000 |
9,337 |
115.77 |
$1,081 |
$345 |
|||||
|
2024 |
111,000 |
91,242 |
10,036 |
1,000 |
9,036 |
114.25 |
$1,032 |
$363 |
|||||
| Property Account Status/Adjustments/Exemptions | ||
|---|---|---|
| Account # | Exemption Description | Amount |
|
R188621555 |
3% Cap Homestead |
0 |
|
R188621555 |
Homestead |
1,000 |
| Property Deed Transaction History (Recorded in the County Clerk's Office) | ||||||||||
|---|---|---|---|---|---|---|---|---|---|---|
| Date | Type | Book | Page | Price | Grantor | Grantee | ||||
|
10/3/2017 |
|
Deeds |
$85,000 |
STEPHENS LONNIE J & MARGARET A |
EDMON JAMES RUBEN & HAO NGUYEN |
|||||
|
11/10/1992 |
|
Historical |
$35,000 |
PALMER STACY LYNN |
STEPHENS LONNIE J & MARGARET A |
|||||
|
5/7/1987 |
|
Historical |
$31,500 |
ADMR OF VETRANS AFFAIRS |
PALMER STACY LYNN |
|||||
| Last Mailed Notice of Value (N.O.V.) Information/History | ||||||||
|---|---|---|---|---|---|---|---|---|
| Year | Date | Market Value | Taxable Market Value | Gross Assessed | Exemption | Net Assessed | ||
|
2026 |
02/23/2026 |
111,000 |
96,798 |
10,647 |
1,000 |
9,647 |
||
|
2025 |
02/14/2025 |
112,000 |
93,979 |
10,337 |
1,000 |
9,337 |
||
|
2024 |
02/13/2024 |
111,000 |
91,242 |
10,036 |
1,000 |
9,036 |
||
| Property Building Permit History | |||||||||||
|---|---|---|---|---|---|---|---|---|---|---|---|
| Issued | Permit # | Provided by | Bldg # | Description | Est Construction Cost | Status | |||||
| No Building Permit records returned. | |||||||||||
| Click button below to access detailed information and additional property photos: | ||||||
|---|---|---|---|---|---|---|
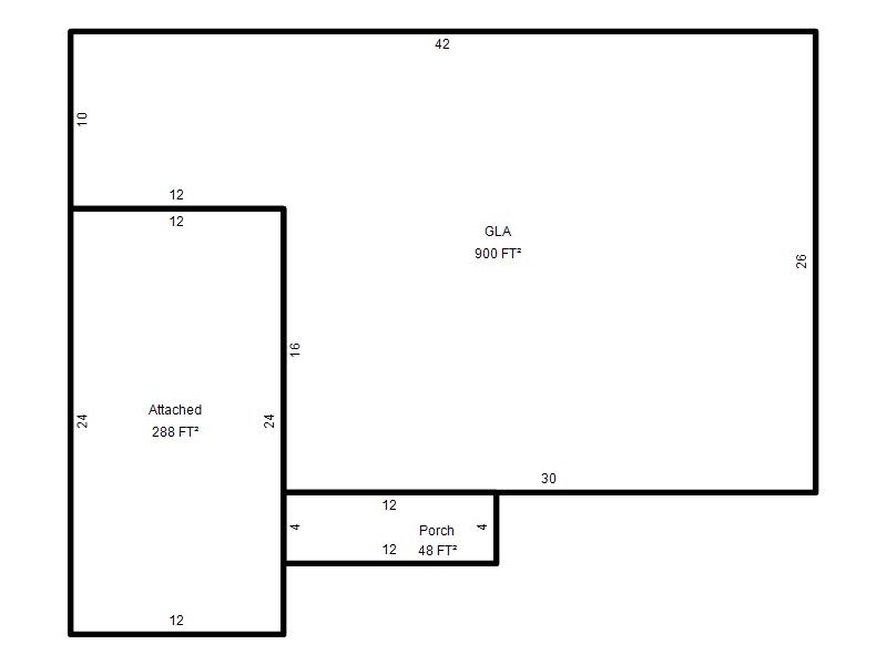
| Bldg # | Vacant/Improved Land | Bldg Description | Year Built | SqFt | # Stories | |
|
1 |
Improved |
Ranch 1 Story |
1954 |
900 |
1 Stories |
|