|
|
|
| Larry Stein Oklahoma County Assessor (405) 713-1200 - Public Access System |
|
|
|
|
|
|
| Real Property Display - Screen Produced 4/5/2026 4:04:17 AM | ||||
|---|---|---|---|---|
| Account: R175311325 | Type: Residential | Location: |
3704 EAGLE LN |
|
| Building Name/Occupant: |
|
BETHANY |
||
| Owner Name 1: | ESCAMILLA GUILLERMO ANAYA |
Parcel PIN#: |
2870-17-531-1325 |
|
| Owner Name 2: | 1/4 section #: |
2870 |
||
| Owner Name 3: | Parent Acct: |
|
||
| Billing Address: | 3704 N EAGLE LN | Tax District: |
|
|
| City, State, Zip | BETHANY, OK 73008-3542 | School System: |
Putnam City #1 |
|
|
Country: (If noted) |
Land Size: |
0.1791 Acres |
||
|
Land Value: 31,980 |
|
|||
|
Sect 18-T12N-R4W Qtr SE |
LEWALLENS WESTRN SANDS 2ND
Block
010
Lot
011
|
|||
| Full Legal Description: LEWALLENS WESTRN SANDS 2ND 010 011 |
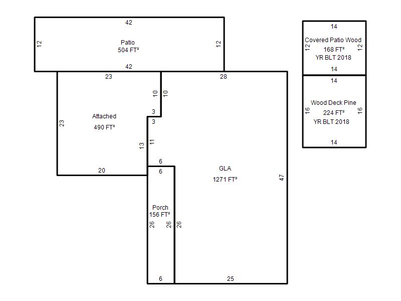
| Photo & Sketch (if available) | Comp Sales (ordered by relevancy) |
|
||||||||||||||||||
|
||||||||||||||||||||
| Value History (*The County Treasurer 405-713-1300 posts & collects actual tax amounts. Contact information HERE) | |||||||||||||
|---|---|---|---|---|---|---|---|---|---|---|---|---|---|
| Year | Market Value | Taxable Mkt Value | Gross Assessed | Exemption | Net Assessed | Millage | Est. Tax | Tax Savings | |||||
|
2026 |
217,500 |
217,500 |
23,925 |
0 |
23,925 |
122.14 |
$2,922 |
$0 |
|||||
|
2025 |
219,000 |
219,000 |
24,090 |
0 |
24,090 |
122.14 |
$2,942 |
$0 |
|||||
|
2024 |
218,500 |
218,500 |
24,035 |
0 |
24,035 |
120.52 |
$2,897 |
$0 |
|||||
|
2023 |
166,000 |
150,150 |
16,516 |
0 |
16,516 |
123.06 |
$2,033 |
$215 |
|||||
|
2022 |
143,000 |
143,000 |
15,730 |
0 |
15,730 |
112.54 |
$1,770 |
$0 |
|||||
| Property Account Status/Adjustments/Exemptions | ||
|---|---|---|
| Account # | Exemption Description | Amount |
|
R175311325 |
5% Capped Account |
0 |
| Property Deed Transaction History (Recorded in the County Clerk's Office) | ||||||||||
|---|---|---|---|---|---|---|---|---|---|---|
| Date | Type | Book | Page | Price | Grantor | Grantee | ||||
|
4/27/2023 |
|
Hmstd Off & |
$0 |
EAGLE LANE RENTAL LLC |
EAGLE LANE RENTAL LLC |
|||||
|
4/27/2023 |
|
Deeds |
$225,000 |
EAGLE LANE RENTAL LLC |
ESCAMILLA GUILLERMO ANAYA |
|||||
|
11/18/2019 |
|
Hmstd Off & |
$0 |
DENHAM MELINDA |
EAGLE LANE RENTAL LLC |
|||||
|
6/27/2019 |
|
Deeds |
$133,000 |
BOND DAVID & BETHANY |
DENHAM MELINDA |
|||||
|
8/19/2016 |
|
Deeds |
$113,000 |
SKR II LLC |
BOND DAVID & BETHANY |
|||||
| Last Mailed Notice of Value (N.O.V.) Information/History | ||||||||
|---|---|---|---|---|---|---|---|---|
| Year | Date | Market Value | Taxable Market Value | Gross Assessed | Exemption | Net Assessed | ||
|
2025 |
02/14/2025 |
219,000 |
219,000 |
24,090 |
0 |
24,090 |
||
|
2024 |
02/13/2024 |
218,500 |
218,500 |
24,035 |
0 |
24,035 |
||
|
2023 |
02/14/2023 |
166,000 |
150,150 |
16,516 |
0 |
16,516 |
||
|
2022 |
03/15/2022 |
143,000 |
143,000 |
15,730 |
0 |
15,730 |
||
|
2021 |
03/19/2021 |
138,500 |
138,500 |
15,235 |
0 |
15,235 |
||
| Property Building Permit History | |||||||||||
|---|---|---|---|---|---|---|---|---|---|---|---|
| Issued | Permit # | Provided by | Bldg # | Description | Est Construction Cost | Status | |||||
| No Building Permit records returned. | |||||||||||
| Click button on building number to access detailed information: | ||||||
|---|---|---|---|---|---|---|
| Bldg # | Vacant/Improved Land | Bldg Description | Year Built | SqFt | # Stories | |
|
1 |
Improved |
Ranch 1 Story |
1964 |
1,271 |
1 Stories |
|