|
|
|
| Larry Stein Oklahoma County Assessor (405) 713-1200 - Public Access System |
|
|
|
|
|
|
| Real Property Display - Screen Produced 2/27/2026 7:32:30 PM | ||||
|---|---|---|---|---|
| Account: R173901460 | Type: Residential | Location: |
7808 NW 27TH ST |
|
| Building Name/Occupant: |
|
BETHANY |
||
| Owner Name 1: | HEKMATARA RAHMIN |
Parcel PIN#: |
2879-17-390-1460 |
|
| Owner Name 2: | HEKMATARA JOVEETTA YVONNE | 1/4 section #: |
2879 |
|
| Owner Name 3: | Parent Acct: |
|
||
| Billing Address: | 7808 NW 27TH ST | Tax District: |
|
|
| City, State, Zip | BETHANY, OK 73008-4414 | School System: |
Putnam City #1 |
|
|
Country: (If noted) |
Land Size: |
0.2376 Acres |
||
|
Land Value: 41,396 |
|
|||
|
Sect 20-T12N-R4W Qtr SW |
DEVILLE PARK 2ND
Block
003
Lot
000
|
|||
| Full Legal Description: DEVILLE PARK 2ND 003 000 LOT 11 & E7FT OF LOT 12 |
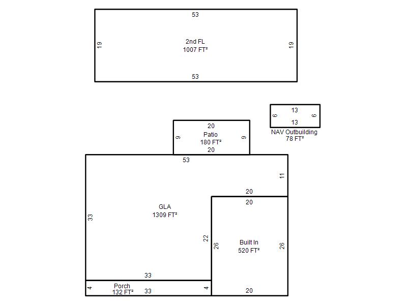
| Photo & Sketch (if available) | Comp Sales (ordered by relevancy) |
|
||||||||||||||||||
|
||||||||||||||||||||
| Value History (*The County Treasurer 405-713-1300 posts & collects actual tax amounts. Contact information HERE) | |||||||||||||
|---|---|---|---|---|---|---|---|---|---|---|---|---|---|
| Year | Market Value | Taxable Mkt Value | Gross Assessed | Exemption | Net Assessed | Millage | Est. Tax | Tax Savings | |||||
|
2025 |
283,500 |
225,483 |
24,802 |
1,000 |
23,802 |
122.14 |
$2,907 |
$902 |
|||||
|
2024 |
286,000 |
218,916 |
24,080 |
1,000 |
23,080 |
120.52 |
$2,782 |
$1,010 |
|||||
|
2023 |
273,000 |
212,540 |
23,378 |
1,000 |
22,378 |
123.06 |
$2,754 |
$941 |
|||||
|
2022 |
245,000 |
206,350 |
22,697 |
1,000 |
21,697 |
112.54 |
$2,442 |
$591 |
|||||
|
2021 |
215,500 |
200,340 |
22,036 |
1,000 |
21,036 |
112.07 |
$2,358 |
$299 |
|||||
| Property Account Status/Adjustments/Exemptions | ||
|---|---|---|
| Account # | Exemption Description | Amount |
|
R173901460 |
Homestead |
1,000 |
|
R173901460 |
3% Cap Homestead |
0 |
| Property Deed Transaction History (Recorded in the County Clerk's Office) | ||||||||||
|---|---|---|---|---|---|---|---|---|---|---|
| Date | Type | Book | Page | Price | Grantor | Grantee | ||||
|
10/14/2015 |
|
Deeds |
$168,500 |
CRISMON SOONER INVESTMENTS LLC |
HEKMATARA RAHMIN |
|||||
|
2/20/2015 |
|
Deeds |
$90,000 |
VOLT ASSET HOLDINGS NPL3 |
CRISMON SOONER INVESTMENTS LLC |
|||||
|
7/8/2014 |
|
Hmstd Off & |
$0 |
BARTA SHIRLEY A |
VOLT ASSET HOLDINGS NPL3 |
|||||
|
7/24/2009 |
|
Deeds |
$0 |
BARTA SHIRLEY A SHORTER WILLIE J JR |
BARTA SHIRLEY A |
|||||
|
10/26/2004 |
|
Deeds |
$129,000 |
CHRISTENSEN DAVID P & BEVERLY J |
BARTA SHIRLEY A |
|||||
| Last Mailed Notice of Value (N.O.V.) Information/History | ||||||||
|---|---|---|---|---|---|---|---|---|
| Year | Date | Market Value | Taxable Market Value | Gross Assessed | Exemption | Net Assessed | ||
|
2026 |
02/23/2026 |
286,000 |
232,247 |
25,547 |
1,000 |
24,547 |
||
|
2025 |
02/14/2025 |
283,500 |
225,483 |
24,802 |
1,000 |
23,802 |
||
|
2024 |
02/13/2024 |
286,000 |
218,916 |
24,080 |
1,000 |
23,080 |
||
|
2023 |
02/14/2023 |
273,000 |
212,540 |
23,378 |
1,000 |
22,378 |
||
|
2022 |
03/15/2022 |
245,000 |
206,350 |
22,697 |
1,000 |
21,697 |
||
| Property Building Permit History | |||||||||||
|---|---|---|---|---|---|---|---|---|---|---|---|
| Issued | Permit # | Provided by | Bldg # | Description | Est Construction Cost | Status | |||||
| No Building Permit records returned. | |||||||||||
| Click button on building number to access detailed information: | ||||||
|---|---|---|---|---|---|---|
| Bldg # | Vacant/Improved Land | Bldg Description | Year Built | SqFt | # Stories | |
|
1 |
Improved |
2 Story |
1964 |
2,316 |
2 Stories |
|