|
|
|
| Larry Stein Oklahoma County Assessor (405) 713-1200 - Public Access System |
|
|
|
|
|
|
| Real Property Display - Screen Produced 3/13/2026 2:51:58 PM | ||||
|---|---|---|---|---|
| Account: R153221085 | Type: Residential | Location: |
516 LESLIE DR |
|
| Building Name/Occupant: |
|
DEL CITY |
||
| Owner Name 1: | CUNDIFF ROBERT D JR & JUDITH A |
Parcel PIN#: |
1417-15-322-1085 |
|
| Owner Name 2: | 1/4 section #: |
1417 |
||
| Owner Name 3: | Parent Acct: |
|
||
| Billing Address: | 516 LESLIE DR | Tax District: |
|
|
| City, State, Zip | DEL CITY, OK 73115-3820 | School System: |
Mid-Del #52 |
|
|
Country: (If noted) |
Land Size: |
0.1653 Acres |
||
|
Land Value: 25,200 |
|
|||
|
Sect 5-T11N-R2W Qtr NE |
DEL CREST HTS 2ND
Block
001
Lot
009
|
|||
| Full Legal Description: DEL CREST HTS 2ND 001 009 |
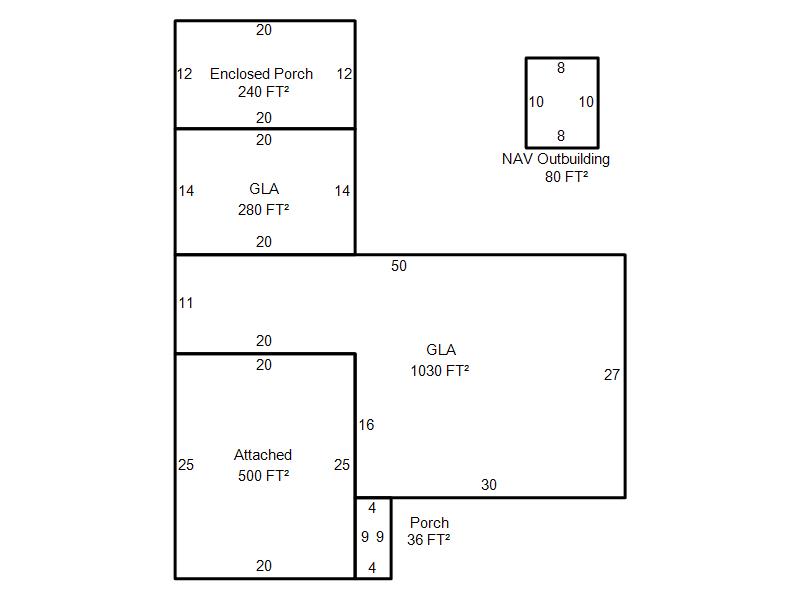
| Photo & Sketch (if available) | Comp Sales (ordered by relevancy) |
|
||||||||||||||||||
|
||||||||||||||||||||
| Value History (*The County Treasurer 405-713-1300 posts & collects actual tax amounts. Contact information HERE) | |||||||||||||
|---|---|---|---|---|---|---|---|---|---|---|---|---|---|
| Year | Market Value | Taxable Mkt Value | Gross Assessed | Exemption | Net Assessed | Millage | Est. Tax | Tax Savings | |||||
|
2025 |
152,000 |
101,434 |
11,156 |
1,000 |
10,156 |
114.72 |
$1,165 |
$753 |
|||||
|
2024 |
140,000 |
98,480 |
10,832 |
1,000 |
9,832 |
117.21 |
$1,153 |
$653 |
|||||
|
2023 |
125,000 |
95,612 |
10,517 |
1,000 |
9,517 |
112.46 |
$1,070 |
$476 |
|||||
|
2022 |
113,000 |
92,828 |
10,210 |
1,000 |
9,210 |
110.76 |
$1,020 |
$357 |
|||||
|
2021 |
98,500 |
90,125 |
9,913 |
1,000 |
8,913 |
114.70 |
$1,022 |
$220 |
|||||
| Property Account Status/Adjustments/Exemptions | ||
|---|---|---|
| Account # | Exemption Description | Amount |
|
R153221085 |
3% Cap Homestead |
0 |
|
R153221085 |
Homestead |
1,000 |
| Property Deed Transaction History (Recorded in the County Clerk's Office) | |||||||
|---|---|---|---|---|---|---|---|
| Date | Type | Book | Page | Price | Grantor | Grantee | |
|
4/1/1984 |
|
Historical |
$0 |
|
CUNDIFF ROBERT D JR & JUDITH A |
||
| Last Mailed Notice of Value (N.O.V.) Information/History | ||||||||
|---|---|---|---|---|---|---|---|---|
| Year | Date | Market Value | Taxable Market Value | Gross Assessed | Exemption | Net Assessed | ||
|
2026 |
02/06/2026 |
151,000 |
104,477 |
11,491 |
1,000 |
10,491 |
||
|
2025 |
01/31/2025 |
152,000 |
101,434 |
11,156 |
1,000 |
10,156 |
||
|
2024 |
01/22/2024 |
140,000 |
98,480 |
10,832 |
1,000 |
9,832 |
||
|
2023 |
01/23/2023 |
125,000 |
95,612 |
10,517 |
1,000 |
9,517 |
||
|
2022 |
02/22/2022 |
113,000 |
92,828 |
10,210 |
1,000 |
9,210 |
||
| Property Building Permit History | |||||||||||
|---|---|---|---|---|---|---|---|---|---|---|---|
| Issued | Permit # | Provided by | Bldg # | Description | Est Construction Cost | Status | |||||
| No Building Permit records returned. | |||||||||||
| Click button on building number to access detailed information: | ||||||
|---|---|---|---|---|---|---|
| Bldg # | Vacant/Improved Land | Bldg Description | Year Built | SqFt | # Stories | |
|
1 |
Improved |
Ranch 1 Story |
1962 |
1,310 |
1 Stories |
|