|
|
|
| Larry Stein Oklahoma County Assessor (405) 713-1200 - Public Access System |
|
|
|
|
|
|
| Real Property Display - Screen Produced 3/22/2026 2:02:44 PM | ||||
|---|---|---|---|---|
| Account: R172741430 | Type: Residential | Location: |
6403 NW 35TH ST |
|
| Building Name/Occupant: |
|
BETHANY |
||
| Owner Name 1: | HALL JOCK BRIAN |
Parcel PIN#: |
2881-17-274-1430 |
|
| Owner Name 2: | 1/4 section #: |
2881 |
||
| Owner Name 3: | Parent Acct: |
|
||
| Billing Address: | 6403 NW 35TH ST | Tax District: |
|
|
| City, State, Zip | BETHANY, OK 73008-4166 | School System: |
Putnam City #1 |
|
|
Country: (If noted) |
Land Size: |
0.2410 Acres |
||
|
Land Value: 36,750 |
|
|||
|
Sect 21-T12N-R4W Qtr NE |
FRUITLAND GARDEN ADD
Block
001
Lot
000
|
|||
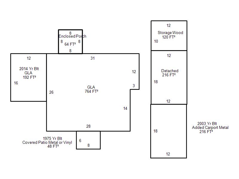
| Full Legal Description: FRUITLAND GARDEN ADD 001 000 LOTS 28 29 & 30 |
| Photo & Sketch (if available) | Comp Sales (ordered by relevancy) |
|
||||||||||||||||||
|
||||||||||||||||||||
| Value History (*The County Treasurer 405-713-1300 posts & collects actual tax amounts. Contact information HERE) | |||||||||||||
|---|---|---|---|---|---|---|---|---|---|---|---|---|---|
| Year | Market Value | Taxable Mkt Value | Gross Assessed | Exemption | Net Assessed | Millage | Est. Tax | Tax Savings | |||||
|
2025 |
131,500 |
68,470 |
7,531 |
1,000 |
6,531 |
122.14 |
$798 |
$969 |
|||||
|
2024 |
129,000 |
66,476 |
7,311 |
1,000 |
6,311 |
120.52 |
$761 |
$949 |
|||||
|
2023 |
120,000 |
64,540 |
7,098 |
1,000 |
6,098 |
123.06 |
$751 |
$874 |
|||||
|
2022 |
104,500 |
62,661 |
6,891 |
1,000 |
5,891 |
112.54 |
$663 |
$630 |
|||||
|
2021 |
89,500 |
60,836 |
6,691 |
1,000 |
5,691 |
112.07 |
$638 |
$465 |
|||||
| Property Account Status/Adjustments/Exemptions | ||
|---|---|---|
| Account # | Exemption Description | Amount |
|
R172741430 |
Freeze Senior Valuation |
0 |
|
R172741430 |
Homestead |
1,000 |
|
R172741430 |
3% Cap Homestead |
0 |
| Property Deed Transaction History (Recorded in the County Clerk's Office) | |||||||
|---|---|---|---|---|---|---|---|
| Date | Type | Book | Page | Price | Grantor | Grantee | |
|
10/11/1999 |
|
Deeds |
$32,000 |
WILLIAMS RALPH WOODROW GROVES JACQUELINE MAY |
HALL JOCK BRIAN |
||
|
8/7/1997 |
|
Historical |
$0 |
WILLIAMS RALPH WOODROW |
WILLIAMS RALPH WOODROW |
||
|
1/1/1986 |
|
Historical |
$0 |
|
WILLIAMS RALPH WOODROW |
||
| Last Mailed Notice of Value (N.O.V.) Information/History | ||||||||
|---|---|---|---|---|---|---|---|---|
| Year | Date | Market Value | Taxable Market Value | Gross Assessed | Exemption | Net Assessed | ||
|
2025 |
02/14/2025 |
131,500 |
68,470 |
7,531 |
1,000 |
6,531 |
||
|
2024 |
02/13/2024 |
129,000 |
66,476 |
7,311 |
1,000 |
6,311 |
||
|
2023 |
02/14/2023 |
120,000 |
64,540 |
7,098 |
1,000 |
6,098 |
||
|
2022 |
03/15/2022 |
104,500 |
62,661 |
6,891 |
1,000 |
5,891 |
||
|
2021 |
03/19/2021 |
89,500 |
60,836 |
6,691 |
1,000 |
5,691 |
||
| Property Building Permit History | |||||||||||
|---|---|---|---|---|---|---|---|---|---|---|---|
| Issued | Permit # | Provided by | Bldg # | Description | Est Construction Cost | Status | |||||
| No Building Permit records returned. | |||||||||||
| Click button on building number to access detailed information: | ||||||
|---|---|---|---|---|---|---|
| Bldg # | Vacant/Improved Land | Bldg Description | Year Built | SqFt | # Stories | |
|
1 |
Improved |
Ranch 1 Story |
1938 |
956 |
1 Stories |
|