|
|
|
| Larry Stein Oklahoma County Assessor (405) 713-1200 - Public Access System |
|
|
|
|
|
|
| Real Property Display - Screen Produced 3/24/2026 7:26:33 AM | ||||
|---|---|---|---|---|
| Account: R188950710 | Type: Residential | Location: |
6305 NW 35TH ST |
|
| Building Name/Occupant: |
|
WARR ACRES |
||
| Owner Name 1: | LORETT TED W & KIMBERLY K TRS |
Parcel PIN#: |
2881-18-895-0710 |
|
| Owner Name 2: | LORETT TED & KIMBERLY REV TRUST | 1/4 section #: |
2881 |
|
| Owner Name 3: | Parent Acct: |
|
||
| Billing Address: | 3409 N PRESTON DR | Tax District: |
|
|
| City, State, Zip | OKLAHOMA CITY, OK 73122 | School System: |
Putnam City #1 |
|
|
Country: (If noted) |
Land Size: |
0.1768 Acres |
||
|
Land Value: 23,485 |
|
|||
|
Sect 21-T12N-R4W Qtr NE |
COOLEYS SUB ADDITION
Block
001
Lot
000
|
|||
| Full Legal Description: COOLEYS SUB ADDITION 001 000 E20FT LOT 17 & W35FT LOT 18 |
| Photo & Sketch (if available) | Comp Sales (ordered by relevancy) |
|
||||||||||||||||||
|
||||||||||||||||||||
| Value History (*The County Treasurer 405-713-1300 posts & collects actual tax amounts. Contact information HERE) | |||||||||||||
|---|---|---|---|---|---|---|---|---|---|---|---|---|---|
| Year | Market Value | Taxable Mkt Value | Gross Assessed | Exemption | Net Assessed | Millage | Est. Tax | Tax Savings | |||||
|
2025 |
137,000 |
111,139 |
12,225 |
0 |
12,225 |
115.77 |
$1,415 |
$329 |
|||||
|
2024 |
133,000 |
105,847 |
11,642 |
0 |
11,642 |
114.25 |
$1,330 |
$341 |
|||||
|
2023 |
125,000 |
100,807 |
11,088 |
0 |
11,088 |
117.84 |
$1,307 |
$314 |
|||||
|
2022 |
109,500 |
96,007 |
10,559 |
0 |
10,559 |
120.40 |
$1,272 |
$179 |
|||||
|
2021 |
94,000 |
91,436 |
10,057 |
0 |
10,057 |
119.77 |
$1,205 |
$34 |
|||||
| Property Account Status/Adjustments/Exemptions | ||
|---|---|---|
| Account # | Exemption Description | Amount |
|
R188950710 |
5% Capped Account |
0 |
| Property Deed Transaction History (Recorded in the County Clerk's Office) | ||||||||||
|---|---|---|---|---|---|---|---|---|---|---|
| Date | Type | Book | Page | Price | Grantor | Grantee | ||||
|
5/17/2017 |
|
Deeds |
$0 |
LORETT TED WILLIAM & KIMBERLY K |
LORETT TED W & KIMBERLY K TRS |
|||||
|
4/11/2008 |
|
Deeds |
$0 |
LORETT TED W |
LORETT TED WILLIAM & KIMBERLY K |
|||||
|
8/7/1991 |
|
Historical |
$22,500 |
BETHEL CAROL ANN ETAL |
LORETT TED W |
|||||
|
8/22/1990 |
|
Historical |
$0 |
BETHEL WENDELL L & HELEN K |
BETHEL CAROL ANN ETAL |
|||||
|
6/22/1990 |
|
Historical |
$0 |
BETHEL WENDELL LEON |
BETHEL WENDELL L & HELEN K |
|||||
| Last Mailed Notice of Value (N.O.V.) Information/History | ||||||||
|---|---|---|---|---|---|---|---|---|
| Year | Date | Market Value | Taxable Market Value | Gross Assessed | Exemption | Net Assessed | ||
|
2026 |
02/23/2026 |
135,000 |
116,695 |
12,836 |
0 |
12,836 |
||
|
2025 |
02/14/2025 |
137,000 |
111,139 |
12,225 |
0 |
12,225 |
||
|
2024 |
02/13/2024 |
133,000 |
105,847 |
11,642 |
0 |
11,642 |
||
|
2023 |
02/14/2023 |
125,000 |
100,807 |
11,088 |
0 |
11,088 |
||
|
2022 |
03/15/2022 |
109,500 |
96,007 |
10,559 |
0 |
10,559 |
||
| Property Building Permit History | |||||||||||
|---|---|---|---|---|---|---|---|---|---|---|---|
| Issued | Permit # | Provided by | Bldg # | Description | Est Construction Cost | Status | |||||
| No Building Permit records returned. | |||||||||||
| Click button on building number to access detailed information: | ||||||
|---|---|---|---|---|---|---|
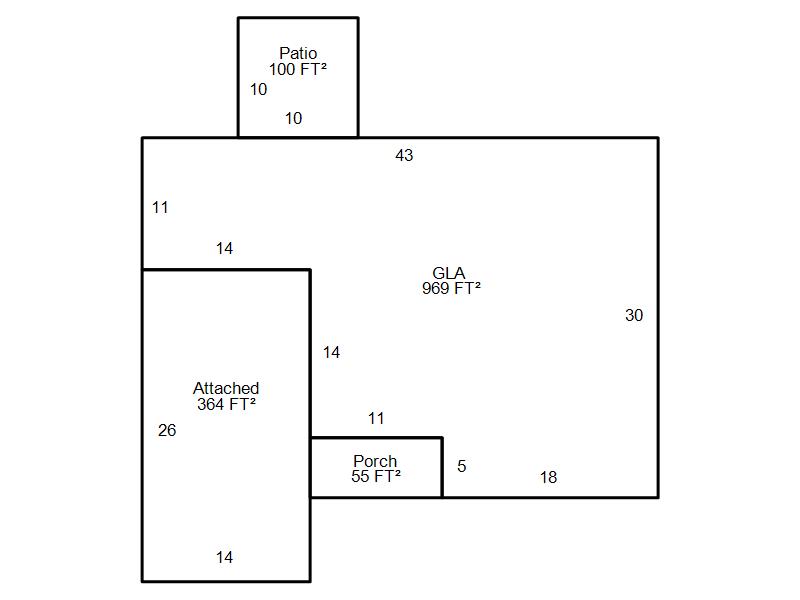
| Bldg # | Vacant/Improved Land | Bldg Description | Year Built | SqFt | # Stories | |
|
1 |
Improved |
Ranch 1 Story |
1961 |
969 |
1 Stories |
|