|
|
|
| Larry Stein Oklahoma County Assessor (405) 713-1200 - Public Access System |
|
|
|
|
|
|
| Real Property Display - Screen Produced 2/27/2026 6:24:31 AM | ||||
|---|---|---|---|---|
| Account: R147431280 | Type: Residential | Location: |
5725 NW 34TH ST |
|
| Building Name/Occupant: |
|
OKLAHOMA CITY |
||
| Owner Name 1: | VELASCO JOSE DE LARA & MARIA PASILLAS |
Parcel PIN#: |
2888-14-743-1280 |
|
| Owner Name 2: | 1/4 section #: |
2888 |
||
| Owner Name 3: | Parent Acct: |
|
||
| Billing Address: | 8401 SW 26TH ST | Tax District: |
|
|
| City, State, Zip | OKLAHOMA CITY, OK 73128-4952 | School System: |
Putnam City #1 |
|
|
Country: (If noted) |
Land Size: |
0.1947 Acres |
||
|
Land Value: 38,156 |
|
|||
|
Sect 22-T12N-R4W Qtr NW |
GOLDEN OAKS
Block
005
Lot
000
|
|||
| Full Legal Description: GOLDEN OAKS 005 000 LOT 2 EX W2FT & E9FT |
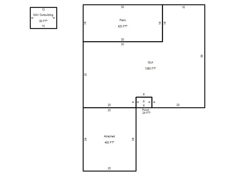
| Photo & Sketch (if available) | Comp Sales (ordered by relevancy) |
|
||||||||||||||||||
|
||||||||||||||||||||
| Value History (*The County Treasurer 405-713-1300 posts & collects actual tax amounts. Contact information HERE) | |||||||||||||
|---|---|---|---|---|---|---|---|---|---|---|---|---|---|
| Year | Market Value | Taxable Mkt Value | Gross Assessed | Exemption | Net Assessed | Millage | Est. Tax | Tax Savings | |||||
|
2025 |
209,500 |
169,520 |
18,646 |
0 |
18,646 |
123.17 |
$2,297 |
$542 |
|||||
|
2024 |
208,000 |
161,448 |
17,758 |
0 |
17,758 |
122.30 |
$2,172 |
$626 |
|||||
|
2023 |
197,500 |
153,760 |
16,913 |
0 |
16,913 |
121.91 |
$2,062 |
$587 |
|||||
|
2022 |
168,000 |
146,439 |
16,107 |
0 |
16,107 |
123.41 |
$1,988 |
$293 |
|||||
|
2021 |
146,500 |
139,466 |
15,340 |
0 |
15,340 |
122.23 |
$1,875 |
$95 |
|||||
| Property Account Status/Adjustments/Exemptions | ||
|---|---|---|
| Account # | Exemption Description | Amount |
|
R147431280 |
5% Capped Account |
0 |
| Property Deed Transaction History (Recorded in the County Clerk's Office) | ||||||||||
|---|---|---|---|---|---|---|---|---|---|---|
| Date | Type | Book | Page | Price | Grantor | Grantee | ||||
|
2/13/2012 |
|
Deeds |
$102,500 |
COVARRUBIAS YURIANA VELASCO ALEJANDRO D |
VELASCO JOSE DE LARA & MARIA PASILLAS |
|||||
|
12/22/2004 |
|
Deeds |
$0 |
COVARRUBIAS YURIANA |
COVARRUBIAS YURIANA VELASCO ALEJANDRO D |
|||||
|
10/20/2004 |
|
Deeds |
$73,500 |
VANDYKE RANDY L |
COVARRUBIAS YURIANA |
|||||
|
7/9/1997 |
|
Historical |
$0 |
SECRETARY OF HOUSING |
VANDYKE RANDY L |
|||||
|
3/5/1997 |
|
Historical |
$0 |
TAYLOR ALMEDA A |
SECRETARY OF HOUSING |
|||||
| Last Mailed Notice of Value (N.O.V.) Information/History | ||||||||
|---|---|---|---|---|---|---|---|---|
| Year | Date | Market Value | Taxable Market Value | Gross Assessed | Exemption | Net Assessed | ||
|
2026 |
02/23/2026 |
208,000 |
177,996 |
19,579 |
0 |
19,579 |
||
|
2025 |
02/14/2025 |
209,500 |
169,520 |
18,646 |
0 |
18,646 |
||
|
2024 |
02/13/2024 |
208,000 |
161,448 |
17,758 |
0 |
17,758 |
||
|
2023 |
02/14/2023 |
197,500 |
153,760 |
16,913 |
0 |
16,913 |
||
|
2022 |
03/15/2022 |
168,000 |
146,439 |
16,107 |
0 |
16,107 |
||
| Property Building Permit History | |||||||||||
|---|---|---|---|---|---|---|---|---|---|---|---|
| Issued | Permit # | Provided by | Bldg # | Description | Est Construction Cost | Status | |||||
| No Building Permit records returned. | |||||||||||
| Click button on building number to access detailed information: | ||||||
|---|---|---|---|---|---|---|
| Bldg # | Vacant/Improved Land | Bldg Description | Year Built | SqFt | # Stories | |
|
1 |
Improved |
Ranch 1 Story |
1964 |
1,350 |
1 Stories |
|