|
|
|
| Larry Stein Oklahoma County Assessor (405) 713-1200 - Public Access System |
|
|
|
|
|
|
| Real Property Display - Screen Produced 2/27/2026 6:20:43 AM | ||||
|---|---|---|---|---|
| Account: R147431470 | Type: Residential | Location: |
5800 NW 33RD ST |
|
| Building Name/Occupant: |
|
OKLAHOMA CITY |
||
| Owner Name 1: | DOXTATOR MICHAEL L |
Parcel PIN#: |
2888-14-743-1470 |
|
| Owner Name 2: | 1/4 section #: |
2888 |
||
| Owner Name 3: | Parent Acct: |
|
||
| Billing Address: | 3102 SE 21ST ST | Tax District: |
|
|
| City, State, Zip | DEL CITY, OK 73115-1532 | School System: |
Putnam City #1 |
|
|
Country: (If noted) |
Land Size: |
0.2181 Acres |
||
|
Land Value: 42,750 |
|
|||
|
Sect 22-T12N-R4W Qtr NW |
GOLDEN OAKS
Block
005
Lot
000
|
|||
| Full Legal Description: GOLDEN OAKS 005 000 W69FT LOT 21 & E7FT LOT 22 |
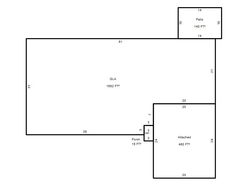
| Photo & Sketch (if available) | Comp Sales (ordered by relevancy) |
|
||||||||||||||||||
|
||||||||||||||||||||
| Value History (*The County Treasurer 405-713-1300 posts & collects actual tax amounts. Contact information HERE) | |||||||||||||
|---|---|---|---|---|---|---|---|---|---|---|---|---|---|
| Year | Market Value | Taxable Mkt Value | Gross Assessed | Exemption | Net Assessed | Millage | Est. Tax | Tax Savings | |||||
|
2025 |
199,000 |
161,085 |
17,718 |
0 |
17,718 |
123.17 |
$2,182 |
$514 |
|||||
|
2024 |
198,000 |
153,415 |
16,875 |
0 |
16,875 |
122.30 |
$2,064 |
$600 |
|||||
|
2023 |
189,000 |
146,110 |
16,071 |
0 |
16,071 |
121.91 |
$1,959 |
$575 |
|||||
|
2022 |
159,000 |
139,153 |
15,305 |
0 |
15,305 |
123.41 |
$1,889 |
$269 |
|||||
|
2021 |
139,000 |
132,527 |
14,577 |
0 |
14,577 |
122.23 |
$1,782 |
$87 |
|||||
| Property Account Status/Adjustments/Exemptions | ||
|---|---|---|
| Account # | Exemption Description | Amount |
|
R147431470 |
5% Capped Account |
0 |
| Property Deed Transaction History (Recorded in the County Clerk's Office) | |||||||
|---|---|---|---|---|---|---|---|
| Date | Type | Book | Page | Price | Grantor | Grantee | |
|
7/10/2001 |
|
Deeds |
$0 |
DOXTATOR MELVIN W & CHARLOTTE DOXTATOR MICHEAL L |
DOXTATOR MICHAEL L |
||
|
4/18/1996 |
|
Historical |
$0 |
DOXTATOR MELVIN W & C A |
DOXTATOR MELVIN W & CHARLOTTE |
||
|
11/11/1911 |
|
Historical |
$0 |
|
DOXTATOR MELVIN W & C A |
||
| Last Mailed Notice of Value (N.O.V.) Information/History | ||||||||
|---|---|---|---|---|---|---|---|---|
| Year | Date | Market Value | Taxable Market Value | Gross Assessed | Exemption | Net Assessed | ||
|
2026 |
02/23/2026 |
195,000 |
169,139 |
18,604 |
0 |
18,604 |
||
|
2025 |
02/14/2025 |
199,000 |
161,085 |
17,718 |
0 |
17,718 |
||
|
2024 |
02/13/2024 |
198,000 |
153,415 |
16,875 |
0 |
16,875 |
||
|
2023 |
02/14/2023 |
189,000 |
146,110 |
16,071 |
0 |
16,071 |
||
|
2022 |
03/15/2022 |
159,000 |
139,153 |
15,305 |
0 |
15,305 |
||
| Property Building Permit History | ||||||
|---|---|---|---|---|---|---|
| Issued | Permit # | Provided by | Bldg # | Description | Est Construction Cost | Status |
|
4/19/2010 |
10399392 |
OKLAHOMA CITY |
1 |
Fire Remodel |
40,000 |
Inactive |
|
2/2/2010 |
10394080 |
OKLAHOMA CITY |
1 |
Burn - Trip |
5,000 |
Inactive |
| Click button on building number to access detailed information: | ||||||
|---|---|---|---|---|---|---|
| Bldg # | Vacant/Improved Land | Bldg Description | Year Built | SqFt | # Stories | |
|
1 |
Improved |
Ranch 1 Story |
1964 |
1,682 |
1 Stories |
|