|
|
|
| Larry Stein Oklahoma County Assessor (405) 713-1200 - Public Access System |
|
|
|
|
|
|
| Real Property Display - Screen Produced 2/27/2026 6:23:29 AM | ||||
|---|---|---|---|---|
| Account: R147431500 | Type: Residential | Location: |
5814 NW 33RD ST |
|
| Building Name/Occupant: |
|
OKLAHOMA CITY |
||
| Owner Name 1: | BKC PARTNERSHIP LLD |
Parcel PIN#: |
2888-14-743-1500 |
|
| Owner Name 2: | 1/4 section #: |
2888 |
||
| Owner Name 3: | Parent Acct: |
|
||
| Billing Address: | 11200 ROEFAN RD | Tax District: |
|
|
| City, State, Zip | MIDWEST CITY, OK 73130-8004 | School System: |
Putnam City #1 |
|
|
Country: (If noted) |
Land Size: |
0.1452 Acres |
||
|
Land Value: 28,458 |
|
|||
|
Sect 22-T12N-R4W Qtr NW |
GOLDEN OAKS
Block
005
Lot
000
|
|||
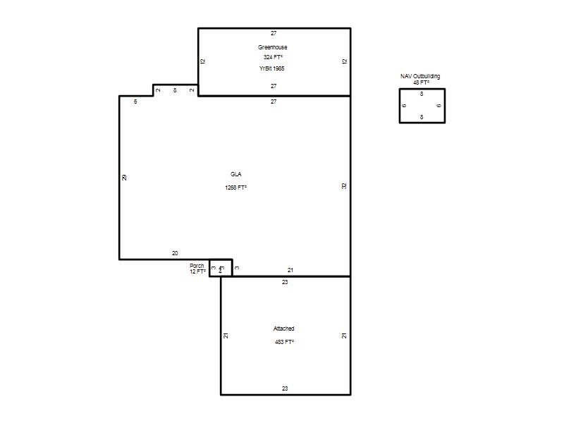
| Full Legal Description: GOLDEN OAKS 005 000 W40.5FT LOT 24 & E11FT LOT 25 |
| Photo & Sketch (if available) | Comp Sales (ordered by relevancy) |
|
||||||||||||||||||
|
||||||||||||||||||||
| Value History (*The County Treasurer 405-713-1300 posts & collects actual tax amounts. Contact information HERE) | |||||||||||||
|---|---|---|---|---|---|---|---|---|---|---|---|---|---|
| Year | Market Value | Taxable Mkt Value | Gross Assessed | Exemption | Net Assessed | Millage | Est. Tax | Tax Savings | |||||
|
2025 |
166,500 |
137,198 |
15,091 |
0 |
15,091 |
123.17 |
$1,859 |
$397 |
|||||
|
2024 |
164,000 |
130,665 |
14,372 |
0 |
14,372 |
122.30 |
$1,758 |
$448 |
|||||
|
2023 |
160,000 |
124,443 |
13,687 |
0 |
13,687 |
121.91 |
$1,669 |
$477 |
|||||
|
2022 |
136,000 |
118,518 |
13,036 |
0 |
13,036 |
123.41 |
$1,609 |
$237 |
|||||
|
2021 |
118,000 |
112,875 |
12,416 |
0 |
12,416 |
122.23 |
$1,518 |
$69 |
|||||
| Property Account Status/Adjustments/Exemptions | ||
|---|---|---|
| Account # | Exemption Description | Amount |
|
R147431500 |
5% Capped Account |
0 |
| Property Deed Transaction History (Recorded in the County Clerk's Office) | ||||||||||
|---|---|---|---|---|---|---|---|---|---|---|
| Date | Type | Book | Page | Price | Grantor | Grantee | ||||
|
2/21/2025 |
|
Hmstd Off & |
$0 |
BCPH LLC |
BKC PARTNERSHIP LLD |
|||||
|
3/28/2024 |
|
Hmstd Off & |
$0 |
CALLIES BRYCE |
BCPH LLC |
|||||
|
2/8/2016 |
|
Deeds |
$0 |
GODWIN ROGER S & MEGAN |
CALLIES BRYCE |
|||||
|
2/4/2016 |
|
Deeds |
$30,000 |
MOORE VERA J TRS STREET AUTUMN TRS |
CALLIES BRYCE |
|||||
|
10/3/2011 |
|
Deeds |
$0 |
MOORE VERA J TRS GOLDEN WILLIAM TRS |
MOORE VERA J TRS STREET AUTUMN TRS |
|||||
| Last Mailed Notice of Value (N.O.V.) Information/History | ||||||||
|---|---|---|---|---|---|---|---|---|
| Year | Date | Market Value | Taxable Market Value | Gross Assessed | Exemption | Net Assessed | ||
|
2026 |
02/23/2026 |
163,500 |
144,057 |
15,845 |
0 |
15,845 |
||
|
2025 |
02/14/2025 |
166,500 |
137,198 |
15,091 |
0 |
15,091 |
||
|
2025 |
03/28/2025 |
166,500 |
137,198 |
15,091 |
0 |
15,091 |
||
|
2024 |
02/13/2024 |
164,000 |
130,665 |
14,372 |
0 |
14,372 |
||
|
2023 |
02/14/2023 |
160,000 |
124,443 |
13,687 |
0 |
13,687 |
||
| Property Building Permit History | |||||||||||
|---|---|---|---|---|---|---|---|---|---|---|---|
| Issued | Permit # | Provided by | Bldg # | Description | Est Construction Cost | Status | |||||
| No Building Permit records returned. | |||||||||||
| Click button on building number to access detailed information: | ||||||
|---|---|---|---|---|---|---|
| Bldg # | Vacant/Improved Land | Bldg Description | Year Built | SqFt | # Stories | |
|
1 |
Improved |
Ranch 1 Story |
1964 |
1,268 |
1 Stories |
|