|
|
|
| Larry Stein Oklahoma County Assessor (405) 713-1200 - Public Access System |
|
|
|
|
|
|
| Real Property Display - Screen Produced 2/27/2026 10:18:03 AM | ||||
|---|---|---|---|---|
| Account: R115011475 | Type: Residential | Location: |
4117 NW 28TH ST |
|
| Building Name/Occupant: |
|
OKLAHOMA CITY |
||
| Owner Name 1: | VELASCO GABRIELA A |
Parcel PIN#: |
2891-11-501-1475 |
|
| Owner Name 2: | 1/4 section #: |
2891 |
||
| Owner Name 3: | Parent Acct: |
|
||
| Billing Address: | 6700 NW 34TH ST | Tax District: |
|
|
| City, State, Zip | BETHANY, OK 73008 | School System: |
Oklahoma City #89 |
|
|
Country: (If noted) |
Land Size: |
0.1940 Acres |
||
|
Land Value: 33,800 |
|
|||
|
Sect 23-T12N-R4W Qtr SW |
ZEDNA ANN 5TH ADD
Block
003
Lot
026
|
|||
| Full Legal Description: ZEDNA ANN 5TH ADD 003 026 |
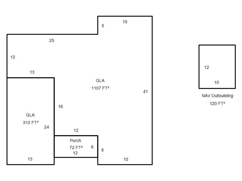
| Photo & Sketch (if available) | Comp Sales (ordered by relevancy) |
|
||||||||||||||||||
|
||||||||||||||||||||
| Value History (*The County Treasurer 405-713-1300 posts & collects actual tax amounts. Contact information HERE) | |||||||||||||
|---|---|---|---|---|---|---|---|---|---|---|---|---|---|
| Year | Market Value | Taxable Mkt Value | Gross Assessed | Exemption | Net Assessed | Millage | Est. Tax | Tax Savings | |||||
|
2025 |
129,000 |
103,933 |
11,432 |
0 |
11,432 |
122.90 |
$1,405 |
$339 |
|||||
|
2024 |
129,000 |
98,984 |
10,887 |
0 |
10,887 |
123.89 |
$1,349 |
$409 |
|||||
|
2023 |
115,000 |
94,271 |
10,369 |
0 |
10,369 |
122.82 |
$1,274 |
$280 |
|||||
|
2022 |
101,000 |
89,782 |
9,874 |
0 |
9,874 |
117.63 |
$1,162 |
$145 |
|||||
|
2021 |
88,500 |
85,507 |
9,404 |
0 |
9,404 |
117.70 |
$1,107 |
$39 |
|||||
| Property Account Status/Adjustments/Exemptions | ||
|---|---|---|
| Account # | Exemption Description | Amount |
|
R115011475 |
5% Capped Account |
0 |
| Property Deed Transaction History (Recorded in the County Clerk's Office) | ||||||||||
|---|---|---|---|---|---|---|---|---|---|---|
| Date | Type | Book | Page | Price | Grantor | Grantee | ||||
|
11/28/2023 |
|
Hmstd Off & |
$0 |
VELASCO RUBEN CARLOS |
VELASCO GABRIELA A |
|||||
|
5/24/2021 |
|
Deeds |
$ |
PEREZ GABRIELA A |
VELASCO GABRIELA A |
|||||
|
6/4/2018 |
|
Hmstd Off & |
$0 |
PEREZ GABRIELA E ETAL |
PEREZ GABRIELA A |
|||||
|
1/8/2016 |
|
Hmstd Off & |
$0 |
PEREZ GABRIEL E |
PEREZ GABRIELA E ETAL |
|||||
|
5/12/2006 |
|
Deeds |
$0 |
PEREZ GABRIEL E & LUZ MARINO MAHECHA QUINTERO |
PEREZ GABRIEL E |
|||||
| Last Mailed Notice of Value (N.O.V.) Information/History | ||||||||
|---|---|---|---|---|---|---|---|---|
| Year | Date | Market Value | Taxable Market Value | Gross Assessed | Exemption | Net Assessed | ||
|
2026 |
02/23/2026 |
131,000 |
109,129 |
12,003 |
0 |
12,003 |
||
|
2025 |
02/14/2025 |
129,000 |
103,933 |
11,432 |
0 |
11,432 |
||
|
2024 |
02/13/2024 |
129,000 |
98,984 |
10,887 |
0 |
10,887 |
||
|
2023 |
02/14/2023 |
115,000 |
94,271 |
10,369 |
0 |
10,369 |
||
|
2022 |
03/15/2022 |
101,000 |
89,782 |
9,874 |
0 |
9,874 |
||
| Property Building Permit History | |||||||||||
|---|---|---|---|---|---|---|---|---|---|---|---|
| Issued | Permit # | Provided by | Bldg # | Description | Est Construction Cost | Status | |||||
| No Building Permit records returned. | |||||||||||
| Click button on building number to access detailed information: | ||||||
|---|---|---|---|---|---|---|
| Bldg # | Vacant/Improved Land | Bldg Description | Year Built | SqFt | # Stories | |
|
1 |
Improved |
Ranch 1 Story |
1955 |
1,419 |
1 Stories |
|